Einzigartig, arbeiten und wohnen in einem super Haus - Bieterverfahren!
Haus
- Mehrfamilienhaus,
1220
Wien
Lage der Immobilie
Das Objekt ist ideal gelegen, nur wenige Minuten zu der U2-Station Aspernstraße sowie der Buslinie 26A. Mit den öffentlichen Verkehrsmitteln gelangt man in knapp 15 Minuten ins Stadtzentrum. Zur Erholung dient die nahgelegene Donauinsel sowie die Alte Donau. Nahversorger, Apotheken, Ärzte, Restaurants und weitere Annehmlichkeiten befinden sich in fußläufiger Entfernung.Beschreibung der Immobilie
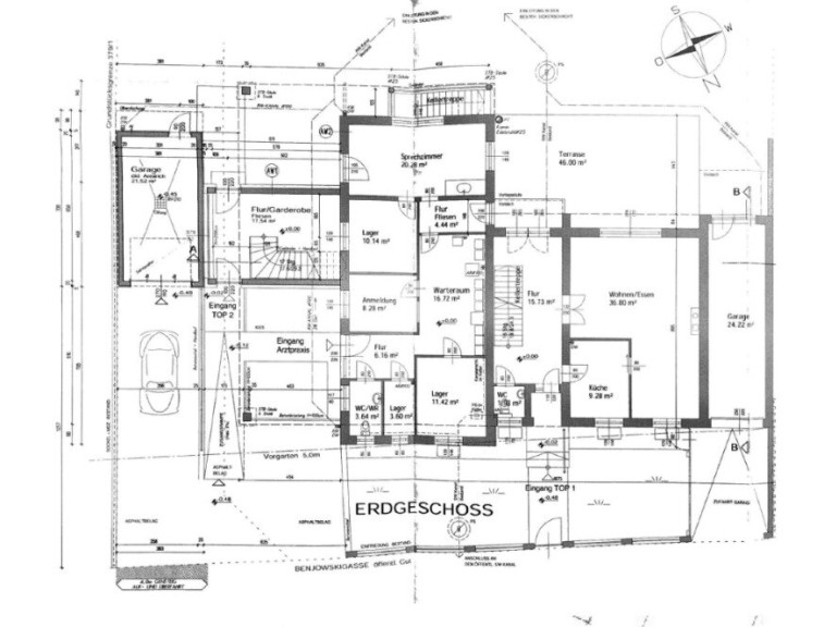
Die zu verkaufende Liegenschaft ist etwas ganz Besonderes!
Sie besteht aus drei großen Bereichen: einer Ordination, einer Wohnung und einem Haus.
Ordination
Barrierefreier Zugang zu allen Räumen, Empfang mit Wartebereich, Ordinationszimmer, Vorbereitungszimmer, Sanitärräume, Sozialraume und Küche.
Wohnung
Die Wohnung befindet sich über der Ordination und ist atemberaubend. Sie betreten die Wohnung durch einen Eingangsbereich, von dem aus Sie auch den Garten erreichen können. Wenn Sie die Stiegen in den ersten Stock hinauf gehen, eröffnet sich Ihnen ein wunderbarer Wohnraum mit offener Küche. In diesem Bereich sind wirklich keine Wünsche an modernes Wohnen offen geblieben. Sie finden eine moderne Einbauküche mit allen Geräten, eine große Kochinsel, die gleichzeitig die Küche vom Essbereich trennt. Einen gemütlichen Kuschelbereich, der in eine große Fensternische eingebaut ist und natürlich auch den Wohnbereich. Die großen Fensterflächen lassen hier Innen- und Außenbereich fließend ineinander über gehen!
Weiters finden Sie hier zwei Schlafzimmer und ein Bad und einen Balkon.
Wenn Sie die offene Treppe ins Obergeschoss nehmen, eröffnet sich Ihnen sofort der herrliche Blich auf die große Dachterrasse. Hier befindet sich ein Schlafzimmer und ein Badezimmer.
Haus
Im Moment ist das Haus in einem renovierungsbedürftigen Zustand. Es gibt einen großen Wohnbereich und eine abgeschlossene Küche. Sowohl vom Wohnzimmer als auch vom Vorzimmer aus erreichen Sie den Garten und die Terrasse mit Grillplatz.
Im Obergeschoß befinden sich drei Schlafzimmer und ein Bad.
Der Keller verfügt über einige Abstellräume und über ein Indoorpool.
Es existieren Pläne für den Umbau des Hauses und die Umgestaltung in vier Wohnungen.
Man hat bereits begonnen, das Haus zu entkernen.
Wenn Sie Interesse haben, rufen Sie mich einfach an und wir vereinbaren einen Besichtigungstermin!
Noch nichts gefunden? Wir suchen gerne die passende Immobilie für sie und informieren Sie über geeignete Immobilienangebote noch vor allen anderen.
Legen Sie jetzt Ihren individuellen Suchagenten unter folgendem Link an. Wir schicken Ihnen passende Immobilien exklusiv vorab zu ihr Denich Real Immobilienservice
Suchagent anlegen
Der Vermittler ist als Doppelmakler tätig.
Infrastruktur / Entfernungen
Gesundheit
Arzt <500m
Apotheke <500m
Klinik <1.500m
Krankenhaus <2.000m
Kinder & Schulen
Schule <500m
Kindergarten <500m
Universität <2.000m
Höhere Schule <2.000m
Nahversorgung
Supermarkt <500m
Bäckerei <500m
Einkaufszentrum <3.500m
Sonstige
Geldautomat <500m
Bank <500m
Post <1.500m
Polizei <1.000m
Verkehr
Bus <500m
U-Bahn <1.500m
Straßenbahn <500m
Bahnhof <1.500m
Autobahnanschluss <3.000m
Angaben Entfernung Luftlinie / Quelle: OpenStreetMap
Eckdaten
| Kaufpreis: | auf Anfrage |
| Fläche: | 405,06 m² |
| Zimmer: | 14 |
Basisdaten zur Immobilie
| Objektnr: | 1400 |
| Art: | Haus - Mehrfamilienhaus |
| Land: | Österreich |
| Zustand: | Gepflegt |
| Alter: | Neubau |
| Kaufpreis: | auf Anfrage |
| Kaufpreis / m²: | auf Anfrage |
| Wohnfläche: | 405,06 m² |
| Nutzfläche: | 470,00 m² |
| Grundstücksfl.: | 1.035,00 m² |
| Zimmer: | 14 |
| Balkone: | 1 |
| Terrassen: | 2 |
| Stellplätze: | 4 |
| Garten: | 1.035,00 m² |
| Keller: | 65,00 m² |
Ausstattung
Fliesen, Parkett, Gas, Fußbodenheizung, Einbauküche, Wohnküche / offene Küche, Westbalkon, Bad mit Fenster, Dusche, Garage, Parkplatz, Sauna
Internet und TV
Information zur Internet und TV Versorgung hier
Ihre persönliche Beratung
Martina Denich-Kobula
DENICH-REAL Immobilien GmbH
md@denich-real.at
+43 664 4609630
+43 664 4609630
