1,5 -Zimmer-Dachgeschosswohnungen in Frastanz
Wohnung
- Etage,
6820
Frastanz
,
Feldkircher Straße 21
Lage der Immobilie
Willkommen in deinem neuen Zuhause in Frastanz! Diese exklusiven Dachgeschosswohnungen befinden sich direkt über dem renommierten Lebensmittelgeschäft „Sutterlüty“, das dir alltägliche Einkäufe im Handumdrehen ermöglicht. In direkter Nähe findest du alles, was du für ein komfortables Leben brauchst: Apotheke, Bäckerei, Cafés und vieles mehr. Die zentrale Lage verbindet urbanes Leben mit einer ruhigen, nach hinten ausgerichteten Wohnqualität – perfekt für Menschen, die sich eine Mischung aus Stadtleben und Rückzugsort wünschen.Beschreibung der Immobilie
Highlights der Wohnungen:
- Zentrale Lage in Frastanz – die Wohnungen sind ruhig, weg von der Straße gelegen.
- Baujahr 2021 – moderne und energieeffiziente Neubauten.
- Exklusiv 1 verfügbare Wohnungen – mit großzügigen Terrassen, die dir einen herrlichen Ausblick bieten.
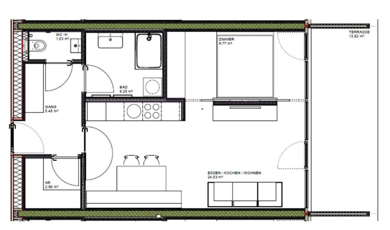
- Wohnfläche ca. 50m² + 13m² Terrasse – großzügige 2-Zimmer-Wohnungen im Dachgeschoss.
- Komfort und Stil – ausgestattet mit maßgeschneidertem Doppelbett und Einbaukasten.
- Praktische Extras:
- Eigener Außenabstellplatz für dein Auto
- Fahrradraum zur sicheren Aufbewahrung deines Fahrrads
- Müllplatz direkt am Gebäude
- Moderne Ausstattung:
- Fußbodenheizung für wohlige Wärme
- Edle Parkettböden in Wohn- und Schlafbereichen, elegante Fliesen in Bad und separatem WC
- Verkehrsanbindung:
- Anbindung an den öffentlichen Verkehr und Autobahn in wenigen Minuten erreichbar
Haben wir dein Interesse geweckt? Zögere nicht und kontaktiere uns noch heute, um eine Besichtigung zu vereinbaren und dein neues Zuhause in Frastanz zu sichern!
Unsere Angaben beziehen sich auf die Auskünfte des Eigentümers. Irrtum und Änderungen vorbehalten.
Noch nichts gefunden? Wir informieren Sie über geeignete Immobilienangebote noch vor allen anderen.
Legen Sie jetzt kostenlos Ihren individuellen Suchagenten unter folgendem Link an. Wir schicken Ihnen passende Immobilien exklusiv vorab zu.
Suchagent anlegen
Der Immobilienmakler erklärt, dass er – entgegen dem in der Immobilienwirtschaft üblichen Geschäftsgebrauch des Doppelmaklers – einseitig nur für den Vermieter tätig ist.
Infrastruktur / Entfernungen
Gesundheit
Arzt <950m
Apotheke <700m
Krankenhaus <1.550m
Kinder & Schulen
Schule <425m
Kindergarten <350m
Höhere Schule <3.200m
Universität <2.475m
Nahversorgung
Supermarkt <25m
Bäckerei <425m
Einkaufszentrum <3.000m
Sonstige
Bank <750m
Geldautomat <950m
Post <1.575m
Polizei <950m
Verkehr
Bus <350m
Bahnhof <1.225m
Autobahnanschluss <600m
Angaben Entfernung Luftlinie / Quelle: OpenStreetMap
Eckdaten
| Gesamtmiete: | 1.140,56 € |
| Fläche: | 49,48 m² |
| Zimmer: | 1,50 |
Basisdaten zur Immobilie
| Objektnr: | 5681/662 |
| Art: | Wohnung - Etage |
| Land: | Österreich |
| Baujahr: | 2021 |
| Zustand: | Erstbezug |
| Alter: | Neubau |
| Gesamtmiete: | 1.140,56 € |
| Kaltmiete (netto): | 858,13 € |
| Kaltmiete: | 1.007,78 € |
| Provision: | Gemäß Erstauftraggeberprinzip bezahlt der Abgeber die Provision. |
| Betriebskosten: | 149,65 € |
| Heizkosten: | 26,67 € |
| MwSt Gesamt: | 106,11 € |
| Wohnfläche: | 49,48 m² |
| Zimmer: | 1,50 |
| Bäder: | 1 |
| WC: | 1 |
| Terrassen: | 1 |
| Stellplätze: | 1 |
| Heizwärmebedarf: | B 30,00 kWh/m²a |
| fGEE: | A 0,74 |
Ausstattung
Fliesen, Parkett, Fußbodenheizung, Wohnküche / offene Küche, Personenaufzug, Dusche, Kabel/Satelliten-TV, Parkplatz
Internet und TV
Information zur Internet und TV Versorgung hier
Ihre persönliche Beratung
Mag. (FH) Ralph Gut
Rimo Immobilien GmbH
info@rimo.at
+43664 1438384
