Beschreibung der Immobilie
Sehr geehrte Interessenten!
Ich möchte Sie darauf hinweisen, dass ich mich vom 04.03.2026 bis einschließlich 11.03.2026 im Urlaub befinde und in dieser Zeit telefonisch nicht erreichbar bin.
Während meiner Abwesenheit vertritt mich meine Kollergin Frau Arjeta Gojani, erreichbar unter folgender Telefonnummern/E-Mail: +43 (1) 391 13 11 / ag@brichard.at.
Ihre Anfrage werde ich ab dem 12.03.2026 bearbeiten.
1100 - Alxingergasse
Baujahr 2018,
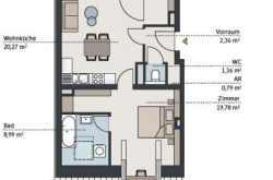
2 Zimmer DG-Wohnung zu vermieten,
die Wohnung befindet sich im 2.DG = 7. Liftstock,
die Wohnung kann ab sofort bezogen werden,
52,95 m2 Wohnfläche zzgl. 14,33 m2 Terrasse,
Wohnzimmer mit offener Küche und Zugang zur Terrasse, Schlafzimmer mit Zugang zum Bad (mit Wanne, Fenster und Waschmaschinenanschluss), Vorzimmer,
separates WC,
Zentralheizung (Fußbodenheizung),
1 Kellerabteil vorhanden,
Mietdauer: 5 Jahre,
BMM: € 950,00 (inkl. BK und 10% UST.)
Nebenkosten bei Anmietung:
Kaution: 4BMM
Der Immobilienmakler erklärt, dass er – entgegen dem in der Immobilienwirtschaft üblichen Geschäftsgebrauch des Doppelmaklers – einseitig nur für den Vermieter tätig ist.
Infrastruktur / Entfernungen
Gesundheit
Arzt <500m
Apotheke <500m
Klinik <1.000m
Krankenhaus <1.500m
Kinder & Schulen
Schule <500m
Kindergarten <500m
Universität <1.000m
Höhere Schule <2.500m
Nahversorgung
Supermarkt <500m
Bäckerei <500m
Einkaufszentrum <1.500m
Sonstige
Geldautomat <500m
Bank <500m
Post <500m
Polizei <500m
Verkehr
Bus <500m
U-Bahn <1.000m
Straßenbahn <500m
Bahnhof <1.000m
Autobahnanschluss <2.000m
Angaben Entfernung Luftlinie / Quelle: OpenStreetMap
Eckdaten
| Gesamtmiete: | 950,00 € |
| Fläche: | 52,95 m² |
| Zimmer: | 2 |
Basisdaten zur Immobilie
| Objektnr: | 6876/1620 |
| Art: | Wohnung |
| Land: | Österreich |
| Alter: | Neubau |
| Gesamtmiete: | 950,00 € |
| Kaltmiete (netto): | 736,04 € |
| Kaltmiete: | 863,64 € |
| Provision: | Gemäß Erstauftraggeberprinzip bezahlt der Abgeber die Provision. |
| Betriebskosten: | 127,60 € |
| MwSt Gesamt: | 86,36 € |
| Wohnfläche: | 52,95 m² |
| Nutzfläche: | 67,28 m² |
| Grundstücksfl.: | 52,95 m² |
| Gesamtfläche: | 52,95 m² |
| Zimmer: | 2 |
| Bäder: | 1 |
| WC: | 1 |
| Terrassen: | 1 |
| Heizwärmebedarf: | B 47,00 kWh/m²a |
| fGEE: | C 1,01 |
Ausstattung
Parkett, Fliesen, Fußbodenheizung, Zentralheizung, Wohnküche / offene Küche, Personenaufzug, Bad mit Fenster, Badewanne
Internet und TV
Information zur Internet und TV Versorgung hier
Ihre persönliche Beratung
Michelle Gnadenberger
BRI Immobilienmakler GmbH
mg@brichard.at
+43 676 7043377
