Exklusives Doppelhaus am Bartberg in Pressbaum | Panoramalage mit Blick auf den Wienerwaldsee & direkter Waldrandlage | Schlüsselfertig
Haus
- Doppelhaushälfte,
3013
Pressbaum
Beschreibung der Immobilie
Panoramalage mit Blick auf den Wienerwaldsee & direkter Waldrandlage
In absoluter Premiumlage am Bartberg in Pressbaum entsteht ein außergewöhnliches Doppelhausprojekt, das höchste Wohnqualität mit einer der begehrtesten Naturlagen des Wienerwaldes vereint.
Hier wohnen Sie erhöht, sonnig und uneinsehbar – mit freiem Blick über die Baumkronen hinweg bis zum Wienerwaldsee und mit dem Wienerwald unmittelbar hinter Ihrem Garten. Eine Lage, die in dieser Form kaum mehr verfügbar ist.
Nur rund 20 Minuten von Wien entfernt genießen Sie eine Wohnqualität, die sonst nur Ferienresidenzen vorbehalten ist.
Die Lage – diskret, erhöht, privilegiert
Der Bartberg zählt zu den exklusivsten Wohnadressen in Pressbaum. Die erhöhte Topografie ermöglicht einen unverbaubaren Weitblick und maximale Privatsphäre.
Besondere Highlights der Lage:
-
Erhöhte Panoramalage mit Fernblick Richtung Wienerwaldsee
-
Direkte Angrenzung an den Wienerwald – keine Bebauung hinter dem Haus
-
Absolute Grünruhelage ohne Durchzugsverkehr
-
Sonnige Ausrichtung
-
Natur beginnt unmittelbar vor Ihrer Haustüre
Hier endet die Bebauung – und beginnt der Wald.
Architektur & Wohnkonzept
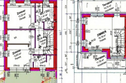
Das Doppelhaus wird auf einem 400 m² großen Grundstück realisiert und überzeugt durch klare, moderne Architektur sowie durchdachte Grundrisse mit großzügigen Glasflächen.
Das Projekt umfasst:
Top 1
-
Wohnnutzfläche: ca. 129,18 m²
-
Terrasse: ca. 26,49 m²
-
Garten: ca. 76,69 m²
Top 2
-
Wohnnutzfläche: ca. 151,64 m²
-
Terrasse: ca. 34,50 m²
-
Balkon: ca. 5,55 m²
-
Garten: ca. 160,90 m²
Großzügige Wohnküchen, weitläufige Terrassen und private Gartenbereiche schaffen ein Wohngefühl auf Villenniveau.
Ausstattung auf gehobenem Niveau
-
Energieeffiziente Bauweise
-
Luftwärmepumpe mit Fußbodenheizung und -kühlung
-
Ziegelmassivbauweiße (Wienerberger Ziegel)
-
3-fach verglaste Fenster (Alu/Alu)
-
Extensiv begrünte Flachdächer
-
Zwei Stellplätze pro Einheit auf Eigengrund
-
Schlüsselfertig
Nachhaltigkeit trifft auf zeitlose Eleganz.
Wohnen zwischen See & Wald
Vom Obergeschoss genießen Sie einen eindrucksvollen Blick Richtung Wienerwaldsee – besonders stimmungsvoll in den Abendstunden.
Das hintere Doppelhaus grenzt direkt an den Wienerwald. Kein gegenüberliegender Nachbar, keine zukünftige Verbauung – nur Natur. Diese seltene Kombination aus Seeblick, erhöhter Lage und unmittelbarem Waldanschluss verleiht dem Projekt eine außergewöhnliche Exklusivität.
Eine Immobilie für Menschen, die nicht nur ein Haus suchen –
sondern eine besondere Lage mit bleibendem Wert.
Für Fragen oder weitere Informationen stehe ich Ihnen gerne telefonisch unter
+43 660 531 74 20 oder per E-Mail an zangger@decus.at zur Verfügung.
Hinweis gemäß Energieausweisvorlagegesetz: Ein Energieausweis wurde vom Eigentümer bzw. Verkäufer, nach unserer Aufklärung über die generell geltende Vorlagepflicht, sowie Aufforderung zu seiner Erstellung noch nicht vorgelegt. Daher gilt zumindest eine dem Alter und der Art des Gebäudes entsprechende Gesamtenergieeffizienz als vereinbart. Wir übernehmen keinerlei Gewähr oder Haftung für die tatsächliche Energieeffizienz der angebotenen Immobilie.
Wir weisen darauf hin, dass zwischen dem Vermittler und dem zu vermittelnden Dritten ein familiäres oder wirtschaftliches Naheverhältnis besteht.
Der Vermittler ist als Doppelmakler tätig.
DECUS Immobilien GmbH – Wir beleben Räume
Für weitere Informationen und Besichtigungen steht Ihnen gerne Herr Gerhard Zangger unter der Mobilnummer +43 660 531 74 20und per E-Mail unter zangger@decus.at persönlich zur Verfügung.
www.decus.at | office@decus.at
Wichtige Informationen
Bitte beachten Sie, dass per 13.06.2014 eine neue Richtlinie für Fernabsatz- und Auswärtsgeschäfte in Kraft getreten ist.
Ab 1.4.2024 entfallen die Grundbuchs- und Pfandrechtseintragungsgebühren vorübergehend für Eigenheime bis zu einer Bemessungsgrundlage von EUR 500.000,-. Voraussetzung ist das dringende Wohnbedürfnis, ausgenommen davon sind vererbte oder geschenkte Immobilien. Die Befreiung ist jedoch für den Einzelfall zu prüfen, DECUS Immobilien übernimmt hierzu keine Haftung.
Ab 01.07.2023 gilt das Erstauftraggeber-Prinzip bei Wohnungsmietverträgen, ausgenommen davon sind Dienst-/Natural-/Werkswohnungen. Wir dürfen gem. § 17 Maklergesetz darauf hinweisen, dass wir auf die Doppelmaklertätigkeit gem. § 5 Maklergesetz bei Wohnungsmietverträgen verzichten und nur noch einseitig tätig sind (bei den restlichen Vermittlungsarten nicht) und ein wirtschaftliches Naheverhältnis zu unseren Auftraggebern besteht.
Im Falle eines Abschlusses mit Ihnen oder einem von Ihnen namhaft gemachten Dritten bzw. bei beidseitiger Willensübereinstimmung beträgt unser Honorar (lt. Honorarverordnung für Immobilienmakler) 2 Bruttomonatsmieten (BMM) bei Dienst-/Natural-/Werkwohnungen sowie Suchaufträgen, 3 BMM bei Gewerbe-, PKW-, Keller- und Lagermietverträgen sowie bei Kaufobjekten 3 % des Kaufpreises, zuzüglich der gesetzlichen Umsatzsteuer.
Dieses Objekt wird Ihnen unverbindlich und freibleibend angeboten. Oben angeführte Angaben basieren auf Informationen und Unterlagen des Eigentümers und sind unsererseits ohne Gewähr.
Nähere Informationen sowie unsere AGBs und die Nebenkostenübersichtsblatt finden Sie auf unserer Homepage www.decus.at unter "Service" - "Rechtliches zum FAGG" sowie im Anhang der zugesendeten Objekt-Exposés!
Infrastruktur / Entfernungen
Gesundheit
Arzt <500m
Apotheke <1.500m
Klinik <6.000m
Kinder & Schulen
Schule <1.500m
Kindergarten <2.000m
Nahversorgung
Supermarkt <1.500m
Bäckerei <1.500m
Einkaufszentrum <9.500m
Sonstige
Bank <1.500m
Geldautomat <1.500m
Post <1.500m
Polizei <2.500m
Verkehr
Bus <1.000m
Bahnhof <1.500m
Autobahnanschluss <3.000m
Angaben Entfernung Luftlinie / Quelle: OpenStreetMap
Eckdaten
| Kaufpreis: | 640.000,00 € |
| Fläche: | 129,00 m² |
| Zimmer: | 4,50 |
Basisdaten zur Immobilie
| Objektnr: | 1152351 |
| Art: | Haus - Doppelhaushälfte |
| Land: | Österreich |
| Zustand: | Erstbezug |
| Alter: | Neubau |
| Kaufpreis: | 640.000,00 € |
| Provision: | 3% des Kaufpreises zzgl. 20% USt. |
| Wohnfläche: | 129,00 m² |
| Zimmer: | 4,50 |
| Bäder: | 2 |
| WC: | 3 |
| Stellplätze: | 2 |
| Garten: | 76,00 m² |
Ausstattung
Fußbodenheizung, Bad mit Fenster
Internet und TV
Information zur Internet und TV Versorgung hier
Ihre persönliche Beratung
Gerhard Zangger
DECUS Immobilien GmbH
zangger@decus.at
+43 660 531 74 20
+43 660 531 74 20
F +43 1 35 600 10
