Reihenhaus in Markt Piesting – nur 35 Min. von Wien – Mietkaufoption mit 2 % Fixzins
Haus
- Reihenhaus,
2753
Markt Piesting
Lage der Immobilie
Die Reihenhäuser befinden sich in 2753 Markt Piesting, einem idyllischen Ort mit ausgezeichneter Infrastruktur und hohem Wohnkomfort. Wien ist in nur 35 Minuten erreichbar, was diese Immobilien ideal für Pendler macht. Supermärkte, Schulen, Arztpraxen und der Bahnhof sind fußläufig erreichbar. Die Umgebung bietet zahlreiche Freizeitmöglichkeiten, darunter Wander- und Radwege, Naturparks sowie Naherholungsgebiete.Beschreibung der Immobilie
Diese modernen Reihenhäuser in 2753 Markt Piesting bieten eine einzigartige Mietkaufoption mit nur 2 % Fixzins. Sichern Sie sich Ihr Eigenheim ohne sofortige vollständige Kaufpreiszahlung und profitieren Sie von einer nachhaltigen und modernen Wohnqualität.
Die Häuser befinden sich in einer zentralen Lage mit fußläufiger Erreichbarkeit von Supermärkten, Schulen, Ärzten und dem Bahnhof. Wien ist in nur 35 Minuten erreichbar, wodurch sich die Immobilien auch ideal für Pendler eignen. Die Umgebung bietet zahlreiche Freizeitmöglichkeiten, darunter Wander- und Radwege, Naturparks sowie Naherholungsgebiete.
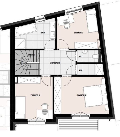
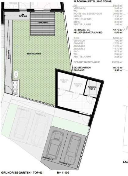
Jede Einheit verfügt über fünf Zimmer, eine durchdachte Raumaufteilung und einen lichtdurchfluteten Wohnbereich. Die Beheizung erfolgt über eine Luftwärmepumpe mit Fußbodenheizung in allen Geschossen. Hochwertige Kunststoff-Alu-Fenster mit 3-fach Thermoverglasung und bauseitige Raffstores sorgen für optimalen Wohnkomfort. Zusätzlich gehören zu jeder Einheit ein Eigengarten und zwei asphaltierte PKW-Stellplätze. Die Massivbauweise mit Ziegelmauerwerk und hochwertiger Wärmedämmung gewährleistet eine hohe Energieeffizienz und nachhaltigen Wohnkomfort.
Mietkaufoption mit 2 % Fixzins – Details für die einzelnen Häuser
Top 3 – Reihenhaus mit Garten und 2 PKW-Stellplätzen sowie Kellerabteil
Reihenhaus mit Garten und 2 PKW-Stellplätzen Konstante Fixmiete pro Monat: 1.350 Euro brutto zzgl. Betriebskosten
Kaufoptionsgeld: 40.000 Euro (reduziert den Kaufpreis nach 5 Jahren, verfällt bei Nichtkauf)
Kaufbonus nach 5 Jahren: 20.000 Euro (wird vom Kaufpreis abgezogen)
Kaufpreis nach 5 Jahren mit 2 % Fixzins: 514.122,02 Euro
Die Provision wird 50:50 aufgeteilt - der erste Teil entfällt bei Einzug der zweite Teil beim Kauf
Die Betriebskosten belaufen sich voraussichtlich auf rund 310 € monatlich.
Top 2 – VERKAUFT
TOP 1 - VERFÜGBAR
Wichtige Vorteile der Mietkaufoption
- Das Optionsrecht ist übertragbar
Sichern Sie sich jetzt Ihr Traumhaus mit dieser einzigartigen Mietkaufoption.
Jetzt anfragen und Besichtigungstermin vereinbaren
Hinweis gemäß Energieausweisvorlagegesetz: Ein Energieausweis wurde vom Eigentümer bzw. Verkäufer, nach unserer Aufklärung über die generell geltende Vorlagepflicht, sowie Aufforderung zu seiner Erstellung noch nicht vorgelegt. Daher gilt zumindest eine dem Alter und der Art des Gebäudes entsprechende Gesamtenergieeffizienz als vereinbart. Wir übernehmen keinerlei Gewähr oder Haftung für die tatsächliche Energieeffizienz der angebotenen Immobilie.
Infrastruktur / Entfernungen
Gesundheit
Arzt <2.500m
Apotheke <1.000m
Klinik <4.500m
Kinder & Schulen
Schule <500m
Kindergarten <2.500m
Nahversorgung
Supermarkt <500m
Bäckerei <1.000m
Einkaufszentrum <9.500m
Sonstige
Bank <500m
Geldautomat <500m
Post <4.000m
Polizei <4.000m
Verkehr
Bus <500m
Bahnhof <500m
Autobahnanschluss <5.500m
Flughafen <8.500m
Angaben Entfernung Luftlinie / Quelle: OpenStreetMap
Eckdaten
| Gesamtmiete: | 1.350,00 € |
| Fläche: | 118,31 m² |
| Zimmer: | 5 |
Basisdaten zur Immobilie
| Objektnr: | 7633/420 |
| Art: | Haus - Reihenhaus |
| Land: | Österreich |
| Baujahr: | 2024 |
| Zustand: | Erstbezug |
| Alter: | Neubau |
| Gesamtmiete: | 1.350,00 € |
| Kaltmiete (netto): | 1.350,00 € |
| Kaltmiete: | 1.350,00 € |
| Provision: | 18.684,00 € inkl. 20% USt. |
| Nutzfläche: | 118,31 m² |
| Zimmer: | 5 |
| Bäder: | 1 |
| WC: | 2 |
| Terrassen: | 2 |
| Stellplätze: | 2 |
| Garten: | 80,76 m² |
| Keller: | 4,52 m² |
Ausstattung
Fußbodenheizung
Internet und TV
Information zur Internet und TV Versorgung hier
Ihre persönliche Beratung
Gernot Taschler
MOO Immobilien GmbH
gt@moo-immobilien.at
+436503553247
