GROßZÜGIGES EINFAMILIENHAUS MIT VIEL RAUM FÜR IDEEN
Haus
- Einfamilienhaus,
4540
Bad Hall
Lage der Immobilie
Das Haus liegt in einer ruhigen Wohngegend in Bad Hall, die sowohl Ruhe als auch eine gute Anbindung an die Infrastruktur bietet. Einkaufsmöglichkeiten, Schulen, Kindergarten und ärztliche Versorgung sind in wenigen Minuten erreichbar. Gleichzeitig sind Spaziergänge oder Radtouren ins Grüne bequem möglich, sodass Freizeit und Natur direkt vor der Haustür liegen. Bad Hall selbst ist bekannt für seine charmante Mischung aus Tradition, Kultur, Lebensqualität und Gesundheitsangeboten, wie den Thermalquellen und dem Kurpark. Hier verbindet sich entspanntes Wohnen mit einer familienfreundlichen Umgebung.Beschreibung der Immobilie
Eckdaten
| Kaufpreis: | 379.000,00 € |
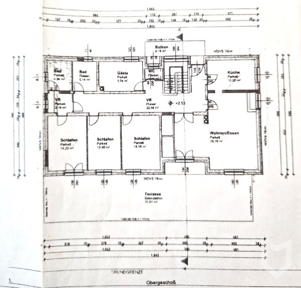
| Fläche: | 195,00 m² |
Basisdaten zur Immobilie
| Objektnr: | IMMOMAKLEREI-26-0366 |
| Art: | Haus - Einfamilienhaus |
| Land: | Österreich |
| Baujahr: | 1970 |
| Kaufpreis: | 379.000,00 € |
| Provision: | 3,60% inkl. Ust. |
| Wohnfläche: | 195,00 m² |
| Grundstücksfl.: | 978,00 m² |
| Stellplätze: | 5 |
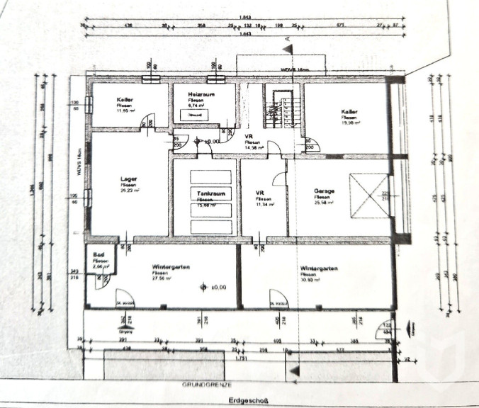
| Keller: | 115,00 m² |
| Heizwärmebedarf: | C 63,80 kWh/m²a |
| fGEE: | B 1,00 |
Ausstattung
Öl, Kamin, Zentralheizung, Einbauküche
Internet und TV
Information zur Internet und TV Versorgung hier
Ihre persönliche Beratung
Ing. Christian Kerbl
IMMOMAKLEREI
c.kerbl@immomaklerei.at
00436642279874
00436642279874
