Exklusives Penthouse in den HEPTA Residences – Wohnen auf höchstem Niveau mit zwei großzügigen Terrassen
Wohnung
- Dachgeschoß,
1210
Wien
Lage der Immobilie
Das Projekt befindet sich an der Grenze von Großjedlersdorf I und Strebersdorf und liegt damit in einem der begehrtesten und grünsten Grätzl des 21. Bezirks. Die Umgebung ist geprägt von Einfamilienhäusern, angenehmer Ruhe sowie großzügigen Grün- und Naherholungsflächen und bietet eine ideale Kombination aus urbaner Nähe und hoher Lebensqualität. Öffentliche Verkehrsanbindung: Die Buslinien 30A und 32A (Haltestelle Steinamangergasse) befinden sich direkt um die Ecke. Zusätzlich sorgen die Straßenbahnlinien 30 und 31 für eine schnelle Verbindung Richtung Floridsdorf (U6). Die S-Bahn-Stationen Strebersdorf und Jedlersdorf (S3, S4 und S7) gewährleisten eine rasche Erreichbarkeit der Wiener Innenstadt und darüber hinaus. Auch für Autofahrer ist die Lage ideal - die Donauuferautobahn (A22) bietet eine schnelle Verbindung sowohl in die Innenstadt als auch ins Umland. Natur und Infrastruktur: Die naturnahe Umgebung lädt zum Radfahren entlang des Marchfeldkanals, zu Spaziergängen am Bisamberg, zu Sonnenuntergängen in den Weinbergen und zu geselligen Abenden bei den traditionellen Heurigen ein. In der unmittelbaren Umgebung befinden sich zahlreiche Restaurants sowie mehrere Kindergärten und Schulen wie der renommierte De La Salle Bildungscampus. Supermärkte wie Lidl, Billa, Hofer und Eurospar sind in etwa 10 Gehminuten erreichbar.Beschreibung der Immobilie
Sieben Wohneinheiten. Ein durchdachtes Konzept.
Willkommen in den HEPTA Residences – einem exklusiven Neubauprojekt mit 7 außergewöhnlichen Wohneinheiten, die Individualität und architektonische Klarheit in einem stimmigen Gesamtkonzept vereinen. Jede Wohnung ist ein Unikat, verbunden durch sorgfältige Planung, hochwertige Ausführung und ein durchdachtes Wohngefühl.
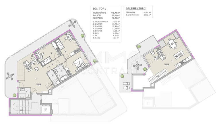
Top 7 begeistert mit lichtdurchfluteten Räumen und großzügigen Glasflächen. Das offene Konzept mit bis zu knapp 6 m Raumhöhe und weitläufigen Außenbereichen sorgt für ein höchst beeindruckendes Wohngefühl. Das außergewöhnliche Penthouse bietet auf rund 114 m² Wohnfläche verteilt auf zwei Ebenen viel Platz für exklusive Wohnträume – perfekt für alle, die etwas ganz Besonderes suchen. Die drei Schlafräume eröffnen vielfältige Nutzungsmöglichkeiten: Arbeiten im eigenen Homeoffice, ein separates Fitness- oder Yogazimmer oder ein komfortabler Gästebereich. Zwei Badezimmer – eines mit Badewanne und WC, das andere mit Dusche, WC und Fenster mit Grünblick – sorgen für zusätzlichen Komfort. Die beiden weitläufigen Terrassen ergänzen das Wohnerlebnis: Die untere Terrasse mit ca. 45 m² Außenfläche eignet sich ideal als ruhiger Sonnenplatz mit charmanter Bepflanzung, während die obere Terrasse mit ca. 28 m² perfekt für entspannte Abende mit Freunden als Outdoor-Wohnzimmer oder privater Sonnenbereich genutzt werden kann.
Die HEPTA Residences stehen für zeitgemäßes Wohnen im Erstbezug auf höchstem Niveau. Das Projekt ist bereits fertiggestellt und sofort bezugsfertig. Dank Vollwärmeschutzfassade, 3-fach-Isolierverglasung, moderner Luftwärmepumpe sowie einer PV-Anlage am Dach überzeugt das Gebäude auch in puncto Energieeffizienz und Nachhaltigkeit. Ein Aufzug mit barrierefreiem Zugang zu allen Ebenen, private Kellerabteile, ein Fahrrad- und Kinderwagenraum sowie eine hauseigene Tiefgarage runden das Angebot ab.
Gleichzeitig sind Natur und frische Luft hierselbstverständlich: Alle Wohnungen verfügen über großzügige Freiflächen in Form von Eigengärten, Balkonen oder Terrassen, die zum Entspannen und Genießen einladen. Ideal für Paare und Familien, die das Stadtleben schätzen, aber dennoch einen Rückzugsort zum Durchatmen suchen.
Das Projekt im Überblick:
- 7 Eigentumswohnungen mit Wohnflächen zwischen 45 m² und 114 m²
- 2-5 Zimmer mit durchdachten Grundrissen
- Großzügige Außenflächen mit Wasseranschlüssen bei jeder Einheit
- Hauseigene Tiefgarage mit 7 Stellplätzen (inkl. Vorbereitung für E-Ladestationen)
- Kellerabteil zu jeder Wohnung, gemeinsamer Fahrrad- und Kinderwagenraum
- Fertiggestellt und bezugsbereit
Ausstattungshighlits:
- Energieeffiziente Luft-Wärmepumpe und PV-Anlage am Dach
- Fußbodenheizung und -kühlung mit Einzelraumsteuerung sowie Klimaanlagen im Dachgeschoß
- Hochwertige Innenausstattung mit Eichenparkettböden
- italienische Feinsteinzeugfliesen und Markensanitärgegenstände von Villeroy & Boch
- 3-fach-Isolierverglasung für optimale Wärme- und Schalldämmung
- Elektrisch bedienbarer Sonnenschutz/Raffstores von Josko
- Natursteinbeläge auf den Terrasse
- Glasfaseranschluss (A1)
- Videogegensprechanlage und einbruchshemmende Wohnungseingangstüren
Ein Tiefgaragen-Stellplatz kann zuzüglich ab EUR 28.000 erworben werden.
Bei Interesse oder für die Vereinbarung eines Besichtigungstermins kontaktieren Sie mich jederzeit gerne unter:
Tel: 0664 88271745, Mail: Z.Mazurek@IMMOcontract.at
Wir weisen darauf hin, dass zwischen dem Vermittler und dem zu vermittelnden Dritten ein familiäres oder wirtschaftliches Naheverhältnis besteht.
Der Vermittler ist als Doppelmakler tätig.
Infrastruktur / Entfernungen
Gesundheit
Arzt <1.000m
Apotheke <1.000m
Klinik <2.000m
Krankenhaus <2.000m
Kinder & Schulen
Schule <500m
Kindergarten <1.000m
Universität <2.000m
Höhere Schule <3.000m
Nahversorgung
Supermarkt <1.000m
Bäckerei <1.000m
Einkaufszentrum <1.500m
Sonstige
Bank <1.000m
Geldautomat <1.000m
Post <1.000m
Polizei <1.500m
Verkehr
Bus <500m
U-Bahn <3.000m
Straßenbahn <1.000m
Bahnhof <1.500m
Autobahnanschluss <2.000m
Angaben Entfernung Luftlinie / Quelle: OpenStreetMap
Eckdaten
| Objektnr: | 1939/215162 |
| Art: | Wohnung - Dachgeschoß |
| Land: | Österreich |
| Baujahr: | 2025 |
| Zustand: | Erstbezug |
| Alter: | Neubau |
| Kaufpreis: | 845.000,00 € |
| Provision: | 3% des Kaufpreises zzgl. 20% USt. |
| Wohnfläche: | 113,72 m² |
| Zimmer: | 5 |
| Bäder: | 2 |
| WC: | 2 |
| Balkone: | 1 |
| Terrassen: | 2 |
| Heizwärmebedarf: | B 28,60 kWh/m²a |
| fGEE: | A+ 0,68 |
Ausstattung
Fliesen, Parkett, Fußbodenheizung, Personenaufzug, Westbalkon, Bad mit Fenster, Badewanne, Dusche
Internet und TV
Information zur Internet und TV Versorgung hier
Ihre persönliche Beratung
Zuzanna Mazurek, MA
IMMOcontract Immobilien Vermittlung GmbH
Z.Mazurek@IMMOcontract.at
+43 664 88271745
+43 664 88271745
