Lage der Immobilie
Die Reihenhäuser befinden sich in 2753 Markt Piesting, einem idyllischen Ort mit ausgezeichneter Infrastruktur und hohem Wohnkomfort. Wien ist in nur 35 Minuten erreichbar, was diese Immobilien ideal für Pendler macht. Supermärkte, Schulen, Arztpraxen und der Bahnhof sind fußläufig erreichbar. Die Umgebung bietet zahlreiche Freizeitmöglichkeiten, darunter Wander- und Radwege, Naturparks sowie Naherholungsgebiete.Beschreibung der Immobilie
Schlüsselfertiges Reihenhaus mit Garten – Mietkaufoption möglich
5-Zimmer-Neubau in 2753 Markt Piesting
In 2753 Markt Piesting gelangt ein hochwertiges, schlüsselfertiges Reihenhaus mit Eigengarten, 2 PKW-Stellplätzen und Kellerabteil zum Verkauf.
Zusätzlich besteht die Möglichkeit einer Mietkaufoption.
Objektbeschreibung
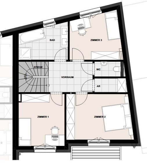
- 5 Zimmer auf ca. 120 m² Wohnfläche
- Großer Eigengarten
- 2 asphaltierte PKW-Stellplätze
- Kellerabteil
- Luftwärmepumpe mit Fußbodenheizung
- 3-fach-verglaste Kunststoff-Alu-Fenster mit Raffstores (bauseits)
- Massivbauweise mit Ziegelmauerwerk
- Schlüsselfertige Ausführung
Lage
Das Reihenhaus befindet sich in einer familienfreundlichen Wohngegend mit sehr guter Infrastruktur:
Supermärkte, Schulen, Ärzte sowie der Bahnhof sind fußläufig erreichbar.
Wien ist in ca. 35 Minuten erreichbar.
Die Umgebung bietet viel Natur, Ruhe und zahlreiche Freizeitmöglichkeiten.
Bei Interesse kontaktieren Sie mich gerne unter:
0681 812 259 62 Dipl. Ing. Elif Coskun
Hinweis gemäß Energieausweisvorlagegesetz: Ein Energieausweis wurde vom Eigentümer bzw. Verkäufer, nach unserer Aufklärung über die generell geltende Vorlagepflicht, sowie Aufforderung zu seiner Erstellung noch nicht vorgelegt. Daher gilt zumindest eine dem Alter und der Art des Gebäudes entsprechende Gesamtenergieeffizienz als vereinbart. Wir übernehmen keinerlei Gewähr oder Haftung für die tatsächliche Energieeffizienz der angebotenen Immobilie.
Der Vermittler ist als Doppelmakler tätig.
Infrastruktur / Entfernungen
Gesundheit
Arzt <2.500m
Apotheke <1.000m
Klinik <4.500m
Kinder & Schulen
Schule <500m
Kindergarten <2.500m
Nahversorgung
Supermarkt <500m
Bäckerei <1.000m
Einkaufszentrum <9.500m
Sonstige
Bank <500m
Geldautomat <500m
Post <4.000m
Polizei <4.000m
Verkehr
Bus <500m
Bahnhof <500m
Autobahnanschluss <5.500m
Flughafen <8.500m
Angaben Entfernung Luftlinie / Quelle: OpenStreetMap
Eckdaten
| Kaufpreis: | 519.000,00 € |
| Fläche: | 118,31 m² |
| Zimmer: | 5 |
Basisdaten zur Immobilie
| Objektnr: | 7633/331 |
| Art: | Haus - Reihenhaus |
| Land: | Österreich |
| Baujahr: | 2024 |
| Zustand: | Erstbezug |
| Alter: | Neubau |
| Kaufpreis: | 519.000,00 € |
| Provision: | 3% des Kaufpreises zzgl. 20% USt. |
| Nutzfläche: | 118,31 m² |
| Zimmer: | 5 |
| Bäder: | 1 |
| WC: | 2 |
| Terrassen: | 1 |
| Stellplätze: | 2 |
| Garten: | 80,76 m² |
| Keller: | 4,52 m² |
Ausstattung
Fußbodenheizung
Internet und TV
Information zur Internet und TV Versorgung hier
Ihre persönliche Beratung
Gernot Taschler
MOO Immobilien GmbH
gt@moo-immobilien.at
+436503553247
