Beschreibung der Immobilie
Top 1 Zimmerwohnung direkt am HAYDNPARK
Das Wohnhaus liegt direkt am Haydnpark, an der Grenze zum 5. Bezirk „Margareten“. Die unweit entfernte Meidlinger Haupstraße lädt zum Einkaufen und Flanieren ein.
In direkter Umgebung befinden sich sämtliche Geschäfte des täglichen Bedarfs (z.B. Billa, Spar, Zielpunkt, Bäckereien, Banken). Natürlich sind auch Cafés und sonstige Geschäfte in unmittelbarer Reichweite.
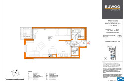
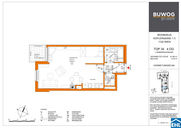
Diese geräumige 1-Zimmerwohnung befindet sich im 4.Obergeschoß und verfügt über einen Wohn-/Schlafraum mit Küche, ein Badezimmer mit Wanne, ein separates WC und einen Vorraum. Über das Wohnzimmer gelangt man auf den hofseitigen Balkon, welcher das Angebot abrundet und zu gemütlichen Stunden im Freien garantiert. Es handelt sich um Musterfotos eines vergleichbaren Objekts.
Ausstattung
- voll ausgestattete Küche
- Badezimmer mit Badewanne, Waschmaschinenanschluss und separates WC.
- Im Wohnraum wurde ein Parkettboden verlegt und die Nassräume sind mit keramischen Belag ausgestattet.
Das Haus verfügt über einen Lift, Waschküche, Kinderwagen- und Fahrradabstellraum sowie über ein Kellerabteil pro Wohnung.
Das Objekt ist nicht barrierefrei.
Öffentliche Verkehrsanbindung
U-Bahnstation U4, U6 „Längenfeldgasse“
Autobus 59A, 62A
Straßenbahnlinien 6, 18 und 62
zzgl. Heizung EUR 35,43 + USt. EUR 7,09 = Brutto EUR 42,52
zzgl. Warmwasser EUR 25,01+ USt. EUR 2,50 = Brutto EUR 27,51
Befristung: 5 Jahre, 1 Jahr Kündigungsverzicht, 3 Monate Kündigungsfrist
Nebenkosten:
3 BMM Kaution, Vertragserrichtungsgebühr.
Wir weisen darauf hin, dass zwischen dem Vermittler und dem zu vermittelnden Dritten ein familiäres oder wirtschaftliches Naheverhältnis besteht.
Der Immobilienmakler erklärt, dass er – entgegen dem in der Immobilienwirtschaft üblichen Geschäftsgebrauch des Doppelmaklers – einseitig nur für den Vermieter tätig ist.
Infrastruktur / Entfernungen
Gesundheit
Arzt <250m
Apotheke <250m
Klinik <750m
Krankenhaus <1.000m
Kinder & Schulen
Schule <500m
Kindergarten <250m
Universität <1.000m
Höhere Schule <500m
Nahversorgung
Supermarkt <250m
Bäckerei <500m
Einkaufszentrum <1.000m
Sonstige
Geldautomat <500m
Bank <750m
Post <500m
Polizei <750m
Verkehr
Bus <250m
U-Bahn <1.000m
Straßenbahn <250m
Bahnhof <1.000m
Autobahnanschluss <3.250m
Angaben Entfernung Luftlinie / Quelle: OpenStreetMap
Eckdaten
| Gesamtmiete: | 795,01 € |
| Fläche: | 41,68 m² |
| Zimmer: | 1 |
Basisdaten zur Immobilie
| Objektnr: | 14025 |
| Art: | Wohnung |
| Land: | Österreich |
| Baujahr: | 2012 |
| Zustand: | Gepflegt |
| Alter: | Neubau |
| Gesamtmiete: | 795,01 € |
| Kaltmiete (netto): | 600,76 € |
| Kaltmiete: | 722,73 € |
| Provision: | Gemäß Erstauftraggeberprinzip bezahlt der Abgeber die Provision. |
| Betriebskosten: | 121,97 € |
| MwSt Gesamt: | 72,28 € |
| Wohnfläche: | 41,68 m² |
| Zimmer: | 1 |
| Bäder: | 1 |
| WC: | 1 |
| Balkone: | 1 |
| Heizwärmebedarf: | B 38,10 kWh/m²a |
| fGEE: | B 0,96 |
Ausstattung
Fliesen, Parkett, Gas, Zentralheizung, Einbauküche, Wohnküche / offene Küche, Personenaufzug, Westbalkon, Badewanne
Internet und TV
Information zur Internet und TV Versorgung hier
Ihre persönliche Beratung
Leo Idinger
EHL Immobilien GmbH
l.idinger@ehl.at
+43-1-512 76 90-407
+43 664 78015352
