NEU • FAMILIENTRAUM • 4 HÄUSER • GARTEN • TERRASSE • PKW-STELLPLÄTZE • NÄHE LOBAU • LUFTWÄRMEPUMPE • 1220 WIEN
Haus
- Doppelhaushälfte,
1220
Wien
Lage der Immobilie
NATIONALPARK LOBAUBeschreibung der Immobilie
- NEUES ZUHAUSE FÜR DIE GANZE FAMILIE:
Zum Verkauf gelangen zwei moderne Doppelhaushälften (vier Einheiten) mit Eigengarten in Toplage des 22. Bezirks.
Die Häuser verfügen über sechs Zimmer, einen Eigengarten (kein Pacht- oder Baurecht), eine Terrasse, einen PKW-Stellplatz sowie eine hocheffiziente, energiesparende Bauweise (HWB 37,80 kWh/m²a, Klasse B; fGEE 0,68, Klasse A+).
Die Häuser wurden für anspruchsvolle Familien konzipiert, die Wert auf Platz, Ruhe, Garten und niedrige Energiekosten legen und zugleich ein ideales Konzept für Homeoffice-Lösungen suchen.
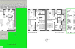
- DURCHDACHTE RAUMAUFTEILUNG:
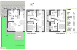
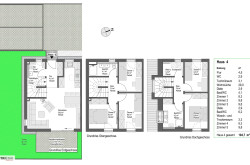
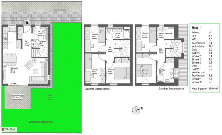
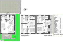
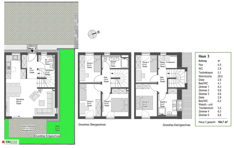
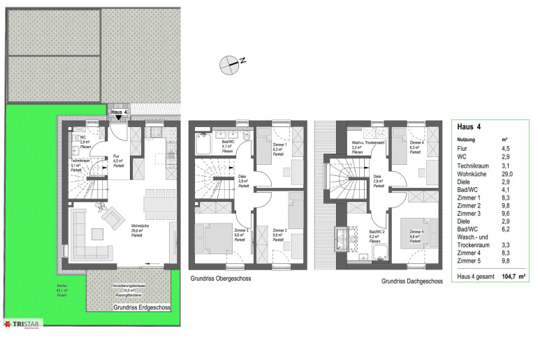
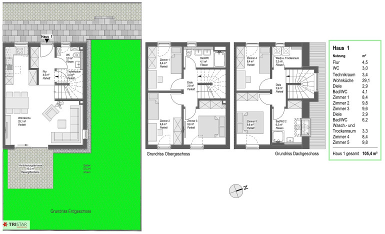
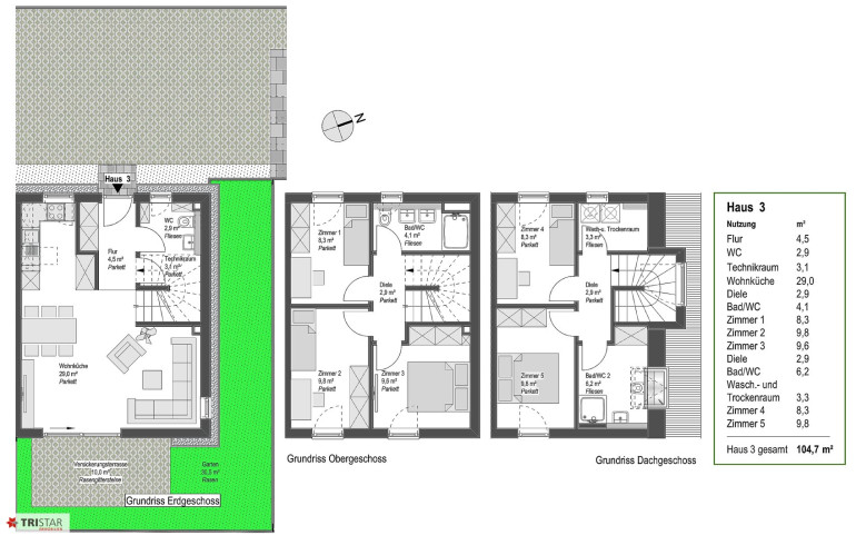
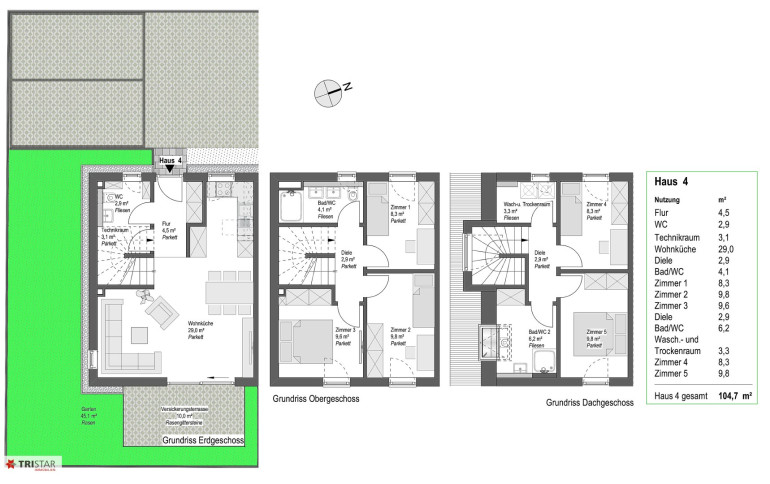
Wohnfläche ca. 104–105,40 m², sechs Zimmer, Eigengarten (ca. 30 m² bis 83 m²), Terrasse, PKW-Stellplatz.
Erdgeschoss: Helle Wohnküche (ca. 29 m²) mit direktem Zugang zur Terrasse und in den Garten, WC, Technikraum, Flur.
Obergeschoss: Drei Schlafzimmer, Badezimmer, Flur.
Dachgeschoss: Zwei Schlafzimmer, Badezimmer, Abstellraum, Diele.
- KAUFPREIS / ZUSTAND:
EUR 549.000,- für den belagsfertigen Zustand.
Optional ist ein schlüsselfertiger Erwerb möglich; der Preis variiert je nach Ausstattung und liegt voraussichtlich bei ca. EUR 599.000,-.
- PERFEKT FÜR FAMILIEN UND HOME OFFICE:
Durchdachte Planung mit großzügiger Wohnküche, mehreren Schlafzimmern für Kinder und Homeoffice sowie eigenem Garten.
Ruhige Wohnlage mit wenig Verkehr innerhalb Wiens; Kindergarten, Schule und Nahversorgung befinden sich in unmittelbarer Nähe.
-
FOTOS:
Die Fotos sind Symbolfotos (Referenzprojekt) aus einem bereits realisierten und verkauften Projekt des Bauträgers und dienen dazu, den schlüsselfertigen Zustand (ohne Küche) besser einschätzen zu können.
- NATIONALPARK LOBAU:
Der Nationalpark Donau-Auen ist ein einzigartiges Naturjuwel mit hervorragender Luft- und Wasserqualität.
Das weitläufige Erholungsgebiet eignet sich ideal für Spaziergänge, Radtouren sowie Ausflüge mit dem Kinderwagen.
- ENERGIEEFFIZIENT UND NACHHALTIG:
Luft-Wärmepumpe für Heizen und Kühlen über den Fußboden
3-fach isolierverglaste Fenster
Außenliegender Sonnenschutz
Sorgt für niedrige Betriebskosten und hohen Wohnkomfort.
- LAGE UND INFRASTRUKTUR / VERKEHRSANBINDUNG:
Die Liegenschaft befindet sich in Essling, einem gefragten Wohngebiet im 22. Bezirk.
Ein detailliertes Lageexposé (48 Seiten) steht nach Anfrage zum Download bereit.
NEU • FAMILIENTRAUM • 4 HÄUSER • GARTEN • TERRASSE • PKW-STELLPLATZ • NÄHE LOBAU • LUFTWÄRMEPUMPE • 1220 WIEN
Wir weisen darauf hin, dass zwischen dem Vermittler und dem zu vermittelnden Dritten ein familiäres oder wirtschaftliches Naheverhältnis besteht.
Der Vermittler ist als Doppelmakler tätig.
Eckdaten
| Kaufpreis: | 549.000,00 € |
| Fläche: | 105,40 m² |
Basisdaten zur Immobilie
| Objektnr: | 28431 |
| Art: | Haus - Doppelhaushälfte |
| Land: | Österreich |
| Baujahr: | 2026 |
| Zustand: | Erstbezug |
| Kaufpreis: | 549.000,00 € |
| Kaufpreis / m²: | auf Anfrage |
| Provision: | 3% des Kaufpreises zzgl. 20% USt. |
| Wohnfläche: | 105,40 m² |
| Zimmer: | 6 |
| WC: | 3 |
| Terrassen: | 1 |
| Stellplätze: | 1 |
| Garten: | 80,30 m² |
| Heizwärmebedarf: | B 37,80 kWh/m²a |
| fGEE: | A+ 0,68 |
Ausstattung
Fliesen, Parkett, Fußbodenheizung, Bad mit Fenster, Dusche, Parkplatz
Internet und TV
Information zur Internet und TV Versorgung hier
Ihre persönliche Beratung
TRISTAR Immobilien
TRISTAR Immobilien
tristar@tristar.at
+43 676 901 73 74
