GEMÜTLICHE 2 ZIMMERWOHUNG MIT GARTEN UND TERRASSE IN WELS - TOP 10
Wohnung
,
4600
Wels
,
Leopold Bauer Straße 16
Lage der Immobilie
Die Wohnung in der Leopold Bauer Straße 4600 Wels bietet Ihnen eine perfekte Lage für ein komfortables Leben. In unmittelbarer Nähe finden Sie alles, was Sie für den Alltag benötigen: Ärzte, Apotheken, eine Klinik, Schulen und Kindergärten. Supermärkte, Bäckereien und Banken sind ebenfalls schnell erreichbar. Die gute Anbindung an öffentliche Verkehrsmittel, darunter Busse und der Bahnhof, rundet das Angebot ab und sorgt für eine hohe Lebensqualität.Beschreibung der Immobilie
Herzlich willkommen in Ihrem neuen Zuhause in der charmanten Stadt Wels, Oberösterreich! Diese wunderschöne Erdgeschosswohnung bietet Ihnen nicht nur eine erstklassige Lage, sondern auch ein modernes und komfortables Wohnambiente, das keine Wünsche offen lässt.
Mit einer großzügigen Wohnfläche von 48,11 m² verteilt auf zwei gut geschnittene Zimmer, bietet diese Wohnung ausreichend Platz für Singles oder Paare. Die offene Wohnküche schafft eine einladende Atmosphäre, ideal für gesellige Abende mit Freunden oder entspannte Stunden mit der Familie. Die große Terrasse und der angrenzende Garten laden dazu ein, die frische Luft zu genießen und entspannte Sonnenstunden im Freien zu verbringen.
Die Wohnung eignet sich perfekt für alle, die eine praktische und komfortable Lebensweise schätzen. Ein Personenaufzug sorgt für barrierefreien Zugang, während die Tiefgarage Ihnen die Möglichkeit bietet, Ihr Auto sicher und bequem abzustellen – ein unschätzbarer Vorteil in der Stadt. Das Badezimmer verfügt über ein WC und bietet Ihnen den Komfort, den Sie sich wünschen.
Die Lage dieser Immobilie ist einfach herausragend. Nur wenige Schritte entfernt finden Sie eine hervorragende Verkehrsanbindung mit Bus und Bahnhof, die Ihnen eine mühelose Erreichbarkeit der umliegenden Städte und Gemeinden ermöglicht. Für Ihre täglichen Bedürfnisse sind ein Arzt, eine Apotheke, eine Klinik, Schulen und Kindergärten in unmittelbarer Nähe. Außerdem laden Supermärkte und Bäckereien zum Einkaufen ein, sodass Sie in kürzester Zeit alles Notwendige zur Hand haben.
Mit einer monatlichen Miete von 798,29 € bietet Ihnen dieses Zuhause nicht nur eine hervorragende Lebensqualität, sondern auch ein ausgezeichnetes Preis-Leistungs-Verhältnis im Herzen von Wels.
Die monatlichen Heizkosten werden mit 37,24 € zzgl. USt. vorgeschrieben.
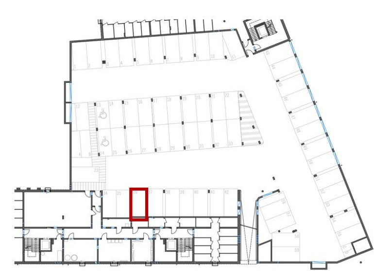
Für den Tiefgaragenplatz Nr.36 wird eine monatliche Miete von 62,38 zzgl. 20% USt. vorgeschrieben.
Ergreifen Sie die Chance auf einen Neuanfang in dieser einladenden Wohnung! Vereinbaren Sie noch heute einen Besichtigungstermin und überzeugen Sie sich selbst von diesem einzigartigen Angebot. Ihr neues Zuhause in Wels wartet bereits auf Sie!
Wir weisen darauf hin, dass zwischen dem Vermittler und dem zu vermittelnden Dritten ein familiäres oder wirtschaftliches Naheverhältnis besteht.
Der Immobilienmakler erklärt, dass er – entgegen dem in der Immobilienwirtschaft üblichen Geschäftsgebrauch des Doppelmaklers – einseitig nur für den Vermieter tätig ist.
Infrastruktur / Entfernungen
Gesundheit
Arzt <50m
Apotheke <250m
Klinik <875m
Krankenhaus <1.550m
Kinder & Schulen
Schule <200m
Kindergarten <475m
Universität <1.175m
Nahversorgung
Supermarkt <275m
Bäckerei <225m
Einkaufszentrum <2.175m
Sonstige
Bank <125m
Geldautomat <125m
Post <225m
Polizei <775m
Verkehr
Bus <150m
Autobahnanschluss <1.800m
Bahnhof <900m
Flughafen <3.025m
Angaben Entfernung Luftlinie / Quelle: OpenStreetMap
Eckdaten
| Gesamtmiete: | 798,29 € |
| Fläche: | 48,11 m² |
| Zimmer: | 2 |
Basisdaten zur Immobilie
| Objektnr: | 1937/7645985 |
| Art: | Wohnung |
| Land: | Österreich |
| Gesamtmiete: | 798,29 € |
| Kaltmiete (netto): | 567,24 € |
| Kaltmiete: | 725,72 € |
| Provision: | Gemäß Erstauftraggeberprinzip bezahlt der Abgeber die Provision. |
| Betriebskosten: | 158,48 € |
| MwSt Gesamt: | 72,57 € |
| Wohnfläche: | 48,11 m² |
| Zimmer: | 2 |
| Bäder: | 1 |
| WC: | 1 |
| Terrassen: | 1 |
| Garten: | 58,54 m² |
Ausstattung
Wohnküche / offene Küche, Personenaufzug, Tiefgarage
Internet und TV
Information zur Internet und TV Versorgung hier
Ihre persönliche Beratung
Christa Sinzinger
AREV Immobilien GmbH
christa.sinzinger@arev.at
+43 732 605533 361
+43 664 8185361
