4 rooms, terrace, garage, near VIC - new renovated
Wohnung
- Terrassenwohnung,
1020
Wien
,
Walcherstrasse
Lage der Immobilie
VIC, Messe Prater, Vorgartenstraße, U-BahnBeschreibung der Immobilie
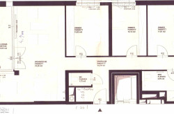
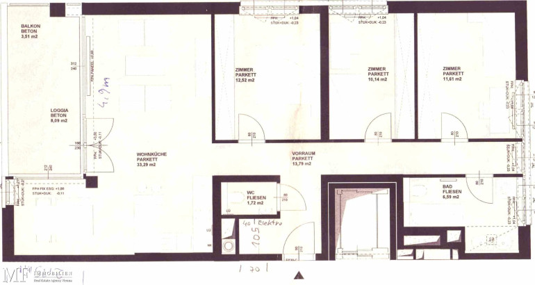
Die Wohnung befindet sich im 7. Stock eines Neubaues. Alle Räume sind zentral begehbar, so stehen 3 Schlafzimmer ein Bad mit Wanne, eine Gaderobe und ein großes Wohn/Esszimmer mit offener Küche zur Verfügung. Die großzügige Loggia ist direkt vom Wohnraum begehbar. Eine moderne Einbauküche sowie ein Garagenplatz runden dieses Angebot ab. Im Erdgeschoß befindet sich weiters ein Fitnesstudio sowie eine Saunalandschaft zur Benützung durch die Mieter. Derzeit werden monatlich ca. € 246,00 an Warmwasser und Heizung vorgeschrieben.
Noch nichts gefunden? Wir informieren Sie über geeignete Immobilienangebote noch vor allen anderen.
Legen Sie jetzt Ihren individuellen Suchagenten unter folgendem Link an. Wir schicken Ihnen passende Immobilien exklusiv vorab zu.
Suchagent anlegen - https://m-f-immobilien-consulting.service.immo/registrieren/de
Der Immobilienmakler erklärt, dass er – entgegen dem in der Immobilienwirtschaft üblichen Geschäftsgebrauch des Doppelmaklers – einseitig nur für den Vermieter tätig ist.
Infrastruktur / Entfernungen
Gesundheit
Arzt <250m
Apotheke <250m
Klinik <250m
Krankenhaus <1.750m
Kinder & Schulen
Schule <500m
Kindergarten <250m
Universität <750m
Höhere Schule <2.000m
Nahversorgung
Supermarkt <250m
Bäckerei <250m
Einkaufszentrum <2.250m
Sonstige
Geldautomat <250m
Bank <250m
Post <750m
Polizei <750m
Verkehr
Bus <250m
U-Bahn <250m
Straßenbahn <250m
Bahnhof <250m
Autobahnanschluss <1.250m
Angaben Entfernung Luftlinie / Quelle: OpenStreetMap
Eckdaten
| Gesamtmiete: | 2.172,75 € |
| Fläche: | 89,65 m² |
| Zimmer: | 4 |
Basisdaten zur Immobilie
| Objektnr: | 5577 |
| Art: | Wohnung - Terrassenwohnung |
| Land: | Österreich |
| Baujahr: | 2011 |
| Zustand: | Neuwertig |
| Alter: | Neubau |
| Gesamtmiete: | 2.172,75 € |
| Kaltmiete (netto): | 1.843,79 € |
| Kaltmiete: | 2.172,75 € |
| Provision: | Gemäß Erstauftraggeberprinzip bezahlt der Abgeber die Provision. |
| Betriebskosten: | 328,96 € |
| Wohnfläche: | 89,65 m² |
| Nutzfläche: | 98,00 m² |
| Zimmer: | 4 |
| Bäder: | 1 |
| WC: | 2 |
| Keller: | 3,00 m² |
| Heizwärmebedarf: | B 30,00 kWh/m²a |
Ausstattung
Fliesen, Parkett, Fernwärme, Einbauküche, Personenaufzug, Nordbalkon, Bad mit Fenster, Badewanne, Kabel/Satelliten-TV, Tiefgarage, Sauna, Sicherheitskamera, Sporteinrichtungen
Internet und TV
Information zur Internet und TV Versorgung hier
Ihre persönliche Beratung
Mag. Markus Frisch
M F Immobilien Consulting GmbH
office@mfimmobilien.at
+43 1 532 4880
+43 664 152 9769
F +43 1 532 4880 15
