Neubau-Reihenhäuser in Markt Piesting – nur 35 Min. von Wien – Mietkaufoption mit 2 % Fixzins
Haus
- Reihenhaus,
2753
Markt Piesting
Lage der Immobilie
Die Reihenhäuser befinden sich in 2753 Markt Piesting, einem idyllischen Ort mit ausgezeichneter Infrastruktur und hohem Wohnkomfort. Wien ist in nur 35 Minuten erreichbar, was diese Immobilien ideal für Pendler macht. Supermärkte, Schulen, Arztpraxen und der Bahnhof sind fußläufig erreichbar. Die Umgebung bietet zahlreiche Freizeitmöglichkeiten, darunter Wander- und Radwege, Naturparks sowie Naherholungsgebiete.Beschreibung der Immobilie
Sichern Sie sich Ihr neues Zuhause mit nur 2 % Fixzins und attraktiver Mietkaufoption. Diese exklusiven Reihenhäuser bieten höchste Wohnqualität, moderne Ausstattung und eine einzigartige Finanzierungsmöglichkeit – perfekt für alle, die von den eigenen vier Wänden träumen.
Die Reihenhäuser befinden sich in 2753 Markt Piesting, einer charmanten Gemeinde mit ausgezeichneter Infrastruktur und hoher Lebensqualität. Wien ist in nur 35 Minuten erreichbar, was diese Immobilien besonders für Pendler attraktiv macht. Supermärkte, Schulen, Arztpraxen und der Bahnhof sind fußläufig erreichbar. Die Umgebung bietet zahlreiche Freizeitmöglichkeiten, darunter Wander- und Radwege, Naturparks sowie Naherholungsgebiete.
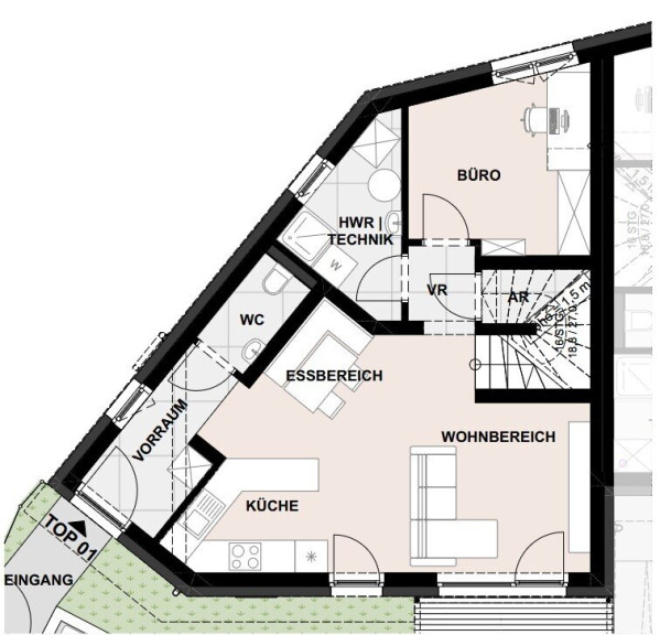
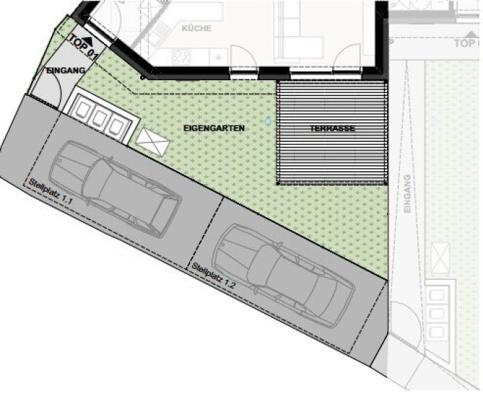
Jedes der drei Reihenhäuser verfügt über fünf Zimmer, eine durchdachte Raumaufteilung und einen lichtdurchfluteten Wohnbereich. Die Beheizung erfolgt über eine Luftwärmepumpe mit Fußbodenheizung in allen Geschossen. Hochwertige Kunststoff-Alu-Fenster mit 3-fach Thermoverglasung und bauseitige Raffstores sorgen für optimalen Wohnkomfort. Zudem gehören zu jeder Einheit ein Eigengarten und zwei asphaltierte PKW-Stellplätze. Die Massivbauweise mit Ziegelmauerwerk und hochwertiger Wärmedämmung gewährleistet eine hohe Energieeffizienz und nachhaltigen Wohnkomfort.
Kaufpreise
Top 1 – Reihenhaus mit Garten und 2 PKW-Stellplätzen inkl. Kellerabteil
- Schlüsselfertig: 429.000 Euro
Top 2 – VERKAUFT
Top 3 – Reihenhaus mit Garten und 2 PKW-Stellplätzen inkl. Kellerabteil
- Schlüsselfertig: 519.000 Euro
Die Betriebskosten belaufen sich voraussichtlich auf rund 250 € monatlich.
Die belagsfertige Variante beinhaltet keine Wand- und Bodenbeläge, Sanitärgegenstände, Innentüren, Malerarbeiten oder Pergola für die Terrasse im Erdgeschoss. Die schlüsselfertige Variante umfasst alle Leistungen außer Pergola und Insektenschutz.
Jetzt kaufen oder mit der attraktiven Mietkaufoption finanzieren – Fixzins von nur 2,0 Prozent
Jetzt anfragen und Besichtigungstermin sichern
Hinweis gemäß Energieausweisvorlagegesetz: Ein Energieausweis wurde vom Eigentümer bzw. Verkäufer, nach unserer Aufklärung über die generell geltende Vorlagepflicht, sowie Aufforderung zu seiner Erstellung noch nicht vorgelegt. Daher gilt zumindest eine dem Alter und der Art des Gebäudes entsprechende Gesamtenergieeffizienz als vereinbart. Wir übernehmen keinerlei Gewähr oder Haftung für die tatsächliche Energieeffizienz der angebotenen Immobilie.
Der Vermittler ist als Doppelmakler tätig.
Infrastruktur / Entfernungen
Gesundheit
Arzt <2.500m
Apotheke <1.000m
Klinik <4.500m
Kinder & Schulen
Schule <500m
Kindergarten <2.500m
Nahversorgung
Supermarkt <500m
Bäckerei <1.000m
Einkaufszentrum <9.500m
Sonstige
Bank <500m
Geldautomat <500m
Post <4.000m
Polizei <4.000m
Verkehr
Bus <500m
Bahnhof <500m
Autobahnanschluss <5.500m
Flughafen <8.500m
Angaben Entfernung Luftlinie / Quelle: OpenStreetMap
Eckdaten
| Kaufpreis: | 429.000,00 € |
| Fläche: | 104,07 m² |
| Zimmer: | 5 |
Basisdaten zur Immobilie
| Objektnr: | 7633/228 |
| Art: | Haus - Reihenhaus |
| Land: | Österreich |
| Baujahr: | 2024 |
| Zustand: | Erstbezug |
| Alter: | Neubau |
| Kaufpreis: | 429.000,00 € |
| Provision: | 3% des Kaufpreises zzgl. 20% USt. |
| Wohnfläche: | 104,07 m² |
| Nutzfläche: | 127,87 m² |
| Zimmer: | 5 |
| Bäder: | 1 |
| WC: | 2 |
| Terrassen: | 2 |
| Stellplätze: | 2 |
| Garten: | 26,86 m² |
| Keller: | 4,70 m² |
Ausstattung
Fußbodenheizung
Internet und TV
Information zur Internet und TV Versorgung hier
Ihre persönliche Beratung
Gernot Taschler
MOO Immobilien GmbH
gt@moo-immobilien.at
+436503553247
