zentral angeordnete 4-Zimmerwohnung mit zwei Bädern und Loggia - Wohn(t)raum im Tullnerfeld - im Grünen wohnen, aber in der Stadt arbeiten - Tiefgaragenplatz auf Anfrage
Wohnung
,
3451
Pixendorf
Lage der Immobilie
Die neu errichtete, moderne Wohnhausanlage liegt in Pixendorf, einer Ortschaft der Marktgemeinde Michelhausen, in einer der aufstrebensten Regionen Niederösterreichs. Michelhausen selbst verfügt über eine gute Infrastruktur wie Volksschule, Kindergärten, Postpartner, Ärzte (Primärversorgungszentrum Tullnerfeld), Lebensmittelmarkt, Bank, Gastronomie uvm. Die lebenswerte Bezirksstadt Tulln bietet ein Komplettangebot an Bildungs-, Einkaufs- und Freizeiteinrichtungen sowie medizinischer Betreuung und ist ca. 15 Autominuten entfernt. St. Pölten und Krems erreichen Sie in rund 30 Fahrminuten, Wien in ca. 40 Minuten. Zwischen Wienerwald und Donauauen gelegen bietet das Tullnerfeld einen Mehrwert an Lebensqualität. Ein wichtiger Impuls für die regionale Entwicklung des Tullnerfeldes entstand durch die Eröffnung des Bahnhofs Tullnerfeld, welcher weniger als 5 Autominuten von der Wohnhausanlage entfernt ist. Er bietet eine ausgezeichnete öffentliche Anbindung nach Wien oder Sankt Pölten.und sogar direkt zum Flughafen Wien-Schwechat: Wien Hütteldorf – 11 Minuten Sankt Pölten - 14 Minuten Wien Westbahnhof - 22 Minuten Wiener Hauptbahnhof - 22 Minuten Flughafen Wien - 45 MinutenBeschreibung der Immobilie
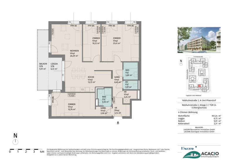
Die Wohnung:
Diese moderne 4‑Zimmer‑Wohnung mit einer Wohnfläche von 107,24 m² befindet sich im 3. Obergeschoß. Die zentral angeordneten Zimmer schaffen einen harmonischen Grundriss und ermöglichen kurze Wege innerhalb der Wohnung. Ein geräumiger Balkon samt Loggia erweitern den Wohnraum. Zwei komfortable Bäder sorgen für extra Bequemlichkeit.
Die WOHNUNG teilt sich wie folgt auf:
- Vorraum
- großzügiger Wohnraum mit Küche
- Schlafzimmer mit en-suite Badezimmer und Flur
- 2 Zimmer unterschiedlicher Größe (21,41m² und 10,12 m²)
- Badezimmer mit Badewanne (Waschmaschinenanschluss vorhanden)
- WC extra
- Abstellraum
- geräumige Außenfläche
Es erwartet Sie hier ein hochattraktives Zuhause im Grünen, das die Vorzüge von Stadt- und Landleben perfekt vereint, hervorragende öffentliche Verkehrsanbindung inklusive.
Befristung des Mietvertrages: 5 Jahre (kündbar seitens Mieter nach Ablauf eines Jahres unter Einhaltung einer Kündigungsfrist von 3 Monaten)
Einmalige Kosten:
Kaution 3 Bruttomonatsmieten
Das Projekt: URBANES WOHNEN IM GRÜNEN
Ihr Wohn(t)raum im Tullnerfeld bietet komfortable zusätzliche Einrichtungen wie einen Kindergarten, eine Kleinkinderbetreuung, einen Fitnessraum (in Entstehung), einen Waschsalon, eine Post-Abholstation, einen Kinderspielplatz sowie einen Freizeitraum, welcher gebucht werden kann.
Auch ein kleines Cafe sowie ein Hofladen sind geplant.
Die nachhaltige Energieversorgung erfolgt durch Erdwärme in Verbindung mit Fernwärme und einer Photovoltaikanlage.
Freuen Sie sich auf ein Zuhause, das genau Ihren Anforderungen entspricht. In dieser neu errichteten Wohnhausanlage mit mediterranem Charakter erwarten Sie perfekt geschnittene moderne 2-5 Zimmerwohnungen, von ca. 38 m² bis zu ca. 114 m² Wohnfläche, alle entweder mit großzügigen Balkonen, Terrassen oder Gärten und natürlich einem Kellerabteil. Komplett ausgestattete Küchen und Badezimmer sind hier ebenso selbstverständlich, wie großzügige Abstellflächen für Kinderwägen und Fahrräder.
In der Tiefgarage können PKW-Stellplätze gegen zusätzliches Entgelt angemietet werden. Die Wohnhausanlage selbst ist nahezu autofrei. Viel Grün und ansprechende Gestaltungselemente verstärken den Wohlfühlcharakter der Wohnhausanlage. Auf den Dachflächen stehen Hochbeete zur allgemeinen Nutzung ("urban-gardening") genauso zur Verfügung wie beschattete Sitzmöglichkeiten -hier oben auf den Dächern der Anlage können Sie die Seele baumeln lassen.
Ihr Wohn(t)raum im Tullnerfeld. Sie haben die Wahl!
- gut geschnittene Wohnungen mit großen Balkonen, Terrassen oder Gärten
- Voll ausgestattete Küchen und Badezimmer
- Hochwertige Vinyl-Böden in Holzoptik
- 3-Scheiben Isolierverglasung mit außenliegendem Sonnenschutz
- Deckenkühlung im Dachgeschoss
- Ladestationen für E-Mobilität
- Paketabholstationen
- Wasch-Salon mit qualitativen Miele-Geräten
- Fitnessraum (in Vorbereitung)
- Veranstaltungsraum (in Vorbereitung)
- Kindergarten und Kleinkinderbetreuung direkt in der Wohnhausanlage
- Kinderspielplatz
- urban-gardening
Hinweis: Die Verrechnung von Warmwasser, Heizkosten sowie Kaltwasser erfolgt gesondert und ist nicht in den Betriebskosten enthalten. Gleiches gilt für Stromkosten.
Haben wir Ihr Interesse geweckt?
Dann vereinbaren Sie mit uns einen individuellen Beratungs- und Besichtigungstermin. Ansehen lohnt sich!
Gerne steht Frau Daniela König für weitere Informationen unter der Tele.nr.: 0664/ 386 55 02 oder unter der e-mail: dk@acacio.at zur Verfügung.
Besuchen Sie auch unsere Homepage unter www.acacio.at
Dieses Angebot versteht sich als freibleibend und unverbindlich. Unsere Angaben erfolgen auf Grund von Informationen und Unterlagen, welche uns vom Eigentümer oder dessen Beauftragten zur Verfügung gestellt wurden, und sind ohne Gewähr.
Wir weisen darauf hin, dass zwischen dem Vermittler und dem zu vermittelnden Dritten ein familiäres oder wirtschaftliches Naheverhältnis besteht.
Der Immobilienmakler erklärt, dass er – entgegen dem in der Immobilienwirtschaft üblichen Geschäftsgebrauch des Doppelmaklers – einseitig nur für den Vermieter tätig ist.
Infrastruktur / Entfernungen
Gesundheit
Arzt <1.500m
Apotheke <1.500m
Klinik <1.500m
Krankenhaus <7.500m
Kinder & Schulen
Schule <3.000m
Kindergarten <1.500m
Universität <7.000m
Höhere Schule <6.500m
Nahversorgung
Supermarkt <3.500m
Bäckerei <1.500m
Einkaufszentrum <7.000m
Sonstige
Bank <3.500m
Geldautomat <3.500m
Post <2.000m
Polizei <5.000m
Verkehr
Bus <1.000m
Bahnhof <1.500m
Angaben Entfernung Luftlinie / Quelle: OpenStreetMap
Eckdaten
| Gesamtmiete: | 1.530,00 € |
| Fläche: | 107,24 m² |
| Zimmer: | 4 |
Basisdaten zur Immobilie
| Objektnr: | 6418/962 |
| Art: | Wohnung |
| Land: | Österreich |
| Baujahr: | 2024 |
| Zustand: | Erstbezug |
| Gesamtmiete: | 1.530,00 € |
| Kaltmiete (netto): | 1.092,78 € |
| Kaltmiete: | 1.390,91 € |
| Provision: | Gemäß Erstauftraggeberprinzip bezahlt der Abgeber die Provision. |
| Betriebskosten: | 298,13 € |
| MwSt Gesamt: | 139,09 € |
| Wohnfläche: | 107,24 m² |
| Zimmer: | 4 |
| Bäder: | 2 |
| WC: | 2 |
| Balkone: | 1 |
| Keller: | 2,31 m² |
| Heizwärmebedarf: | 26,03 kWh/m²a |
| fGEE: | 0,80 |
Ausstattung
Fliesen, Kunststoffboden, Erdwärme, Fernwärme, Fußbodenheizung, Zentralheizung, Einbauküche, Wohnküche / offene Küche, Personenaufzug, Westbalkon, Dusche, Badewanne, Garage, Parkplatz, Tiefgarage
Internet und TV
Information zur Internet und TV Versorgung hier
Ihre persönliche Beratung
Prok. Daniela König
ACACIO Immobilien GmbH
dk@acacio.at
+43 2275 42026-14
+43 664 386 55 02
