Immobilie merken

Bürohaus zur Miete

Büro / Praxis - Bürohaus, 4020 Linz

Beschreibung der Immobilie

Zentral gelegenes Bürohaus zur Miete

Sie suchen ein zentrales und doch ruhig gelegenes Bürohaus zur Miete? - Dann ist dieses Bürohaus in Linz genau das Richtige für Sie!

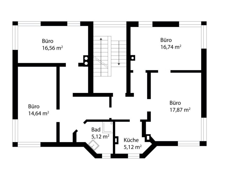
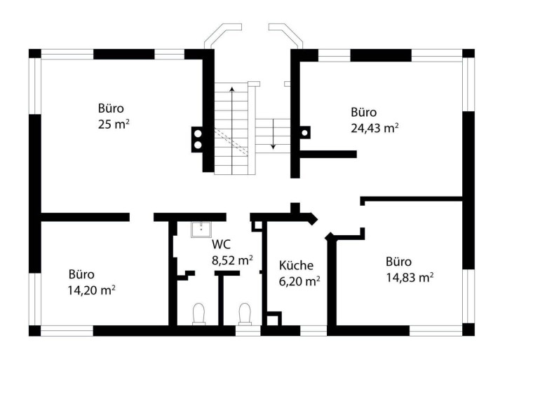
Zur Vermietung steht ein großzügiges Bürohaus mit insgesamt ca. 300 m² Nutzfläche aufgeteilt auf 3 Etagen.
Die Büroräumlichkeiten sind nicht nur großzügig, sondern auch voller natürlichem Tageslicht.

HARD FACTS:
- Ca. 300 m² Nutzfläche
- Dachgeschoss kann ausgebaut werden
- 3 Etagen
- Echtholzparkett
- 5-7 Parkplätze
- Unschlagbare Lage

Wir haben Ihr Interesse geweckt? - Dann sichern Sie sich jetzt Ihren persönlichen Besichtigungstermin!

Gemäß § 5, Abs. 3 Maklergesetz weisen wir daraufhin, dass wir als Doppelmakler tätig sind.
Bitte beachten Sie, dass wir aufgrund der Nachweispflicht gegenüber dem Eigentümer nur Anfragen mit vollständiger Angabe der Anschrift und Telefonnummer bearbeiten können.
Wir weisen darauf hin, dass alle Angaben nach bestem Wissen und Gewissen erstellt wurden.
Für Auskünfte und Angaben, die uns von Seiten der Eigentümer und Dritten zur Verfügung gestellt wurden, übernehmen wir keine Haftung.
Dieses Angebot ist unverbindlich und freibleibend. Zwischenverwertung, Irrtümer, Druckfehler und Änderungen vorbehalten.

Infrastruktur / Entfernungen

Gesundheit
Arzt <1.000m
Apotheke <1.000m
Klinik <1.500m
Krankenhaus <500m

Kinder & Schulen
Kindergarten <500m
Schule <1.000m
Universität <2.500m
Höhere Schule <2.500m

Nahversorgung
Supermarkt <500m
Bäckerei <1.000m
Einkaufszentrum <1.000m

Sonstige
Bank <1.000m
Geldautomat <1.000m
Post <500m
Polizei <1.000m

Verkehr
Bus <500m
Straßenbahn <1.000m
Bahnhof <1.000m
Autobahnanschluss <1.000m
Flughafen <3.500m

Angaben Entfernung Luftlinie / Quelle: OpenStreetMap

Eckdaten

Kaltmiete (netto): 2.463,30 €
Fläche: 300,00 m²
Zimmer: 9

Basisdaten zur Immobilie

Objektnr: 3849/399
Art: Büro / Praxis - Bürohaus
Land: Österreich
Baujahr: 1995
Kaltmiete (netto): 2.463,30 €
Kaltmiete: 2.567,47 €
Provision: 3 Bruttomonatsmieten zzgl. 20% USt.
Betriebskosten: 104,17 €
MwSt Gesamt: 513,49 €
Nutzfläche: 300,00 m²
Grundstücksfl.: 386,00 m²
Zimmer: 9
WC: 2
Stellplätze: 7
Keller: 100,00 m²
Heizwärmebedarf:  D  97,30 kWh/m²a
fGEE:  C  1,30

Ausstattung

Parkett, Gas, Zentralheizung, Teeküche



Internet und TV

Information zur Internet und TV Versorgung hier




Immobilie anfragen




Ihre persönliche Beratung

RE/MAX Expert

Oliver Haubner

RE/MAX Expert

o.haubner@remax-expert.at

+43 732 69 48 17

+43 664 51 59 861


RE/MAX Expert - Immobilen Makler

Kollegiumgasse 5, 4020 Linz

+43 732 69 48 17