Lage der Immobilie
Die Wohnung befindet sich im begehrten 5. Wiener Bezirk Margareten – einer urbanen Wohngegend, die Lebensqualität, Vielfalt und perfekte Anbindung vereint. Nur wenige Schritte entfernt finden Sie alles, was den Alltag angenehm macht: Einkaufsmöglichkeiten, Cafés, Restaurants, Bäckereien, Apotheken und ärztliche Versorgung. Die Umgebung bietet eine charmante Mischung aus Tradition, neuer Infrastruktur und moderner Stadtentwicklung. Mehrere Grünflächen wie der Einsiedlerpark liegt in fußläufiger Nähe und schafft wertvolle Erholungsräume mitten in der Stadt. Für sportliche Aktivitäten oder entspannte Sommermomente steht auch das Familienbad Einsiedlerplatz in unmittelbarer Reichweite zur Verfügung. Die öffentliche Verkehrsanbindung ist hervorragend: Mit den Buslinien 12A und 59A, den Straßenbahnlinien 6 und 18 sowie der U4 (Margaretengürtel) erreicht man in wenigen Minuten die Wiener Innenstadt, den Naschmarkt, Mariahilfer Straße oder den Hauptbahnhof.Beschreibung der Immobilie
Licht. Luft. Leben. Dachgeschoss-Oase im 5. Bezirk
Hoch über den Dächern des fünften Bezirks erwartet Sie ein Zuhause, das nicht nur Wohnraum bietet – sondern ein Lebensgefühl.
Errichtet im Jahr 2008, verbindet diese außergewöhnliche Dachgeschosswohnung moderne Architektur, zeitlose Eleganz und 19 m² Freifläche, die jeden Sonnenuntergang zu einem privaten Highlight machen.
Diese Wohnung ist ideal für alle, die ein Dachgeschoss mit Flair, Ruhe, und außergewöhnliches suchen.
Ein Zuhause für Menschen, die Wert auf Ästhetik, Freiraum und ein besonderes Wohngefühl legen.
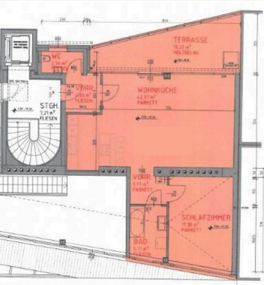
43 m² Wohn-/Esszimmer – Wo Ihr Tag mit Licht beginnt
So fühlt sich ein Morgen hier an:
Sie wachen morgens im Schlafzimmer auf, begeben sich zum Wohnraum – und werden sofort von Licht empfangen.
Die großen Fenster fluten den gesamten Bereich mit warmem Tageslicht und schenken Ihnen schon beim ersten Schritt in den Tag das Gefühl von Energie, Ruhe und Lebensfreude.
Der weitläufige Wohnbereich bietet außergewöhnlich viel Platz und damit unzählige Gestaltungsmöglichkeiten:
Ob großzügige Couchlandschaft, Home-Office-Ecke oder ein separater Essbereich – hier findet alles Platz.
Auf Wunsch lässt sich der Raum sogar teilen und ein zusätzliches Zimmer schaffen. Auch wenn diese Offenheit natürlich ein Teil der besonderen Wirkung dieses Raumes ist, bleibt die Option dennoch bestehen, wenn Ihr Lebensstil sie einmal benötigt.
Die Küche fügt sich harmonisch in diesen großen Wohnraum ein.
Sie umfasst alles, was man im Alltag braucht:
eine große Arbeitsfläche, reichlich Stauraum, alle wichtigen Geräte – und ein offenes Regal, das der Küche Charakter verleiht.
Die Arbeitsfläche wirkt wie eine natürliche Bar.
Ein Ort, an dem Gespräche entstehen und der Alltag plötzlich ein bisschen leichter wirkt.
Schlafzimmer mit Sternenhimmel – wortwörtlich
Dieses Schlafzimmer hat eine besondere Magie:
Über dem Bett befindet sich ein großes Glasfenster, das nachts den Blick direkt in den Himmel freigibt. Es ist wie ein privater Rahmen für die Sterne.
Wenn Sie im Bett liegen, schweift Ihr Blick hinauf zu Sternen, die wie kleine Lichtpunkte über Ihnen stehen.
Es ist ein Moment völliger Ruhe, fast wie ein eigenes Ritual: nach dem Tag einfach nur hinaufzusehen und den Himmel zu beobachten.
Der Raum selbst bietet ausreichend Platz für Kleiderschränke, Kommoden und alles, was einen persönlichen Rückzugsort komplett macht.
19 m² private Terrasse – Ihr Outdoor-Wohnzimmer
Hier liegt der wahre Luxus: eine großzügige Freifläche, die sich wie ein zweites Wohnzimmer anfühlt.
Mit Lounge-Möbeln, einer Sitzinsel und Grillbereich wird sie zum perfekten Ort für:
-
Sommerabende mit Freunden
-
entspannte Sonntagsfrühstücke
-
ungestörte Sonnenstunden
Ein Badezimmer, das Leichtigkeit ausstrahlt
Dieses Badezimmer empfängt Sie mit einer klaren, modernen Ästhetik.
Die bodengleiche Dusche wirkt offen und komfortabel, während das große Fenster dem Raum eine helle, luftige Stimmung verleiht.
Das natürliche Licht macht den Raum einladend, ohne Kompromisse bei der Privatsphäre – niemand kann hineinsehen.
Praktischer Stauraum sorgt dafür, dass alles seinen Platz findet und der Raum stets ruhig und harmonisch wirkt.
Ein Vorraum, der einlädt
Beim Eintreten öffnet sich ein Vorraum, der sofort eine einladende Ruhe ausstrahlt.
Er bietet Raum zum Ankommen, zum Ablegen, zum Durchatmen – ein kleiner Übergang, der den Ton für die gesamte Wohnung setzt.
Das separate WC befindet sich gleich neben dem Vorraum.
Es ist größer geschnitten als üblich, wirkt hell und verfügt zusätzlich über ein praktisches Handwaschbecken.
Kurzbeschreibung
-
2 Vorzimmer
-
1 helles Wohn-/Esszimmer (ca. 43 m²)
-
1 Schlafzimmer mit Blick in den Himmel / Sternenhimmel
-
1 modernes Badezimmer mit ebenerdiger Dusche und Tageslicht
-
1 separates WC
-
1 südöstlich ausgerichtete Terrasse (ca. 19 m²)
Eckdaten:
-
Wohnnutzfläche: 84 m²
-
Terrasse: ca. 19 m²
-
Zimmer: 2
-
Kellerabteil wird zugeordnet
-
Einbauschränke im Flur
-
Außenliegende Raffstore-Beschattung
-
Lift im Haus
-
Klimaanlage in Wohn und Schlafzimmer
-
Gasetagenheizung HWB: 41,18 Klasse B
-
Betriebskosten: 341,39€ brutto/Monat inkl. Lift und Reparaturrücklage
- Verkaufspreis: 629.000€
Lassen Sie sich diese Chance nicht entgehen – vereinbaren Sie jetzt einen Besichtigungstermin.
🎤 Beratung in Deutsch, English und Arabisch möglich
Ihr Ansprechpartner
Sajid Aladam
📞 0681 20537855
📧 sa@moo-immobilien.at
Der Vermittler ist als Doppelmakler tätig.
Infrastruktur / Entfernungen
Gesundheit
Arzt <500m
Apotheke <500m
Klinik <500m
Krankenhaus <1.000m
Kinder & Schulen
Schule <500m
Kindergarten <500m
Universität <1.000m
Höhere Schule <1.000m
Nahversorgung
Supermarkt <500m
Bäckerei <500m
Einkaufszentrum <1.500m
Sonstige
Geldautomat <500m
Bank <500m
Post <500m
Polizei <1.000m
Verkehr
Bus <500m
U-Bahn <500m
Straßenbahn <500m
Bahnhof <500m
Autobahnanschluss <4.000m
Angaben Entfernung Luftlinie / Quelle: OpenStreetMap
Eckdaten
| Kaufpreis: | 629.000,00 € |
| Fläche: | 84,00 m² |
| Zimmer: | 2 |
Basisdaten zur Immobilie
| Objektnr: | 7633/438 |
| Art: | Wohnung - Dachgeschoß |
| Land: | Österreich |
| Baujahr: | 2008 |
| Zustand: | Gepflegt |
| Alter: | Neubau |
| Kaufpreis: | 629.000,00 € |
| Provision: | 3% des Kaufpreises zzgl. 20% USt. |
| Betriebskosten: | 181,13 € |
| MwSt Gesamt: | 18,11 € |
| Wohnfläche: | 84,00 m² |
| Zimmer: | 2 |
| Bäder: | 1 |
| WC: | 1 |
| Heizwärmebedarf: | B 41,18 kWh/m²a |
Ausstattung
Fliesen, Parkett, Gas, Zentralheizung, Wohnküche / offene Küche, Personenaufzug, Bad mit Fenster, Dusche
Internet und TV
Information zur Internet und TV Versorgung hier
Ihre persönliche Beratung
Sajid Aladam
MOO Immobilien GmbH
sa@moo-immobilien.at
