Handwerkertraum am Satzberg – Doppelhaushälfte mit Garten & Terrasse in absoluter Ruhelage (1140 Wien)
Haus
,
1140
Wien
Lage der Immobilie
Idyllisch gelegen bietet das Haus maximale Privatsphäre und Ruhe abseits des Stadtlärms, kombiniert mit hervorragender Anbindung und Infrastruktur. Mit dem Auto erreichen Sie in 10 min die U4-Station Wien Hütteldorf, die Sie direkt ins Stadtzentrum bringt. Für den täglichen Bedarf steht Ihnen ein großer SPAR-Markt zur Verfügung, der in wenigen Minuten mit dem Auto erreichbar ist. Auch öffentlich ist das Haus bestens angebunden: Der Bus 52B, nur wenige Schritte entfernt, bringt Sie bequem in 15 Minuten zur U4-Station Hütteldorf.Beschreibung der Immobilie
Doppelhaushälfte in Ruhelage – Fernblick, Garten & echtes Gestaltungspotenzial (1140 Wien)
Willkommen in einer der begehrtesten Wohnlagen des 14. Bezirks – am Hügelrand des Wienerwalds, wo Ruhe, Natur und Weitblick den Alltag bestimmen. Diese Doppelhaushälfte aus dem Jahr 1970 ist ein echter Handwerkertraum und bietet Ihnen die seltene Möglichkeit, ein Zuhause nach Ihren eigenen Vorstellungen zu schaffen.
Eckdaten
-
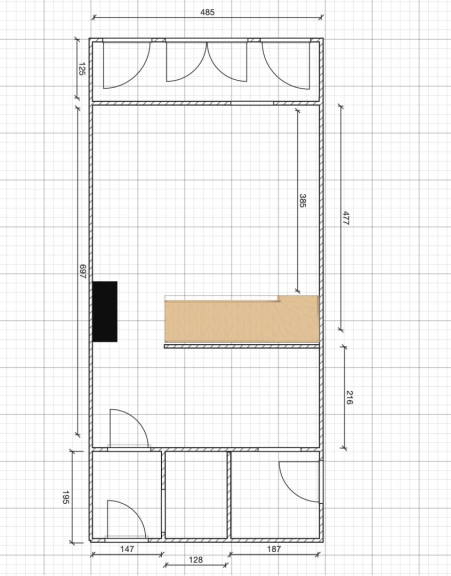
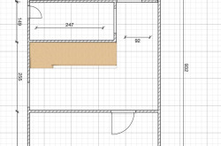
Wohnfläche: ca. 80 m²
-
Privater Garten: ca. 110 m² mit Terrasse
-
Baujahr: 1970
-
Aufteilung: 3 Ebenen
-
Parkplatz: direkt vor der Tür
-
Highlight: absolute Ruhelage & unverbaubarer Fernblick
Wohnen, wo Wien am schönsten ist
Stellen Sie sich vor: morgens Kaffee auf der Terrasse, Blick in die Weite, Vogelgezwitscher statt Verkehrslärm. Dieses Haus vereint genau das, was in Wien selten ist: Naturgefühl, Privatsphäre und Ausblick – und gleichzeitig die Nähe zur Stadt.
Ihre Chance: Ein Zuhause, das wirklich Ihres ist
Die Immobilie ist renovierungsbedürftig – und genau darin liegt ihr Wert. Sie erhalten keine Kompromisslösung, sondern eine Blank Canvas, auf der Sie Ihren Stil verwirklichen können: modern, klassisch, minimalistisch oder gemütlich – hier entsteht Ihr persönliches Zuhause.
Optional: Rundum-Begleitung für Ihr Projekt
Auf Wunsch unterstützen wir Sie nicht nur beim Kauf, sondern auch bei der Umsetzung:
Mit unseren bewährten Partnern (Architektur, Planung, Handwerk, Sanierung) können wir Ihr Vorhaben strukturiert und stressfrei begleiten – bis hin zur All-in-One-Lösung, wenn Sie das möchten.
Jetzt besichtigen – solche Ruhelagen mit Fernblick sind selten
Wenn Sie ein Haus suchen, das Ihnen nicht nur Quadratmeter, sondern Lebensqualität und Perspektive bietet, sollten Sie diese Gelegenheit nicht verpassen.
Vereinbaren Sie jetzt Ihren persönlichen Besichtigungstermin und erleben Sie die Lage vor Ort.
Kaufpreis: € 559.000,-
Der Vermittler ist als Doppelmakler tätig.
Wir beraten Sie gerne auf Deutsch, English, Französisch, Italienisch und Serbisch.
Ihre Ansprechpartner
Alexis " der Französische Immomakler"
069917103275
af@moo-immobillien.at
Provisionshinweis :
3% des Kaufpreises zzgl. 20% USt. Wir weisen darauf hin, dass zwischen dem Makler und dem Auftraggeber ein wirtschaftliches Naheverhältnis besteht,Nach § 6 Abs 4 MaklerG iVm
dass die in § 4 Abs.1 genannten Informationen mittels E-Mail (dauerhaften Datenträger) bereitgestellt werden. Information über den Leistungsumfang gem. § 4 FAGG
Die gewerbsmäßige Vermittlung von Geschäften über unbewegliche Sachen gem. § 16 Maklergesetz, insbesondere Kauf- oder Mietverträge für Wohnungen, Häuser, Grundstücke, Gewerbeimmobilien, Zinshäuser, etc.
Hinweis gemäß Energieausweisvorlagegesetz: Ein Energieausweis wurde vom Eigentümer bzw. Verkäufer, nach unserer Aufklärung über die generell geltende Vorlagepflicht, sowie Aufforderung zu seiner Erstellung noch nicht vorgelegt. Daher gilt zumindest eine dem Alter und der Art des Gebäudes entsprechende Gesamtenergieeffizienz als vereinbart. Wir übernehmen keinerlei Gewähr oder Haftung für die tatsächliche Energieeffizienz der angebotenen Immobilie.
Der Vermittler ist als Doppelmakler tätig.
Infrastruktur / Entfernungen
Gesundheit
Arzt <2.000m
Apotheke <1.500m
Klinik <2.500m
Krankenhaus <2.000m
Kinder & Schulen
Schule <1.500m
Kindergarten <500m
Universität <1.000m
Höhere Schule <5.000m
Nahversorgung
Supermarkt <500m
Bäckerei <2.000m
Einkaufszentrum <3.000m
Sonstige
Geldautomat <1.500m
Bank <1.500m
Post <3.000m
Polizei <2.000m
Verkehr
Bus <500m
U-Bahn <2.500m
Straßenbahn <1.500m
Bahnhof <2.000m
Autobahnanschluss <3.000m
Angaben Entfernung Luftlinie / Quelle: OpenStreetMap
Eckdaten
| Kaufpreis: | 559.000,00 € |
| Fläche: | 85,00 m² |
| Zimmer: | 4 |
Basisdaten zur Immobilie
| Objektnr: | 7633/439 |
| Art: | Haus |
| Land: | Österreich |
| Baujahr: | 1970 |
| Zustand: | Sanierungsbeduerftig |
| Alter: | Neubau |
| Kaufpreis: | 559.000,00 € |
| Provision: | 20.124,00 € inkl. 20% USt. |
| Betriebskosten: | 150,00 € |
| Wohnfläche: | 85,00 m² |
| Nutzfläche: | 190,00 m² |
| Grundstücksfl.: | 227,00 m² |
| Zimmer: | 4 |
| Bäder: | 1 |
| WC: | 2 |
| Stellplätze: | 1 |
| Garten: | 110,00 m² |
Ausstattung
Gas, Etagenheizung, Einbauküche, Dusche
Internet und TV
Information zur Internet und TV Versorgung hier
Ihre persönliche Beratung
Alexis Forabosco
MOO Immobilien GmbH
af@moo-immobilien.at
+43 699 17103275
+43 699 17103275
