Erstbezug in U-Bahn-Nähe! Lichtdurchflutetes 4-Zimmer-Penthouse mit zwei Balkonen und Dachterrasse mit Panoramablick
Wohnung
- Dachgeschoß,
1160
Wien
Beschreibung der Immobilie
In einem liebevoll generalsanierten Haus der Gründerzeit kommen insgesamt 13 hochwertig ausgestattete Liegenschaften - darunter ein Geschäftslokal, ein Büro, mehrere Wohnungen sowie ein Penthouse mit sonnigen Freiflächen - zur Vermarktung.
Der Ausbau der beiden Dachgeschosse erfolgte zeitgleich mit der Generalsanierung des Gebäudes und wird der Innenausbau in Kürze fertiggestellt. Die Wohnungen werden schlüsselfertig übergeben.
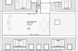
Mit dem Personenlift gelangt man direkt in den Eingangsbereich des exklusiven Penthouses. Über den Vorraum mit angeschlossener Gästetoilette betritt man den großzügig angelegten, nordsüdseitig ausgerichteten Wohn-Ess-Bereich mit ca. 72,00 m² Wohnfläche sowie einen südseitig gelegenen Balkon und eine kleine Terrasse, die den Aufgang zur ca. 43,00 m² großen Dachterrasse mit traumhaftem Panoramablick bietet. Weiters kann eines der drei Schlafzimmer mit ca. 14,00 m² direkt vom Wohn-Ess-Bereich aus begangen werden.
Über einen Gang erreicht man den Abstellraum, das Tageslichtbad mit Badewanne und Waschbecken, den nordseitig gelegenen Master-Bedroom mit ca. 18,00 m², das Bad - ausgestattet mit Dusche, Waschbecken und Toilette - sowie ein weiteres, südseitig ausgerichtetes Schlafzimmer mit ca. 16,00 m² und privatem Balkon.
Der gelungene, großzügige Grundriss dieses Penthouses trennt perfekt den öffentlichen vom privaten Bereich und vermittelt somit ein exklusives und behagliches Ambiente.
+ ca. 145,03 m2 Wohnnutzfläche
+ ca. 43,03 m2 Dachterrasse
+ ca. 7,57 m2 Balkon
+ ca. 7,73 m2 Balkon
+ ca. 3,52 m2 Terrasse - mit Aufgang zur Dachterrasse
+ ca. 71,86 m2 Wohn-Ess-Bereich
+ ca. 18,30 m2 Schlafzimmer
+ ca. 16,45 m2 weiteres Schlafzimmer
+ ca. 14,11 m2 weiteres Schlafzimmer
+ ca. 8,01 m2 Bad mit Badewanne und Waschbecken
+ ca. 4,00 m2 Bad mit Dusche, Waschbecken und Toilette
+ ca. 1,45 m2 Gästetoilette
+ ca. 1,66 m2 Abstellraum
+ ca. 5,38 m2 Vorraum
Ausstattung
+ Holzparkett Klasse II, Eiche rustikal
+ Boden-Fliesen in den Nassräumen
+ Waschtische mit Unterbauschrank
+ Armaturen der Marke GROHE
+ Badewanne 170 cm x 75 cm Kunststoff
+ Walk-In Dusche mit Hartglastüre
+ Villeroy & Boch Wand-Tiefspüler-WC
+ Handtuchwärmer
+ Innentüren der Firma DANA, glatt, sperrbar
+ Kunststoff-Fenster mit 3-fach Isolierverglasung
+ Velux Fenster mit Innen- oder Außenbeschattung inklusive Markisetten an den Schrägfenstern - solarbetrieben - bedienbar über Fernbedienung
+ Balkon- und Terrassentüren mit Innen- oder Außenbeschattung
+ witterungsbeständige WPC-Dielen auf Balkonen und Terrasse
+ Luftwärmepumpe der Firma DAIKIN für Fußbodenheizung und Warmwasseraufbereitung
+ Fancoils – Wandgerät für optimale Raumkühlung
+ Kabel-TV/Internet
+ Sprechanlage
+ Sicherheitstüre
+ Fahrradabstellplätze im Innenhof und im Keller
+ Gemeinschaftskeller
Infrastruktur
+ U-Bahn-Linien U3 und U6
+ Straßenbahn-Linien 2, 9, 10, 44 und 46
+ Schnellbahn S45
+ Wien Westbahnhof
Lage
Der 16. Wiener Gemeindebezirk Ottakring liegt westlich der Wiener Innenstadt und erstreckt sich von den Ausläufern des Wienerwaldes bis hin zum Lerchenfelder Gürtel. Seit einigen Jahren floriert dieser Bezirk und entwickelt sich immer mehr zu einer äußerst beliebten und attraktiven Wohngegend.
Gründerzeithäuser neben Gemeindebauanlagen und Villenvierteln oder alteingesessenen Industriebetrieben, wie z.B. der Delikatessenhandel der Firma Staud, die Kaffeerösterei Julius Meinl, die Firma Manner sowie die Ottakringer Brauerei - um nur einige zu nennen - ebenso wie die Multikulturalität dieses Bezirks machen den unvergleichlichen Charme von Ottakring aus.
Sämtliche Schulen und Kindergärten, Restaurants, Cafés, Bars, sowie Geschäfte und Einrichtungen des täglichen Bedarfs befinden sich in Gehnähe. Die Thaliastraße sowie Ottakringer Straße, der nahegelegene Brunnen- und Yppenmarkt - mit dem vor einiger Zeit neu gestaltetem Yppenplatz - laden zum Verweilen und Einkaufen ein.
Erholung und Freizeitgestaltung findet man in den kleinen Parkanlagen ebenso wie im Wienerwald mit der Jubiläumswarte, dem nahe gelegenen Wilhelminenberg mit seinem Schloss Wilhelminenberg, welches inmitten von Weingärten liegt und von dem aus man einen wunderbaren Blick über Wien genießt. Das beinahe einhundertjährige Kongressbad mit seiner unverkennbaren Architektur, die Tschauner-Bühne oder kleine, alteingesessene Heurigen bieten weitere Entspannungs- und Freizeitmöglichkeiten.
Sonstiges
Das Penthouse wird schlüsselfertig übergeben und kannindividuell nach Vereinbarung auf Kundenwunsch fertig gestellt werden.
Wir weisen im Sinne der Offenlegungspflichten darauf hin, dass die Fotos teilweise mit Hilfe von KI generiert wurden.
Wir ersuchen um Verständnis, dass wir aufgrund unserer Nachweispflicht gegenüber dem Eigentümer nur Anfragen mit vollständigen Kontaktdaten (Name, Adresse, Mobilnummer, Email) bearbeiten können.
Wir weisen darauf hin, dass zwischen dem Vermittler und dem zu vermittelnden Dritten ein familiäres oder wirtschaftliches Naheverhältnis besteht.
Der Vermittler ist als Doppelmakler tätig.
Infrastruktur / Entfernungen
Gesundheit
Arzt <500m
Apotheke <500m
Klinik <1.000m
Krankenhaus <1.500m
Kinder & Schulen
Schule <500m
Kindergarten <500m
Universität <1.500m
Höhere Schule <1.000m
Nahversorgung
Supermarkt <500m
Bäckerei <500m
Einkaufszentrum <1.000m
Sonstige
Geldautomat <500m
Bank <500m
Post <500m
Polizei <500m
Verkehr
Bus <500m
U-Bahn <1.000m
Straßenbahn <500m
Bahnhof <1.000m
Autobahnanschluss <4.500m
Angaben Entfernung Luftlinie / Quelle: OpenStreetMap
Eckdaten
| Kaufpreis: | 1.198.000,00 € |
| Fläche: | 145,03 m² |
| Zimmer: | 4 |
Basisdaten zur Immobilie
| Objektnr: | 3900 |
| Art: | Wohnung - Dachgeschoß |
| Land: | Österreich |
| Baujahr: | 1900 |
| Zustand: | Erstbezug |
| Alter: | Altbau |
| Kaufpreis: | 1.198.000,00 € |
| Provision: | 3% des Kaufpreises zzgl. 20% USt. |
| Betriebskosten: | 317,46 € |
| MwSt Gesamt: | 37,89 € |
| Wohnfläche: | 145,03 m² |
| Nutzfläche: | 171,14 m² |
| Zimmer: | 4 |
| Bäder: | 2 |
| WC: | 2 |
| Balkone: | 2 |
| Terrassen: | 2 |
| Heizwärmebedarf: | B 44,10 kWh/m²a |
| fGEE: | A 0,74 |
Ausstattung
Parkett, Fliesen, Fußbodenheizung, Personenaufzug, Südbalkon, Westbalkon, Bad mit Fenster, Badewanne, Dusche, Kabel/Satelliten-TV
Internet und TV
Information zur Internet und TV Versorgung hier
Ihre persönliche Beratung
Desirée Gottlieb
Gottlieb Properties Immobilientreuhand GmbH
desiree.gottlieb@gottliebproperties.at
+ 43 699 14702557
