Wohnen über den Dächern von Linz - ideale 2 Zi-Wohnung!
Wohnung
- Etage,
4020
Linz
Lage der Immobilie
Grüne MitteBeschreibung der Immobilie
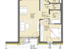
Willkommen in Ihrem neuen Zuhause in Linz! Diese neuwertige, 2019 erbaute Etagenwohnung bietet Ihnen modernes Wohnen auf ca. 57,2 m² Wohnfläche und insgesamt ca. 71,98 m² Nutzfläche. Die Immobilie befindet sich in einem beeindruckenden Gebäude mit insgesamt 17 Stockwerken, und Sie profitieren von einer ausgezeichneten Lage in der Stadt.
Die Wohnung punktet durch einen optimalen Grundriss mit einer großzügigen Wohnküche (ablösefreie Einbauküche), ein gemütliches Schlafzimmer und ein elegantes Bad. Der hochwertige Parkettboden sorgt für eine warme und behagliche Atmosphäre. Die moderne, vollständig möblierte Küche lädt zum Kochen und Verweilen ein und ist ideal für Hobbyköche und Genießer.
Ein besonderes Highlight dieser Wohnung sind die großzügigen Freiflächen (Loggia + Balkon), die zum Entspannen im Freien und zum Genießen der frischen Luft einlädt. Ob ein gemütlicher Morgenkaffee oder ein Abend mit Freunden, diese Terrasse bietet Ihnen Freiraum und Privatsphäre.
Die Lage in Linz bietet nicht nur eine hervorragende Anbindung an das Stadtzentrum, sondern auch an alle wesentlichen Einrichtungen, Geschäfte und öffentlichen Verkehrsmittel.
Bushaltestelle ~ 80 m
Straßenbahn ~ 700 m
Bahnhof ~ 1,5 km
Ein Supermarkt und eine Apotheke befinden sich im Haus. Eine Vielzahl von weiteren Einkaufsmöglichkeiten sowie einer Bank (SPARDA-BANK) finden Sie im LENAUPARK gegenüber.
Machen Sie diese charmante Wohnung zu Ihrem neuen Zuhause und genießen Sie den Komfort und die Annehmlichkeiten, die sie zu bieten hat. Nutzen Sie diese Gelegenheit, eine der begehrten Mietwohnungen in Linz zu mieten und vereinbaren Sie noch heute einen Besichtigungstermin!
Ein Kellerabteil gehört fix zur Wohnung und ein Allgemeingarten kann von allen Bewohnern genutzt werden.
* Die Kosten für Heizung, Strom und Kabel-TV sind in diesem Betrag nicht enthalten.
** Die dargestellten Einrichtungsvorschläge sind ki-generiert.
Wir weisen darauf hin, dass zwischen dem Vermittler und dem zu vermittelnden Dritten ein wirtschaftliches Naheverhältnis mit gesellschaftlicher Verflechtung besteht.
Der Immobilienmakler erklärt, dass er – entgegen dem in der Immobilienwirtschaft üblichen Geschäftsgebrauch des Doppelmaklers – einseitig nur für den Vermieter tätig ist.
Infrastruktur / Entfernungen
Gesundheit
Arzt <1.000m
Apotheke <500m
Krankenhaus <1.500m
Klinik <500m
Kinder & Schulen
Kindergarten <500m
Schule <500m
Universität <1.500m
Höhere Schule <2.000m
Nahversorgung
Supermarkt <500m
Bäckerei <500m
Einkaufszentrum <2.000m
Sonstige
Bank <500m
Geldautomat <500m
Post <500m
Polizei <500m
Verkehr
Bus <500m
Straßenbahn <1.000m
Bahnhof <1.000m
Autobahnanschluss <1.000m
Flughafen <2.500m
Angaben Entfernung Luftlinie / Quelle: OpenStreetMap
Eckdaten
| Gesamtmiete: | 895,01 € |
| Fläche: | 57,20 m² |
| Zimmer: | 2 |
Basisdaten zur Immobilie
| Objektnr: | 1939/132568 |
| Art: | Wohnung - Etage |
| Land: | Österreich |
| Baujahr: | 2019 |
| Zustand: | Neuwertig |
| Gesamtmiete: | 895,01 € |
| Kaltmiete (netto): | 700,09 € |
| Kaltmiete: | 813,64 € |
| Provision: | Gemäß Erstauftraggeberprinzip bezahlt der Abgeber die Provision. |
| Betriebskosten: | 113,55 € |
| MwSt Gesamt: | 81,37 € |
| Wohnfläche: | 57,20 m² |
| Nutzfläche: | 71,98 m² |
| Zimmer: | 2 |
| Bäder: | 1 |
| WC: | 1 |
| Balkone: | 1 |
| Heizwärmebedarf: | A 16,70 kWh/m²a |
| fGEE: | A+ 0,62 |
Ausstattung
Parkettboden, Einbauküche, Personenaufzug, Bad mit Fenster, Badewanne
Internet und TV
Information zur Internet und TV Versorgung hier
Ihre persönliche Beratung
Mag.(FH) Marianne Gerner-Kraupatz
IMMOcontract Immobilien Vermittlung GmbH
M.Gerner-Kraupatz@IMMOcontract.at
+43 50 450 400
+43 664 25 63 491
