Muhr58 | Erstbezug | Smarter Grundriss | Nähe U1
Wohnung
,
1100
Wien
Beschreibung der Immobilie
Eckdaten
| Kaufpreis: | 230.000,00 € |
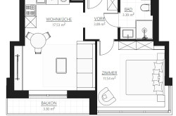
| Fläche: | 36,35 m² |
| Zimmer: | 2 |
Basisdaten zur Immobilie
| Objektnr: | 141/84705 |
| Art: | Wohnung |
| Land: | Österreich |
| Baujahr: | 2025 |
| Alter: | Neubau |
| Kaufpreis: | 230.000,00 € |
| Provision: | 3% |
| Wohnfläche: | 36,35 m² |
| Zimmer: | 2 |
| Bäder: | 1 |
| WC: | 1 |
| Balkone: | 1 |
| Heizwärmebedarf: | B 25,60 kWh/m²a |
| fGEE: | A 0,75 |
Internet und TV
Information zur Internet und TV Versorgung hier
Ihre persönliche Beratung
Monika Riener
Rustler Immobilientreuhand
riener@rustler.eu
+43 1 894 97 49393
+43 676 834 34 393
