2-Zimmer-Wohnung mit Balkon – Erstbezug in Neubauprojekt – zu mieten in 1150 Wien
Wohnung
- Etage,
1150
Wien
Lage der Immobilie
Durch die Nähe zur Längenfeldgasse (U4 und U6) ist das Objekt bestens an den öffentlichen Verkehr angebunden. Man erreicht die U-Bahn-Station in ca. 2 Minuten Gehweg. Auch die Busse 10A, 12A und 63A sind binnen wenigen Minuten zu Fuß erreichbar. Ein Spar, ein Billa, eine Bankfiliale, eine Tankstelle, einige Fitnessstudios sowie mehrere Lokale und Restaurants befinden sich in unmittelbarer Umgebung. Der Schlosspark Schönbrunn befindet sich nahe und lädt zum Entspannen und Sonne tanken im Grünen ein.Beschreibung der Immobilie
Eckdaten
| Gesamtmiete: | 1.265,00 € |
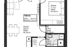
| Fläche: | 54,23 m² |
| Zimmer: | 2 |
Basisdaten zur Immobilie
| Objektnr: | 109258409 |
| Art: | Wohnung - Etage |
| Land: | Österreich |
| Baujahr: | 2026 |
| Zustand: | Erstbezug |
| Gesamtmiete: | 1.265,00 € |
| Kaltmiete (netto): | 987,31 € |
| Kaltmiete: | 1.265,00 € |
| Betriebskosten: | 162,69 € |
| Wohnfläche: | 54,23 m² |
| Zimmer: | 2 |
| Bäder: | 1 |
| WC: | 1 |
| Balkone: | 1 |
| Heizwärmebedarf: | B 25,90 kWh/m²a |
| fGEE: | A 0,74 |
Ausstattung
Fliesen, Parkett, Fußbodenheizung, Einbauküche, Westbalkon, Dusche
Internet und TV
Information zur Internet und TV Versorgung hier
Ihre persönliche Beratung
Lara Steinbacher
ÖRAG Immobilien Vermittlung GmbH
lara.steinbacher@oerag.at
0043153473261
004366488962125
