Erstbezug! Generalsaniertes Stilaltbaujuwel in ruhig gelegener Seitengasse nahe Strudlhofstiege
Wohnung
,
1090
Wien
,
Widerhoferplatz 1
Lage der Immobilie
Arne-Karlsson-Park / Altes AKH / BotschaftsviertelBeschreibung der Immobilie
Wiener Eleganz modern interpretiert
- Repräsentative Lage: Begehrte Adresse am Widerhoferplatz 1 ruhig und doch zentral
- Sanierte historische Stilaltbauwohngen:
- Wohnflächen von 104 bis 228 m², 3 bis 6 Zimmer
- Raumhöhen bis zu 3,65 m, stilvolle Gründerzeit-Atmosphäre
- Vollständige Sanierung unter Erhalt architektonischer Details
- Historisches Flair und moderne Ausstattung:
- Französisches Fischgrätparkett, prachtvolle Stuckleisten, traditionelle Kastenfenster mit Laibungen, hohe Türen im Alt-Wien Stil
- teils mit nachhaltiger Luftwärmepumpe
- Fußbodenheizung in allen Räumen für wohlige Wärme
- Exklusive Bäder mit freistehender Badewanne, Doppelwaschtischen, Markenarmaturen und Marmoroptik-Feinsteinzeug
- Sicher und smart:
- Eingangstüren im klassischen Design „Alt Wien“ mit Sicherheitsstandard WK3
- Innovative Smart-Home-Steuerung (Button-Intelligent-Living): Beleuchtung, Temperatur u.v.m. steuerbar per iPad (inkl. Wandhalterung und Ladestation)
- Dezente und elegante Beleuchtung von Wand, Boden und Decke
- Freiflächen: Balkone, Terrassen und ein idyllischer Garten mit Grünblick
- Zeitloses Wohngefühl:
- Perfekte Harmonie zwischen historischem Charme und modernen Ansprüchen
- Barrierefreier Zugang dank Aufzug und Rampen
- Großzügige, lichtdurchflutete Räume mit unvergleichlichem Ambiente
Ein Meisterwerk Wiener Baukunst – für Kosmopoliten, die das Besondere suchen.
Aktuell stehen zusätzlich eine Herrschaftswohnungen mit 228 m² und eine Stilaltbauwohnung mit 132 m² - im unsanierten Originalzustand - zum Verkauf. Optional können diese auch im selben Sanierungsstil wie die anderen Erstbezüge erworben werden.
Auto- und Motorradstellplätze ermöglichen auf Wunsch das komfortable Parken in der hauseigenen Tiefgarage:
- Hebebühne - EUR 55.000,--
- Motorradstellplatz - EUR 20.000,-
Lage am Alsergrund – Ärzte-, Bildungs- und Kulturviertel
- Medizinisches Zentrum:
- Nähe zu renommierten Einrichtungen wie AKH, St. Anna Kinderspital und Krankenanstalt Goldenes Kreuz
- Historischer Bezug: Altes AKH heute Universitätscampus mit Instituten und kulinarischen Hotspots
- Kulturelle Highlights:
- Volksoper in der Währinger Straße: Oper, Operetten, Musicals und Ballett
- Liechtensteinpark mit barockem Gartenpalais: Erholung und Einblick in fürstliche Lebenswelt
- Bildungsstandort: Tradition als Gesundheits- und Universitätsviertel, geprägt von Wissen und Forschung
- Exzellente Nahversorgung:
- Ausgezeichnete Restaurants wie Paco (Tapas) oder Café Weimar (klassische Wiener Küche)
- Einkaufsmöglichkeiten und Dienstleistungen in unmittelbarer Umgebung
- Hervorragende Anbindung:
- Straßenbahnlinien in der Währinger Straße mit flotter Innenstadt Route
- U6-Station Währinger Straße/Volksoper für schnellen Zugang ins historische Zentrum und den Rest der Stadt
Eine perfekte Symbiose aus medizinischer Expertise, kulturellem Reichtum, grüner Erholung und urbanem Lebenskomfort.
Sie denken über den Verkauf Ihrer Immobilie nach?
Wir erzielen für Sie den bestmöglichen Preis – professionell, diskret und effizient.
Auf Wunsch kümmern wir uns auch um Finanzierung, Versicherung und alle weiteren Schritte.
Jetzt unverbindlich anfragen!
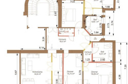
Top 8 - Maßgeschneidertes Wohnen
Zum Verkauf steht ein großzügiger 4-Zimmer Stilaltbau mit rund 130 m² Wohnfläche und einem hofseitigen als auch straßenseitigen Balkon.
Das Besondere: Die Wohnung wird nicht vorab saniert, sondern in enger Abstimmung mit dem Käufer. So entsteht Ihr ganz persönlicher Wohntraum – maßgeschneidert, hochwertig und stilvoll umgesetzt durch den Bauträger.
Aktuelle Raumaufteilung:
- Vorraum
- 3 straßenseitige Zimmer
- Gäste-WC
- Badezimmer
- hofseitig angelegte Küche
- hofseitiges Zimmer
- Abstellraum / Speis
- Balkon straßen- und hofseitig
Durch einen neu konzipierten Grundriss lässt sich das Raumangebot optimal nutzen – so kann eine moderne Wohnung entstehen, die ganz auf Ihre individuellen Wohnbedürfnisse zugeschnitten ist. Einige mögliche Planvarianten zur Ausführung der Wohnung finden sie in der Plansammlung.
Unser Sanierungskonzept: Sie wählen – wir realisieren!
Individuell.
Jede Wohnung wird erst nach dem Kauf nach Ihren persönlichen Vorstellungen saniert – Sie bestimmen Stil, Farben, Materialien und die Aufteilung.
Sicher.
Dank Fixpreis-Garantie und klar definiertem Zeitplan haben Sie volle Kosten- und Planungssicherheit, sowie die Gewährleistung nach den gesetzlichen Bestimmungen.
Exklusiv.
Wählen Sie aus einer Auswahl an hochwertigen Materialien, edlen Oberflächen und stilvollen Ausstattungen.
Komfortabel.
Von der ersten Besichtigung bis zur Schlüsselübergabe – wir begleiten Sie durch alle Schritte und koordinieren Planung, Ausführung und Fertigstellung für Sie. Auf Wunsch begleiten wir Sie gerne bei der Einrichtung und Küchengestaltung.
Vorteile
- Gestaltungsfreiheit
- Kostentransparenz
- Planungssicherheit
- klare Bauzeiten
- Komfort
- Wertsteigerung
- Exklusivität
Ablauf & Service
1. Besichtigung – Sie sehen den Rohzustand.
2. Beratung & Bemusterung – Sie wählen Materialien im Showroom.
3. Sanierung nach Wunsch – wir setzen um.
4. Schlüsselübergabe – Einzug in Ihr maßgeschneidertes Zuhause.
Ihre Wohnung. Ihr Stil. Unsere Umsetzung.
Gerne beraten wir Sie persönlich in unserem 3SI Luxury Estate Showroom in der Kärntner Straße 39, 1010 Wien.
Entdecken Sie vor Ort unsere exklusive Auswahl an Materialien – von edlen Parkettvariationen über stilvolle Fliesen bis hin zu hochwertigen Armaturen.
Öffnungszeiten:
Montag–Freitag: 10:00–18:00 Uhr
Samstag: 10:00–14:00 Uhr
Bei den angeführten Fotos finden Sie Beispielfotos von bereits sanierten Einheiten im Haus.
Bei diesem Kaufpreis handelt es sich um einen Richtwert, da die von Ihnen gewünschte Sanierung auch individuell anders gestaltet werden kann.Nebenkosten
Der guten Ordnung halber halten wir fest, dass, sofern im Angebot nicht anders vermerkt, bei erfolgreichem Abschlussfall eine Provision anfällt, die den in der Immobilienmaklerverordnung BGBI. 262 und 297/1996 festgelegten Sätzen entspricht – das sind 3 % des Kaufpreises zzgl. 20 % USt. Diese Provisionspflicht besteht auch dann, wenn Sie die Ihnen überlassenen Informationen an Dritte weitergeben. Letztlich weisen wir darauf hin, dass wir als Doppelmakler tätig sind und ein familiäres/wirtschaftliches Naheverhältnis zwischen der 3SI Makler GmbH und der Verkäuferin besteht.
Hinweis gemäß Energieausweisvorlagegesetz: Ein Energieausweis wurde vom Eigentümer bzw. Verkäufer, nach unserer Aufklärung über die generell geltende Vorlagepflicht, sowie Aufforderung zu seiner Erstellung noch nicht vorgelegt. Daher gilt zumindest eine dem Alter und der Art des Gebäudes entsprechende Gesamtenergieeffizienz als vereinbart. Wir übernehmen keinerlei Gewähr oder Haftung für die tatsächliche Energieeffizienz der angebotenen Immobilie.
Wir weisen darauf hin, dass zwischen dem Vermittler und dem zu vermittelnden Dritten ein familiäres oder wirtschaftliches Naheverhältnis besteht.
Der Vermittler ist als Doppelmakler tätig.
Infrastruktur / Entfernungen
Gesundheit
Arzt <100m
Apotheke <175m
Klinik <200m
Krankenhaus <650m
Kinder & Schulen
Schule <275m
Kindergarten <200m
Universität <75m
Höhere Schule <75m
Nahversorgung
Supermarkt <125m
Bäckerei <150m
Einkaufszentrum <1.800m
Sonstige
Geldautomat <150m
Bank <150m
Post <350m
Polizei <150m
Verkehr
Bus <150m
U-Bahn <200m
Straßenbahn <150m
Bahnhof <525m
Autobahnanschluss <1.925m
Angaben Entfernung Luftlinie / Quelle: OpenStreetMap
Eckdaten
| Kaufpreis: | 1.490.000,00 € |
| Fläche: | 130,00 m² |
| Zimmer: | 4 |
Basisdaten zur Immobilie
| Objektnr: | 21921 |
| Art: | Wohnung |
| Land: | Österreich |
| Baujahr: | 1900 |
| Zustand: | Erstbezug |
| Alter: | Altbau |
| Kaufpreis: | 1.490.000,00 € |
| Provision: | 3% des Kaufpreises zzgl. 20% USt. |
| Betriebskosten: | 207,90 € |
| MwSt Gesamt: | 20,79 € |
| Wohnfläche: | 130,00 m² |
| Nutzfläche: | 138,00 m² |
| Zimmer: | 4 |
| Bäder: | 2 |
| WC: | 2 |
| Balkone: | 2 |
Ausstattung
Fliesen, Parkett, Fußbodenheizung, Personenaufzug, Südbalkon, Bad mit Fenster, Dusche, Kabel/Satelliten-TV
Internet und TV
Information zur Internet und TV Versorgung hier
Ihre persönliche Beratung
Ing. Francis Broinger
3SI Makler GmbH
f.broinger@3si.at
+43 1 607 58 58 - 52
+43 660 29 36 662
F +43 1 607 55 80
