Grüne Auszeit zur Miete: Charmante 2-Zimmer-Gartenwohnung
Wohnung
,
1130
Wien
Lage der Immobilie
Die Auhofstraße 258 vereint exklusive Wohnqualität mit einer Lage, die ihresgleichen sucht. Eingebettet in die grüne Idylle des traditionsreichen Bezirks Hietzing, einer der prestigeträchtigsten Adressen Wiens, genießen Sie hier die perfekte Balance aus Ruhe, Natur und urbaner Nähe. Nur wenige Schritte entfernt sorgen die U4-Station Hütteldorf, diverse S-Bahn- und Buslinien für eine schnelle, bequeme Anbindung ins Wiener Stadtzentrum. Zugleich eröffnet sich direkt vor der Haustür ein reichhaltiges Angebot an erstklassigen Einkaufsmöglichkeiten, feiner Gastronomie, renommierten Bildungseinrichtungen sowie umfassender medizinischer Versorgung. Für aktive Erholung und entspannte Stunden im Freien bietet die Umgebung eine Vielzahl an Möglichkeiten – vom malerischen Wiental-Radweg über gepflegte Parks bis hin zu den weitläufigen Grünflächen des Wienerwalds. Hier wohnen Sie dort, wo andere Erholung suchen – inmitten von Natur und dennoch in bester Verbindung zur pulsierenden Metropole Wien.Beschreibung der Immobilie
2-Zimmer-Gartenwohnung mit großer Terrasse & Eigengarten | Erstbezug in 1130 Wien
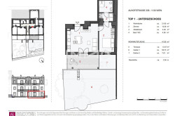
In der hochwertig revitalisierten Villa Auhof gelangt diese kompakt geplante 2-Zimmer-Gartenwohnung mit ca. 41,80 m² Wohnnutzfläche zur Vermietung. Ergänzt wird das Raumangebot durch eine ca. 12,57 m² große Terrasse sowie zwei private Gartenflächen (ca. 50,73 m² + 7,01 m²).
Raumaufteilung:
-
Wohnküche ca. 21,95 m²
-
Schlafzimmer ca. 12,26 m²
-
Abstellraum ca. 3,00 m²
-
Bad/WC ca. 4,59 m²
-
Raumhöhe ca. 2,55 m
Der offen gestaltete Wohnbereich bietet direkten Zugang zur Terrasse und in den Eigengarten – ideal für entspannte Stunden im Freien. Die klare Trennung von Wohn- und Schlafbereich sorgt für eine funktionale und angenehme Wohnatmosphäre.
Ausstattung & Technik:
-
Fußbodenheizung mit Einzelraumregelung
-
Energieeffiziente Luftwärmepumpe
-
Geöltes Eichenparkett in Wohn- und Schlafräumen
-
Hochwertige Fliesen im Bad
-
Bodengleiche Dusche
-
Holz-Alu-Fenster mit 3-fach-Isolierverglasung
-
Sicherheitseingangstüre mit Mehrfachverriegelung (EVVA-System)
-
Video-Gegensprechanlage
-
Zentralsperranlage
-
Einlagerungsraum
-
Fahrradabstellplatz
Das Gebäude wurde umfassend saniert und verbindet klassischen Alt-Wien-Charakter mit moderner Bauqualität und zeitgemäßer Haustechnik.
Lage
Die Auhofstraße im 13. Bezirk Hietzing bietet eine ideale Kombination aus Grünruhelage und urbaner Infrastruktur. U4 Hütteldorf, S-Bahn sowie Einkaufsmöglichkeiten befinden sich in unmittelbarer Nähe.
Ideal für:
Singles oder Paare, die eine hochwertige Mietwohnung mit Garten in ruhiger Lage suchen.
Der Immobilienmakler erklärt, dass er – entgegen dem in der Immobilienwirtschaft üblichen Geschäftsgebrauch des Doppelmaklers – einseitig nur für den Vermieter tätig ist.
Infrastruktur / Entfernungen
Gesundheit
Arzt <500m
Apotheke <1.000m
Klinik <3.000m
Krankenhaus <1.000m
Kinder & Schulen
Schule <500m
Kindergarten <500m
Universität <2.000m
Höhere Schule <5.000m
Nahversorgung
Supermarkt <500m
Bäckerei <1.000m
Einkaufszentrum <3.000m
Sonstige
Geldautomat <500m
Bank <500m
Post <2.000m
Polizei <1.000m
Verkehr
Bus <500m
U-Bahn <500m
Straßenbahn <500m
Bahnhof <1.000m
Autobahnanschluss <3.000m
Angaben Entfernung Luftlinie / Quelle: OpenStreetMap
Eckdaten
| Gesamtmiete: | 1.260,00 € |
| Fläche: | 41,80 m² |
| Zimmer: | 2 |
Basisdaten zur Immobilie
| Objektnr: | 1939/216528 |
| Art: | Wohnung |
| Land: | Österreich |
| Baujahr: | 2025 |
| Zustand: | Erstbezug |
| Gesamtmiete: | 1.260,00 € |
| Kaltmiete (netto): | 999,15 € |
| Kaltmiete: | 1.145,45 € |
| Provision: | Gemäß Erstauftraggeberprinzip bezahlt der Abgeber die Provision. |
| Betriebskosten: | 146,30 € |
| MwSt Gesamt: | 114,55 € |
| Wohnfläche: | 41,80 m² |
| Nutzfläche: | 41,80 m² |
| Gesamtfläche: | 105,10 m² |
| Zimmer: | 2 |
| Bäder: | 1 |
| WC: | 1 |
| Terrassen: | 1 |
| Garten: | 50,73 m² |
| Heizwärmebedarf: | B 40,20 kWh/m²a |
| fGEE: | A 0,82 |
Ausstattung
Fliesen, Parkett, Fußbodenheizung, Wohnküche / offene Küche, Personenaufzug, Ostbalkon, Dusche, Kabel/Satelliten-TV
Internet und TV
Information zur Internet und TV Versorgung hier
Ihre persönliche Beratung
Julian Pelzmann
IMMOcontract Immobilien Vermittlung GmbH
J.Pelzmann@IMMOcontract.at
+43 664 6000 8409
+43 664 6000 8409
