Perfekte Anlegerwohnung in Top-Lage I Hofruhelage
Wohnung
,
1100
Wien
Beschreibung der Immobilie
Eckdaten
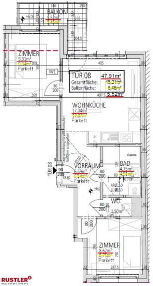
| Kaufpreis: | 266.630,00 € |
| Fläche: | 48,21 m² |
| Zimmer: | 3 |
Basisdaten zur Immobilie
| Objektnr: | 141/84914 |
| Art: | Wohnung |
| Land: | Österreich |
| Baujahr: | 2025 |
| Alter: | Neubau |
| Kaufpreis: | 266.630,00 € |
| Kaufpreis / m²: | 5.530,60 € |
| Provision: | 3% |
| Wohnfläche: | 48,21 m² |
| Zimmer: | 3 |
| Bäder: | 1 |
| WC: | 1 |
| Balkone: | 1 |
| Heizwärmebedarf: | B 25,60 kWh/m²a |
| fGEE: | A 0,75 |
Ausstattung
Personenaufzug
Internet und TV
Information zur Internet und TV Versorgung hier
Ihre persönliche Beratung
Timo Kohlweiss
Rustler Immobilientreuhand
kohlweiss@rustler.eu
+43 1 8949749683
+43 676 834 34 683
