Ostseitige 4-Zimmer-Gartenwohnung mit direktem Gartenzugang & Top-Ausstattung
Wohnung
- Erdgeschoß,
1230
Wien
Beschreibung der Immobilie
Eckdaten
| Kaufpreis: | 479.000,00 € |
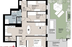
| Fläche: | 83,75 m² |
| Zimmer: | 4 |
Basisdaten zur Immobilie
| Objektnr: | 141/85135 |
| Art: | Wohnung - Erdgeschoß |
| Land: | Österreich |
| Baujahr: | 2024 |
| Kaufpreis: | 479.000,00 € |
| Provision: | 3% |
| Wohnfläche: | 83,75 m² |
| Zimmer: | 4 |
| Bäder: | 1 |
| WC: | 2 |
| Terrassen: | 1 |
| Garten: | 36,00 m² |
| Heizwärmebedarf: | B 39,10 kWh/m²a |
| fGEE: | A 0,75 |
Ausstattung
Parkett, Personenaufzug
Internet und TV
Information zur Internet und TV Versorgung hier
Ihre persönliche Beratung
Monika Riener
Rustler Immobilientreuhand
riener@rustler.eu
+43 1 894 97 49393
+43 676 834 34 393
