Passivhaus in Kilb
Haus
- Einfamilienhaus,
3233
Fleischessen
Beschreibung der Immobilie
PASSIVHAUS IN KILB
In idyllischer Lage von Kilb erwartet Sie dieses hochwertig errichtete Passivhaus in Mantelbetonbauweise. Das 2010 erbaute Haus überzeugt durch durchdachte Raumaufteilung, energieeffiziente Ausstattung (HWB 10 – A++) und eine großzügige Grundstücksfläche von ca. 1.320 m².
Das angrenzende Haus daneben hat einen eigenen Eingang und eine eigene Zufahrt. Die beiden Häuser waren im Familienbesitz.
Ideal für Familien oder alle, die modernes, nachhaltiges Wohnen in naturnaher Umgebung schätzen.
ANBOTSPREIS: € 380.000,- inkl. Wohnbauförderung ca. € 57.500,-
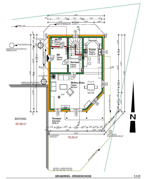
Erdgeschoss – ca. 76,30 m²
- Windfang
- zusätzlicher Vorraum
- separates WC
- großzügiger Wohn- & Essbereich mit Ausgang auf die Terrasse
- Küche
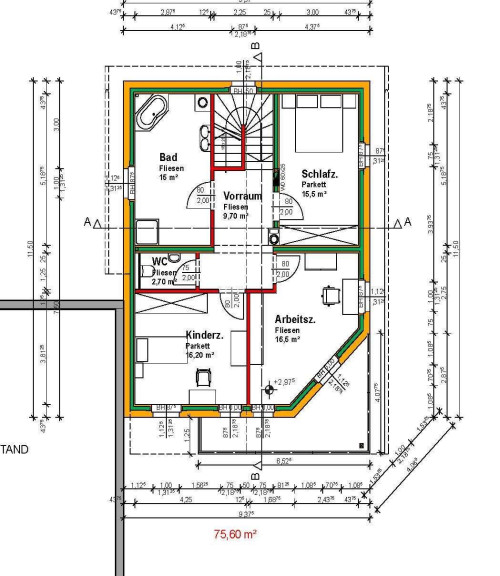
Obergeschoss – ca. 75,60 m²
- Vorraum
- drei Zimmer (ideal als Schlaf-, Kinder- oder Arbeitszimmer)
- separates WC
- großzügiges Badezimmer mit Dusche, Badewanne, Doppelwaschbecken und Waschmaschinenanschluss
- Zugang zum Dachboden
Gesamtwohnfläche ca. 152m²
🌞 Ausstattung & Highlights
- Passivhausstandard (HWB 10 – A++)
- dreifach verglaste Holz/Alu-Fenster
- elektrische Außenrollos & teilweise Fliegengitter
- kontrollierte Wohnraumlüftung mit Wärmerückgewinnung
- Fußbodenheizung im gesamten Haus
- Zentralheizung mit Pellets
- Photovoltaikanlage (7 kW)
- SAT-Anlage vorhanden
- Anschlussmöglichkeit für Schwedenofen
- Grundstücksfläche ca. 1.320 m²
- Grünland mit erhaltenswertem Gebäude
- Terrasse
- französische Balkone
- Brunnen (gemeinsame Nutzung mit angrenzender Liegenschaft)
- eigene Kläranlage (nur Wartungskosten, gemeinsame Nutzung)
- Garage für zwei Autos
- Carport für zwei Autos
- genügend Autoabstellplätze
Aktuell gibt es eine befristete Gebührenbefreiung bei der Grundbuchseintragung. Unter bestimmten Voraussetzungen können dadurch sowohl die Eintragung des Eigentums als auch eines Pfandrechts gebührenfrei sein. Das kann eine spürbare finanzielle Entlastung bedeuten.
❗Wichtig ist, dass der Grundbuchsantrag spätestens bis 30.06.2026 beim Grundbuchsgericht eingebracht wird.
Wenn du also ohnehin über den Kauf einer Immobilie nachdenkst, kann es sich lohnen, diese Frist im Blick zu behalten. Mehr Infos zur Gebührenbefreiung findest du in unserem Beitrag.
⬇️ https://www.ganzbeiihnen.at/2026/03/03/letzte-chance-auf-gebuehrenbefreiung-im-grundbuch
Nähere Informationen werden gerne übermittelt, bzw. freue ich mich sehr, Ihnen diese wunderschöne Liegenschaft präsentieren zu dürfen
Ich weiße sie darauf hin, dass ich als Doppelmakler auftrete!
RAIFFEISEN IMMOBILIEN
EXKLUSIVER VERTRIEB
KARIN PLESIUTSCHNIG
0664/60 517 517 63
! Wir möchten Sie informieren – Maklervertrag (FAGG-Bestimmungen)
Gerne übermitteln wir ihnen ein unverbindliches, kostenloses Angebot mit der Adresse der angefragten Immobilie bzw. vereinbaren mit Ihnen auf Wunsch einen Termin.
Alleine durch die Unterfertigung dieses Maklervertrages und die Besichtigung von Objekten entstehen Ihnen keine Kosten. Erst mit dem Abschluss eines Kaufvertrages oder eines Mietvertrages tritt Verdienstlichkeit ein und es wird die Provisionsvereinbarung dieses Vertrages ausgelöst!
Bitte haben Sie dafür Verständnis, dass wir Ihnen seit dem 13. Juni 2014 aufgrund der neuen EU-Richtlinie Unterlagen und Informationen zu unseren Objekten erst dann übersenden können, wenn wir Ihre Kontaktdaten inkl. Wohnadresse haben und Sie bestätigen, dass Sie unser vorzeitiges Tätigwerden wünschen und über Ihre Rücktrittsrechte aufgeklärt wurden. Hierfür erhalten Sie nach Ihrer Anfrage eine Email mit den entsprechenden Unterlagen und einem Link, um diese Punkte zu bestätigen.
Vielen Dank!
Eckdaten
| Kaufpreis: | 380.000,00 € |
| Fläche: | 152,00 m² |
| Zimmer: | 4 |
Basisdaten zur Immobilie
| Objektnr: | 0001011437 |
| Art: | Haus - Einfamilienhaus |
| Land: | Österreich |
| Baujahr: | 2010 |
| Möbliert: | Teil |
| Kaufpreis: | 380.000,00 € |
| Kaufpreis / m²: | auf Anfrage |
| Provision: | 3% des Kaufpreises plus 20% USt. |
| Betriebskosten: | 32,00 € |
| Wohnfläche: | 152,00 m² |
| Grundstücksfl.: | 1.320,00 m² |
| Zimmer: | 4 |
| Bäder: | 1 |
| WC: | 2 |
| Terrassen: | 1 |
| Heizwärmebedarf: | A++ 10,00 kWh/m²a |
Ausstattung
Kamin, Zentralheizung, Fußbodenheizung, Wohnküche / offene Küche, Bad mit Fenster, Badewanne, Dusche, Kabel/Satelliten-TV
Internet und TV
Information zur Internet und TV Versorgung hier
Ihre persönliche Beratung
Karin Plesiutschnig
Raiffeisen Immobilien Vermittlung
karin.plesiutschnig@riv.at
+43517517
+43 664 60 517 517 63
