Lage der Immobilie
Wels WimpassingBeschreibung der Immobilie
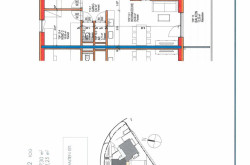
Diese sehr gut aufgeteilte Wohnung verfügt über 2 Kinderzimmer, eine schöne große Küche mit Wohnessbereich und einer großen Terrasse.
Bad mit Badewanne und Dusche. Weiters gibt es einen Abstellraum und ein Kellerabteil.
Ein KFZ-Abstellplatz in der Tiefgarage ist bereits im Gesamtmietpreis inkludiert.
Der Immobilienmakler erklärt, dass er – entgegen dem in der Immobilienwirtschaft üblichen Geschäftsgebrauch des Doppelmaklers – einseitig nur für den Vermieter tätig ist.
Infrastruktur / Entfernungen
Gesundheit
Arzt <1.000m
Apotheke <1.000m
Klinik <1.500m
Krankenhaus <3.000m
Kinder & Schulen
Schule <1.500m
Kindergarten <1.000m
Universität <2.500m
Nahversorgung
Supermarkt <500m
Bäckerei <500m
Einkaufszentrum <2.500m
Sonstige
Bank <500m
Geldautomat <500m
Post <1.500m
Polizei <2.000m
Verkehr
Bus <500m
Autobahnanschluss <1.500m
Bahnhof <2.000m
Flughafen <4.500m
Angaben Entfernung Luftlinie / Quelle: OpenStreetMap
Eckdaten
| Gesamtmiete: | 1.296,52 € |
| Fläche: | 77,25 m² |
Basisdaten zur Immobilie
| Objektnr: | 1937/7646032 |
| Art: | Wohnung |
| Land: | Österreich |
| Gesamtmiete: | 1.296,52 € |
| Kaltmiete (netto): | 825,00 € |
| Kaltmiete: | 1.111,58 € |
| Provision: | Gemäß Erstauftraggeberprinzip bezahlt der Abgeber die Provision. |
| Betriebskosten: | 197,54 € |
| Heizkosten: | 54,07 € |
| MwSt Gesamt: | 130,87 € |
| Wohnfläche: | 77,25 m² |
| Nutzfläche: | 77,25 m² |
Internet und TV
Information zur Internet und TV Versorgung hier
Ihre persönliche Beratung
Gerlinde Zwirzitz
AREV Immobilien GmbH
gerlinde.zwirzitz@arev.at
+43 7242 22110 502
+43 664 8185393
