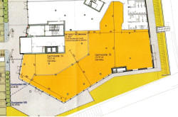
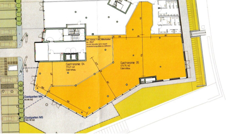
GROSSGASTRONOMIE/BETRIEBSFLÄCHE - erstes Objekt an der Zufahrt zum Industriezentrum NÖ Süd - 472 m²
Gastgewerbe
,
2351
Wiener Neudorf
Lage der Immobilie
Die Liegenschaft befindet sich direkt an der Autobahnabfahrt A2 - Wiener Neudorf (IZ NÖ SÜD). In unmittelbarer Nähe gibt es zahlreiche Repräsentanzen großer Firmen und viele Parkplätze. Das Objekt befindet sich im erweiterten Edelrohbau und erlaubt dem künftigen Mieter mit hoher Flexibilität den Innenausbau nach eigenen Vorstellungen zu gestalten.Beschreibung der Immobilie
Der angegebene Preis von € 8.260.- versteht sich für die 472 m² Innenfläche mitsamt Gartenanteil (163 m²).
ACHTUNG WICHTIGE INFORMATION: GEMÄSS DEN VORGABEN UNSERER ANBIETER – ABGEBER WERDEN DETAILLIERTE ANGABEN ÜBER DIE INTERESSENTEN BENÖTIGT. IM FALLE IHRER ANFRAGE BITTEN WIR UM ANGABE VON: FIRMENNAME / NAME, ADRESSE, TELEFON, E-MAIL.
Auf ein wirtschaftliches Naheverhältnis zum Abgeber wird hingewiesen. Alle Informationen basieren auf Angaben des Abgebers und sind somit ohne Gewähr. Der Auftraggeber wurde von der Firma Gastrotel über die gesetzliche Verpflichtung zur Vorlage eines Energiesauweises aufgeklärt, ist dieser Aufforderung bis dato jedoch noch nicht nachgekommen.
Für Fragen bzw. zur Vereinbarung einer Besichtigung erreichen Sie
Frau Jutta SCHRÖDER: 0664 307 68 59 oder Herrn Christian HILSCHER: 0664 240 71 79 bzw. per Mail: office@gastrotel.at
Wir weisen darauf hin, dass zwischen dem Vermittler und dem zu vermittelnden Dritten ein familiäres oder wirtschaftliches Naheverhältnis besteht.
Der Vermittler ist als Doppelmakler tätig.
Infrastruktur / Entfernungen
Gesundheit
Arzt <1.000m
Apotheke <1.000m
Klinik <3.500m
Krankenhaus <3.000m
Kinder & Schulen
Kindergarten <1.500m
Schule <1.500m
Höhere Schule <3.000m
Universität <10.000m
Nahversorgung
Supermarkt <500m
Bäckerei <1.500m
Einkaufszentrum <500m
Sonstige
Bank <500m
Geldautomat <500m
Post <500m
Polizei <1.000m
Verkehr
Bus <500m
U-Bahn <6.500m
Bahnhof <1.500m
Autobahnanschluss <1.000m
Straßenbahn <4.000m
Angaben Entfernung Luftlinie / Quelle: OpenStreetMap
Eckdaten
| Kaltmiete (netto): | 8.260,00 € |
| Fläche: | 472,00 m² |
Basisdaten zur Immobilie
| Objektnr: | 25714 |
| Art: | Gastgewerbe |
| Land: | Österreich |
| Zustand: | Erstbezug |
| Alter: | Neubau |
| Kaltmiete (netto): | 8.260,00 € |
| Kaltmiete: | 10.195,20 € |
| Betriebskosten: | 1.935,20 € |
| Nutzfläche: | 472,00 m² |
| Garten: | 163,00 m² |
Internet und TV
Information zur Internet und TV Versorgung hier
Ihre persönliche Beratung
Walter Heidinger
WERTIMMOBILIEN Consulting KG
office@gastrotel.at
+43 664 312 06 46
