Immobilie merken

Exklusiver Zweitwohnsitz rund um Turracher Höhe - Kreischberg - Lungau!

Wohnung - Etage, 8862 Stadl an der Mur

Lage der Immobilie

Zentral im Dorf "Stadl an der Mur" im Dreiländereck der Urlaubsbundesländer Steiermark - Kärnten - Salzburg liegt diese generalsanierte Ferienwohnanlage. Die Gegend in den Gurktaler Alpen wird von Bewohnern als auch Besuchern aus ganz Europa sehr geschätzt. Nicht nur der voll intakte Naturerlebnisraum sondern auch die Menschen, gelebte Gastlichkeit und eine gewisse ländliche Stille rund um den von der UNESCO ausgezeichneten "Biosphärenpark", zeichnen diesen Lebensraum aus. Die touristischen Hotspots der Region, wie "Kreischberg - Turracher Höhe - Lachtal - Lungau" erreicht man in wenigen Autominuten. Die Flughäfen Klagenfurt - Graz - Salzburg erreicht mit dem Auto in ca. 1,5 Stunden, Wien und München in ca. 3 Stunden.

Beschreibung der Immobilie

Die Wohnanlage mit insgesamt 8 neuen Apartments kann variantenreich genutzt werden:
Als "Zweitwohnsitz" für Kunden, welche gelegentlich die schönsten Jahreszeiten vor Ort genießen möchten.
Als lukrative Wertanlage zum Nettokaufpreis mit touristischer Vermietung und gelegentlicher Eigennutzung.
Oder auch als Haupt- oder Alterswohnsitz mit bester dörflicher Infrastruktur.

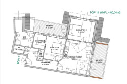
Raumaufteilung TOP 11:
Vorraum mit Garderobe - WC - Stauraum - Badezimmer - Schlafzimmer mit begehbarem Schrank und Zugang auf Westbalkon - großes Wohn/Esszimmer mit Zugang auf Balkon - Schlafzimmer - Kellerabteil. Ein Kfz- Stellplatz kann als Wohnungseigentumsobjekt dazu gekauft werden.
Für private Käufer und Nutzer wird die Wohnung TOP 11 zum Bruttokaufpreis von € 390.000.- angeboten.
Die Renditeangaben basieren auf Erfahrungswerten aus der lokalen, touristischen Vermietung ähnlicher Objekte. Es werden hierfür unsererseits keinerlei Garantien und Haftungen übernommen!

Infrastruktur / Entfernungen

Gesundheit
Arzt <500m

Kinder & Schulen
Schule <500m
Kindergarten <500m

Nahversorgung
Supermarkt <500m
Bäckerei <500m

Sonstige
Bank <500m
Post <500m
Geldautomat <500m
Polizei <500m

Verkehr
Bus <500m
Bahnhof <500m

Angaben Entfernung Luftlinie / Quelle: OpenStreetMap

Eckdaten

Kaufpreis: 390.000,00 €
Fläche: 79,08 m²
Zimmer: 3

Basisdaten zur Immobilie

Objektnr: 105
Art: Wohnung - Etage
Land: Österreich
Zustand: Voll_saniert
Kaufpreis: 390.000,00
Wohnfläche: 79,08 m²
Zimmer: 3
Bäder: 1
Balkone: 1
Stellplätze: 1
Heizwärmebedarf:  B  46,00 kWh/m²a
fGEE:  A  0,73

Ausstattung

Fliesen, Parkett, Gas, Zentralheizung, Einbauküche, Personenaufzug, Dusche, Parkplatz



Internet und TV

Information zur Internet und TV Versorgung hier




Immobilie anfragen




Ihre persönliche Beratung

Karl Lukas Lassacher

Edelweiss Immobilien GmbH

office@edelweiss-immo.at

+43 664 9217197

+43 664 92 17 197


Edelweiss Immobilien GmbH - Immobilen Makler

Predlitz 17, 8863 Predlitz