Immobilie merken

Helle Garconniere mit Garten in Toplage!

Wohnung - Erdgeschoß, 5020 Salzburg

Lage der Immobilie

Die Rochusgasse befindet sich im beliebten Stadtteil Maxglan und vereint ruhiges Wohnen mit ausgezeichneter Infrastruktur. Der Leopoldskroner Weiher ist in wenigen Minuten erreichbar und bietet hohe Lebensqualität mit Spazier-, Lauf- und Erholungsmöglichkeiten im Grünen. Ebenso liegt die bekannte Stiegl-Brauwelt in angenehmer Nähe. Die Anbindung an den öffentlichen Verkehr ist hervorragend: Die Buslinien 1 und 10 befinden sich in unmittelbarer Nähe. Ebenso sind alle wichtigen Einrichtungen des täglichen Bedarfs fußläufig erreichbar – darunter Supermärkte, Drogerien, Apotheke, Bankfiliale sowie Friseure.

Beschreibung der Immobilie

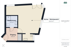
Diese gepflegte Garçonniere mit Garten in der Rochusgasse 2, Top 3 bietet ein modernes und ruhiges Wohnerlebnis in gut angebundener Salzburger Lage. Mit einer Wohnfläche von rund 37 m² sowie einer großzügigen Gartenfläche von ca. 70 m² eignet sich die Wohnung ideal für Singles oder Paare, die urbanes Wohnen mit einem privaten Außenbereich verbinden möchten.

Die Wohnung befindet sich im Erdgeschoss und überzeugt durch einen großzügigen, offenen Wohn-Essbereich, in den eine praktische Schlafnische integriert ist. Diese Raumlösung schafft ein angenehmes Wohngefühl bei klarer Zonierung von Wohnen und Schlafen. Vom Wohnbereich aus gelangt man direkt in den Garten, der den Wohnraum ins Freie erweitert und einen echten Mehrwert bietet.

Das Badezimmer ist modern und zeitlos gestaltet und verfügt über eine Dusche. Ein Waschmaschinenanschluss ist vorbereitet. Alternativ steht den Bewohner:innen ein gemeinschaftlicher Waschraum im Keller mit Waschmaschine und Trockner zur Verfügung.

Die voll ausgestattete Einbauküche ist bereits integriert und ermöglicht einen unkomplizierten Einzug. Vinylboden und Fliesen sorgen für eine pflegeleichte und ruhige Optik. Die Wohnung wurde gezielt modernisiert und befindet sich in einem sehr gepflegten Zustand.

Beheizt wird die Wohnung mittels vollflächiger Fußbodenheizung, die über einen Wandthermostat individuell steuerbar ist. Die Energieversorgung erfolgt über Fernwärme und Gas und gewährleistet eine effiziente und zuverlässige Wärmebereitstellung.

Zur Wohnung gehört ein Kellerabteil mit ca. 3 m². Zusätzlich steht der Bewohnerschaft ein Fahrradraum im Erdgeschoss zur gemeinschaftlichen Nutzung zur Verfügung. Ein Tiefgaragenstellplatz bietet komfortables und sicheres Parken, ein Lift sorgt für einen bequemen Zugang im Haus.

Insgesamt handelt es sich um eine sehr attraktive Mietwohnung mit durchdachter Raumaufteilung, privatem Garten und ausgezeichneter Infrastruktur – ideal für alle, die ruhiges Wohnen mit urbaner Nähe verbinden möchten.

Der Immobilienmakler erklärt, dass er – entgegen dem in der Immobilienwirtschaft üblichen Geschäftsgebrauch des Doppelmaklers – einseitig nur für den Vermieter tätig ist.

Infrastruktur / Entfernungen

Gesundheit
Arzt <500m
Apotheke <500m
Klinik <1.000m
Krankenhaus <1.500m

Kinder & Schulen
Schule <500m
Kindergarten <500m
Universität <2.000m
Höhere Schule <1.500m

Nahversorgung
Supermarkt <500m
Bäckerei <500m
Einkaufszentrum <2.500m

Sonstige
Bank <500m
Geldautomat <500m
Post <1.000m
Polizei <1.000m

Verkehr
Bus <500m
Bahnhof <1.500m
Autobahnanschluss <2.500m
Flughafen <1.500m

Angaben Entfernung Luftlinie / Quelle: OpenStreetMap

Eckdaten

Gesamtmiete: 1.342,00 €
Fläche: 37,00 m²
Zimmer: 1

Basisdaten zur Immobilie

Objektnr: 119
Art: Wohnung - Erdgeschoß
Land: Österreich
Zustand: Modernisiert
Gesamtmiete: 1.342,00
Kaltmiete (netto): 900,00 €
Kaltmiete: 1.276,00 €
Betriebskosten: 200,00 €
Heizkosten: 55,00 €
MwSt Gesamt: 11,00 €
Wohnfläche: 37,00 m²
Zimmer: 1
Bäder: 1
Stellplätze: 1
Garten: 70,00 m²
Heizwärmebedarf:  D  127,50 kWh/m²a
fGEE:  C  1,73

Ausstattung

Fliesen, Gas, Fernwärme, Einbauküche, Personenaufzug, Dusche, Tiefgarage



Internet und TV

Information zur Internet und TV Versorgung hier




Immobilie anfragen




Ihre persönliche Beratung

Karl Lukas Lassacher

Edelweiss Immobilien GmbH

office@edelweiss-immo.at

+43 664 9217197

+43 664 92 17 197


Edelweiss Immobilien GmbH - Immobilen Makler

Predlitz 17, 8863 Predlitz