Lage der Immobilie
Das Objekt ist ideal gelegen, nur wenige Minuten zu der U2-Station Aspernstraße sowie der Buslinie 26A. Mit den öffentlichen Verkehrsmitteln gelangt man in knapp 15 Minuten ins Stadtzentrum. Zur Erholung dient die nahgelegene Donauinsel sowie die Alte Donau. Nahversorger, Apotheken, Ärzte, Restaurants und weitere Annehmlichkeiten befinden sich in fußläufiger Entfernung.Beschreibung der Immobilie
Die zu verkaufende Liegenschaft ist etwas ganz Besonderes!
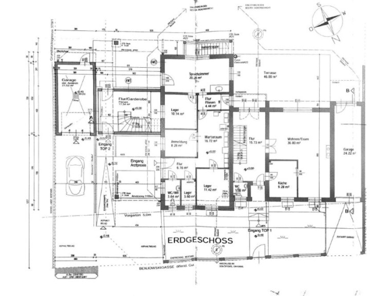
Sie besteht aus drei großen Bereichen: einer Ordination, einem Haus und einer Wohnung
Die 3 Bereiche werden getrennt voneinander angeboten
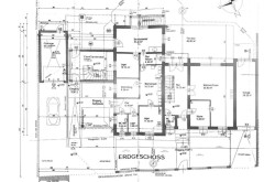
Ordination
Barrierefreier Zugang zu allen Räumen, Empfang mit Wartebereich, Ordinationszimmer, Vorbereitungszimmer, Sanitärräume, Sozialraume und Küche. Die Ordi/Wohnung hat auch einen Garten
Wenn Sie Interesse an der Ordination haben, rufen Sie mich einfach an und wir vereinbaren einen Besichtigungstermin!
Noch nichts gefunden? Wir suchen gerne die passende Immobilie für sie und informieren Sie über geeignete Immobilienangebote noch vor allen anderen.
Legen Sie jetzt Ihren individuellen Suchagenten unter folgendem Link an. Wir schicken Ihnen passende Immobilien exklusiv vorab zu ihr Denich Real Immobilienservice
Suchagent anlegen
Der Vermittler ist als Doppelmakler tätig.
Infrastruktur / Entfernungen
Gesundheit
Arzt <500m
Apotheke <500m
Klinik <1.500m
Krankenhaus <2.000m
Kinder & Schulen
Schule <500m
Kindergarten <500m
Universität <2.000m
Höhere Schule <2.000m
Nahversorgung
Supermarkt <500m
Bäckerei <500m
Einkaufszentrum <3.500m
Sonstige
Geldautomat <500m
Bank <500m
Post <1.500m
Polizei <1.000m
Verkehr
Bus <500m
U-Bahn <1.500m
Straßenbahn <500m
Bahnhof <1.500m
Autobahnanschluss <3.000m
Angaben Entfernung Luftlinie / Quelle: OpenStreetMap
Eckdaten
| Kaufpreis: | 375.000,00 € |
| Fläche: | 105,00 m² |
Basisdaten zur Immobilie
| Objektnr: | 1411 |
| Art: | Wohnung |
| Land: | Österreich |
| Zustand: | Gepflegt |
| Alter: | Neubau |
| Kaufpreis: | 375.000,00 € |
| Kaufpreis / m²: | auf Anfrage |
| Wohnfläche: | 105,00 m² |
| Grundstücksfl.: | 300,00 m² |
| Balkone: | 1 |
| Terrassen: | 2 |
| Stellplätze: | 4 |
| Garten: | 250,00 m² |
| Keller: | 65,00 m² |
Ausstattung
Fliesen, Parkett, Öl, Etagenheizung, Einbauküche, Westbalkon
Internet und TV
Information zur Internet und TV Versorgung hier
Ihre persönliche Beratung
Martina Denich-Kobula
DENICH-REAL Immobilien GmbH
md@denich-real.at
+43 664 4609630
+43 664 4609630
