Lage der Immobilie
Diese absolut neue Top Wohnung im 22. Bezirk von Wien bietet Ihnen eine hervorragende Lage in unmittelbarer Nähe zur Alten Donau. In der Umgebung finden Sie alles, was Sie für den Alltag benötigen: Arzt, Apotheke, Schulen, Kindergarten, Supermarkt, Bäckerei sowie ein Einkaufszentrum. Öffentliche Verkehrsanbindungen wie Bus, U-Bahn und Straßenbahn sind ebenfalls schnell erreichbar.Beschreibung der Immobilie
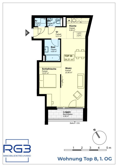
Diese Top Immobilie befindet sich in der 1. Etage und hat eine Wohnfläche von ca. 54,51 m². Sie hat einen Abstellraum und einen Kellerraum, der mit dem Lift erreichbar ist.
Ein Garagenplatz ist optional zu haben. Die gesamte Wohnanlage ist auf einem Baurechtsgrundstück gebaut worden, den Bauzins dafür haben wir in der Kostenaufstellung unter Sonstiges angeführt.
Mit dem Lift fahren Sie bequem in den ersten Stock. Sie betreten die Wohnung und spüren sofort: alles ist neu, alles ist ruhig, alles passt zusammen. Rechts befindet sich ausreichend Platz für Garderobe und Jacken. Links liegt das moderne Badezimmer mit extra Toilette, klar gestaltet, hochwertig ausgeführt.
Geradeaus öffnet sich der Wohnbereich. Hier geht der Küchenraum fließend in das großzügige Wohnzimmer über. Der Raum ist angenehm geplant, hell und sehr gut möblierbar. In das Schöafzimmer gelangen Sie fliesend vom Wohnzimmer. Ob Wohnzimmer oder Schlafzimmer, Sie gelangen direkt auf die Loggia mit einem wunderbaren Blick in den Südwesten Richtung Alte Donau, zu der Sie nur ca. 170m Gehweg haben.
Die Wohnung ist ein Erstbezug und wurde schlüsselfertig ausgeführt.
Die Wohnung wird mittels Betonkernaktivierung und Deckenheizung über eine moderne Luftwärmepumpe beheizt. Lift und Kellerabteil sind selbstverständlich vorhanden.
Eine hochwertige Neubauwohnung in sehr guter Lage – modern und sofort beziehbar
Bei eine Online Anfrage bekommen Sie von uns die Baubeschreibung um sich über Deteils informieren zu können.
Wir weisen darauf hin, dass zwischen dem Vermittler und dem zu vermittelnden Dritten ein familiäres oder wirtschaftliches Naheverhältnis besteht.
Der Vermittler ist als Doppelmakler tätig.
Infrastruktur / Entfernungen
Gesundheit
Arzt <500m
Apotheke <500m
Klinik <2.500m
Krankenhaus <3.500m
Kinder & Schulen
Schule <500m
Kindergarten <1.000m
Universität <2.000m
Höhere Schule <1.500m
Nahversorgung
Supermarkt <500m
Bäckerei <500m
Einkaufszentrum <500m
Sonstige
Geldautomat <500m
Bank <500m
Post <500m
Polizei <1.000m
Verkehr
Bus <500m
U-Bahn <500m
Straßenbahn <500m
Bahnhof <500m
Autobahnanschluss <2.000m
Angaben Entfernung Luftlinie / Quelle: OpenStreetMap
Eckdaten
| Kaufpreis: | 330.900,00 € |
| Fläche: | 54,51 m² |
| Zimmer: | 1,50 |
Basisdaten zur Immobilie
| Objektnr: | 1763 |
| Art: | Wohnung |
| Land: | Österreich |
| Baujahr: | 2025 |
| Zustand: | Erstbezug |
| Alter: | Neubau |
| Kaufpreis: | 330.900,00 € |
| Kaufpreis / m²: | 6.070,45 € |
| Provision: | 11.912,40 € inkl. 20% USt. |
| Betriebskosten: | 97,45 € |
| MwSt Gesamt: | 11,51 € |
| Wohnfläche: | 54,51 m² |
| Zimmer: | 1,50 |
| Bäder: | 1 |
| WC: | 1 |
| Heizwärmebedarf: | B 27,30 kWh/m²a |
| fGEE: | A+ 0,68 |
Ausstattung
Fliesen, Parkettboden, Fußbodenheizung, Zentralheizung, Personenaufzug, Badewanne
Internet und TV
Information zur Internet und TV Versorgung hier
Ihre persönliche Beratung
Ing. Richard Gstettner
AOM Verwaltung & Vertrieb GmbH
office@rg3-immo.at
0676 3121180
