DIPLOMATENVIERTEL: Prachtvolle Residenz in der Marokkanergasse
Wohnung
- Etage,
1030
Wien,Landstraße
Lage der Immobilie
Traungasse, Marokkanergasse, Akademietheater. Stadtpark, U4, Schwarzenbergplatz, HeumarktBeschreibung der Immobilie
Exklusiver Erstbezug nach Sanierung: Herrliche Altbau-Residenz direkt beim Stadtpark – unbefristet mieten
Wir freuen uns, in einer der begehrtesten Wohnlagen des 3. Bezirks, mitten im Botschaftsviertel in der Marokkanergasse 3 in 1030 Wien, eine traumhafte Altbauwohnung anbieten zu können.
Es handelt sich um einen Erstbezug nach aufwändiger Generalsanierung, die weit über ein normales Maß hinausgeht und die Ausstattung ist einfach umwerfend.
Die repräsentative Wohnung liegt in einer schönen Eckliegenschaft und bietet eine großzügige Wohnfläche von 160 m². Sie besticht durch eine exzellente, weitläufige Aufteilung und ist schön sonnig.
Das Haus wurde im Jahr 1817 erbaut und steht unter Denkmalschutz. Den fehlenden Lift kann man leicht verschmerzen, da angenehm flache Stiegen in den 1. Stock führen. Dieses Juwel erstrahlt nach der umfassenden Sanierung in völlig neuem Glanz – ideal für anspruchsvolle Mieter, die den Altbau-Charme in Kombination mit moderner Ausstattung schätzen.
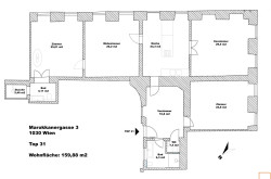
Raumaufteilung:
- Großzügiges Vorzimmer (16,8 m²)
- Gästezimmer (24,8 m²)
- eigenes Badezimmer ( 6,3 m²)
- Gäste-WC (1,42 m²)
- weitläufige Wohnküche (23,3 m²)
- Herrliches Esszimmer (29,5 m²)
- Repräsentatives Wohnzimmer (26,2 m²)
- Master-Schlafzimmer (24,8 m2) mit freistehender Badewanne sowie
- anschließendes Badezimmer mit Walk In-Dusche und WC (ca. 6 m²)
Ausstattung:
- Erstbezug nach Sanierung: Die gesamte Wohnung wurde äußerst aufwändig saniert
- Neuer, massiver Fischgrät-Parkettboden, geölt
- zwei äußerst schicke Badezimmer, eines davon mit Waschmaschinenanschluß
- revitalisierte Altbaukastenfenster (Isolierverglasung)
- Hoher, herrschaftlicher Altbau
- harmonische, moderne Farbgebung
- elektrisch steuerbare, innenliegende Rollos
- niedrige Parapethöhe mit schönem Blick in die Traungasse und in die Marokkanergasse
Lage und Infrastruktur:
Die Lage beim Stadtpark zeichnet sich vor allem durch das vielfältige Kulturangebot und die unmittelbare Nähe zum 1.Bezirk aus.
Zahlreiche beliebte Restaurants (Gmoa-Keller, Pizzerien), Theater (Akademietheater und Casino am Schwarzenbergplatz) und Cafés befinden sich in unmittelbarer Nähe.
Die Nahversorgung ist durch den Spar-Supermarkt um die Ecke und durch einen Billa gegeben.
Die Landstraßer Hauptstraße mit "The Mall" ist ebenfalls in wenigen Gehminuten erreichbar.
Öffentliche Verkehrsanbindung:
Die öffentliche Verkehrsanbindung ist hervorragend durch die unmittelbare Nähe zum Stadtpark:
- U4 Station Stadtpark (in ca. 5 Gehminuten zu erreichen)
- Station Schwarzenbergplatz: Straßenbahnlinien D, 71 und 2 (in ca. 8Gehminuten zu erreichen)
Parken:
folgende Parkgaragen in der unmittelbaren Nähe stehen mit Dauerparkplätzen zur Verfügung:
Intercontinental-Garage:http://www.parkeninwien.at/garage-61-34.html
Modenapark-Garage:http://www.parkeninwien.at/garage-41-35.html
Garage Schwarzenbergplatz:http://www.parkeninwien.at/garage-3-246.html
Es ist uns ein Anliegen, Sie mit sämtlichen Informationen zu versorgen, die für Sie sinnvoll und nützlich sein könnten. Jeder hat aber andere Prioritäten. Sollten Sie zu einem bestimmten Thema mehr Informationen wünschen, übermitteln wir diese gerne oder recherchieren für Sie!
Wir freuen uns darauf, Ihnen diese außergewöhnliche Immobilie persönlich zeigen zu können!
Elisabeth Rohr &
Ihr Team von Elisabeth Rohr Real Estate
Hinweis gemäß Energieausweisvorlagegesetz: Ein Energieausweis wurde vom Eigentümer bzw. Verkäufer, nach unserer Aufklärung über die generell geltende Vorlagepflicht, sowie Aufforderung zu seiner Erstellung noch nicht vorgelegt. Daher gilt zumindest eine dem Alter und der Art des Gebäudes entsprechende Gesamtenergieeffizienz als vereinbart. Wir übernehmen keinerlei Gewähr oder Haftung für die tatsächliche Energieeffizienz der angebotenen Immobilie.
Wir weisen darauf hin, dass zwischen dem Vermittler und dem zu vermittelnden Dritten ein familiäres oder wirtschaftliches Naheverhältnis besteht.
Der Immobilienmakler erklärt, dass er – entgegen dem in der Immobilienwirtschaft üblichen Geschäftsgebrauch des Doppelmaklers – einseitig nur für den Vermieter tätig ist.
Infrastruktur / Entfernungen
Gesundheit
Arzt <500m
Apotheke <500m
Klinik <500m
Krankenhaus <1.000m
Kinder & Schulen
Schule <500m
Kindergarten <500m
Universität <500m
Höhere Schule <1.000m
Nahversorgung
Supermarkt <500m
Bäckerei <500m
Einkaufszentrum <1.000m
Sonstige
Geldautomat <500m
Bank <500m
Post <500m
Polizei <500m
Verkehr
Bus <500m
U-Bahn <500m
Straßenbahn <500m
Bahnhof <500m
Autobahnanschluss <3.000m
Angaben Entfernung Luftlinie / Quelle: OpenStreetMap
Eckdaten
| Gesamtmiete: | 3.646,34 € |
| Fläche: | 160,00 m² |
| Zimmer: | 4,50 |
Basisdaten zur Immobilie
| Objektnr: | 583446 |
| Art: | Wohnung - Etage |
| Land: | Österreich |
| Baujahr: | 1817 |
| Zustand: | Erstbezug |
| Möbliert: | Teil |
| Alter: | Altbau |
| Gesamtmiete: | 3.646,34 € |
| Kaltmiete (netto): | 2.880,00 € |
| Kaltmiete: | 3.314,85 € |
| Provision: | Gemäß Erstauftraggeberprinzip bezahlt der Abgeber die Provision. |
| Betriebskosten: | 434,85 € |
| MwSt Gesamt: | 331,49 € |
| Wohnfläche: | 160,00 m² |
| Zimmer: | 4,50 |
| Bäder: | 2 |
| WC: | 2 |
Ausstattung
Parkett, Fliesen, Gas, Etagenheizung, Fußbodenheizung, Wohnküche / offene Küche, Bad mit Fenster, Badewanne, Dusche, Kabel/Satelliten-TV
Internet und TV
Information zur Internet und TV Versorgung hier
Ihre persönliche Beratung
Elisabeth Rohr-de Wolf
Elisabeth Rohr Real Estate e.U.
rohr@rohr-real-estate.com
+43 699 15853663
+4369915853663
