Beschreibung der Immobilie
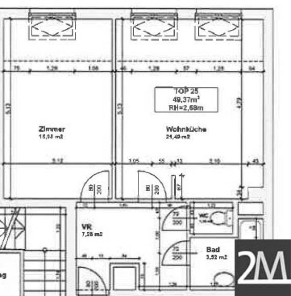
Zur Vermietung gelangt eine 2-Zimmer-Wohnung in der Herndlgasse unweit vom Reumannplatz mit einer Wohnfläche von rd. 49m². Die Wohnung liegt in einem älteren Neubau im 10. Bezirk in der Herndlgasse unweit vom Reumannplatz und wird auf 5 Jahre befristet vermietet. Eine Videotour durch die Wohnung steht auf der Plattform zur Verfügung und kann bei Bedarf auch gerne zugeschickt werden.
WICHTIG: Bitte beachten Sie die Bonitätsvorgaben des Eigentümers, bevor Sie eine Anfrage stellen.
Die wichtigsten Infos zur Wohnung im Überblick:
- Hofseitiger Wohnbereich mit moderner Einbauküche
- Hofseitiges Schlafzimmer
- Badezimmer mit Badewanne und Handwaschbecken sowie separates WC
- Kellerabteil vorhanden
- Zentralheizung
- Zustand: Malerei weist Abnützungen auf, ansonsten guter, moderner Zustand
- Bonität: Haushaltseinkommen mind. 2.350€ netto/Monat (über die Gehaltszettel der letzten drei Monate nachzuweisen), Bürgschaft möglich
Die Lage der Wohnung ist gut. Supermärkte, Restaurants und Geschäfte des täglichen Bedarfs sind in der unmittelbaren Umgebung vorhanden. Die Anbindung an den öffentlichen Nahverkehr ist durch die nahe gelegenen U-Bahn-Stationen Keplerplatz und Reumannplatz sowie der Straßenbahnlinie 6 gut gegeben. Auch mit dem Auto sind Sie durch die Nähe zum Gürtel sowie zum Verteilerkreis Favoriten gut an übergeordnete Verkehrswege angebunden.
Für weitere Auskünfte sowie eine Besichtigung stehe ich Ihnen jederzeit gerne zur Verfügung.
Mathias Mesaric, MA
2M Immobilien e.U.
Mobil: 0650 80 22 435
Mail: mm@2m-immobilien.at
Hinweis:
Es wird festgehalten, dass die Firma 2M Immobilien e.U. nicht als Doppelmakler, sondern nur einseitig für den Vermieter tätig ist. Nähere Informationen entnehmen Sie bitte dem beiliegenden Informationsblatt.
Wir weisen darauf hin, dass zwischen dem Vermittler und dem zu vermittelnden Dritten ein familiäres oder wirtschaftliches Naheverhältnis besteht.
Der Immobilienmakler erklärt, dass er – entgegen dem in der Immobilienwirtschaft üblichen Geschäftsgebrauch des Doppelmaklers – einseitig nur für den Vermieter tätig ist.
Infrastruktur / Entfernungen
Gesundheit
Arzt <250m
Apotheke <250m
Klinik <750m
Krankenhaus <2.000m
Kinder & Schulen
Schule <250m
Kindergarten <250m
Universität <750m
Höhere Schule <2.250m
Nahversorgung
Supermarkt <250m
Bäckerei <250m
Einkaufszentrum <750m
Sonstige
Geldautomat <500m
Bank <500m
Post <750m
Polizei <500m
Verkehr
Bus <250m
U-Bahn <500m
Straßenbahn <500m
Bahnhof <500m
Autobahnanschluss <1.500m
Angaben Entfernung Luftlinie / Quelle: OpenStreetMap
Eckdaten
| Gesamtmiete: | 939,33 € |
| Fläche: | 49,37 m² |
| Zimmer: | 2 |
Basisdaten zur Immobilie
| Objektnr: | 1771 |
| Art: | Wohnung |
| Land: | Österreich |
| Alter: | Neubau |
| Gesamtmiete: | 939,33 € |
| Kaltmiete (netto): | 690,00 € |
| Kaltmiete: | 853,94 € |
| Provision: | Gemäß Erstauftraggeberprinzip bezahlt der Abgeber die Provision. |
| Betriebskosten: | 163,94 € |
| MwSt Gesamt: | 85,39 € |
| Wohnfläche: | 49,37 m² |
| Zimmer: | 2 |
| Bäder: | 1 |
| WC: | 1 |
| Heizwärmebedarf: | B 43,70 kWh/m²a |
Ausstattung
Fliesen, Parkett, Zentralheizung, Wohnküche / offene Küche, Personenaufzug, Badewanne
Internet und TV
Information zur Internet und TV Versorgung hier
Ihre persönliche Beratung
Mathias Mesaric, MA
2M Immobilien e.U.
mm@2m-immobilien.at
+43 650 8022435
