Bis Ende 2026 befristet vermietetes Gründerzeit-Seitenflügel-Zinshaus mit bewilligtem Ausbau und Dachgeschoss-Ausbau
Zinshaus Renditeobjekt
,
1160
Wien
Beschreibung der Immobilie
Zum sofortigen Verkauf kommt ein zweigeschossiges Gründerzeit-Seitenflügel-Zinshaus in einer verkehrsberuhigten Seitengasse in guter Lage des Wiener Gemeindebezirks Ottakring.
Auf einer Grundstücksfläche von ca. 271 m² umfasst das Zinshaus derzeit eine Wohnfläche von ca. 310,72 m². Die Liegenschaft ist bis Ende 2025 befristet vermietet.
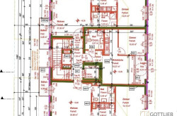
Für den Ausbau des Rohdachbodens liegt bereits eine Baubewilligung vor.
Eine Baugenehmigung zur Abtragung der bestehenden Dachkonstruktion und den Ausbau des Dachgeschosses sieht eine Aufstockung um zwei Festgeschosse - zweiter und dritter Stock - vor, welche zusammen mit dem ersten Obergeschoss insgesamt acht neue Wohneinheiten ermöglicht. Der Ausbau von zwei Dachgeschossen sieht weitere drei Etagenwohnungen vor. Durch den Um- und Ausbau ergibt sich eine Wohnnutzfläche von gesamt ca. 730,86 m². Alle Wohnungen sind entweder mit Balkonen, Terrassen von gesamt ca. 55,35 m² oder Loggien im Umfang von insgesamt ca. 14,07 m² ausgestattet.
Im Erdgeschoss ist die Errichtung von Büroräumlichkeiten geplant.
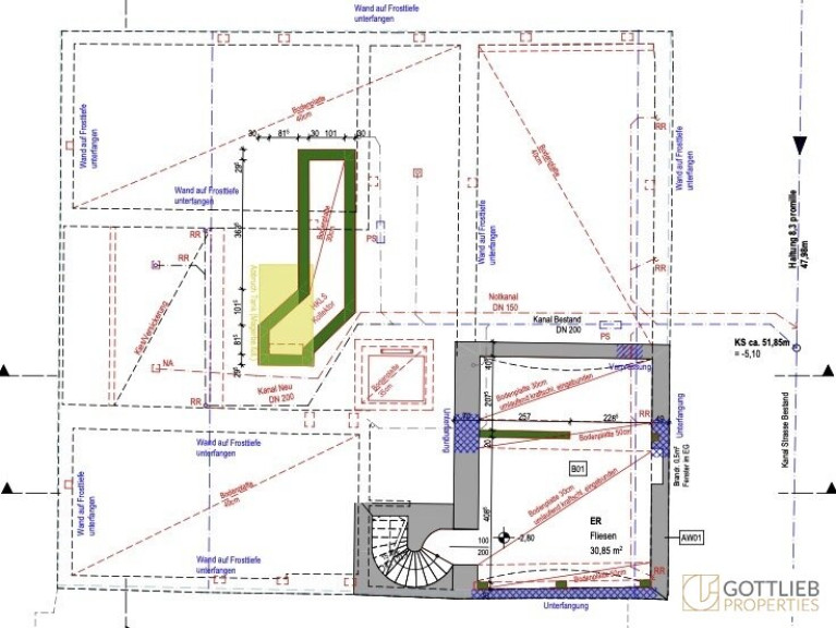
Weiters können laut Einreichplan ein neues, barrierefreies Treppenhaus im Innenhof mit Personenlift vom Erdgeschoss bis ins erste Dachgeschoss sowie ein Kinderwagen- und Fahrradabstellraum errichtet werden.
Eine Photovoltaikanlage mit 18 Modulen auf dem Dach ist ebenso geplant.
Der Bestand
+ zwei Geschosse
+ Kellergeschoss
+ bestandsfrei per Ende 2026, davor nach Vereinbarung
Die Flächenwidmung
+ gemischte Baugebiete
+ Bauklasse III
+ geschlossene Bauweise
+ Beschränkung der Gebäudehöhe auf 14 m
Der Ertrag
Laut aktueller Zinsliste beträgt der Jahreszinsertrag derzeit € 38.292,96 netto p.a.
Das Potential
+ behördlich genehmigte Baubewilligung
+ Abtragung der bestehenden Dachkonstruktion
+ Errichtung eines zweiten und dritten Festgeschosses
+ Aufstockung um zwei Dachgeschosse
+ Errichtung von elf Wohneinheiten sowie ein Büro mit insgesamt ca. 731 m² Nutzfläche
+ straßen- und hofseitig gelegene Terrassen, Balkone und Loggien mit einer Größe von ca. 69 m²
+ Errichtung eines Personenliftes
+ Kinderwagen- und Fahrradabstellraum
+ Müllraum
+ Photovoltaikanlage
Lage
Der 16. Wiener Gemeindebezirk Ottakring liegt westlich der Wiener Innenstadt und erstreckt sich von den Ausläufern des Wienerwaldes bis hin zum Lerchenfelder Gürtel. Seit einigen Jahren floriert der Bezirk und entwickelt sich immer mehr zu einer äußerst beliebten und attraktiven Wohngegend.
Gründerzeithäuser neben Gemeindebauanlagen und Villenvierteln oder alteingesessenen Industriebetrieben, wie z.B. der Delikatessenhandel der Firma Staud, die Kaffeerösterei Julius Meinl, die Firma Manner sowie die Ottakringer Brauerei - um nur einige zu nennen - ebenso die Multikulturalität dieses Bezirks machen den unvergleichlichen Charme von Ottakring aus.
Sämtliche Schulen und Kindergärten, Restaurants, Cafés, Bars, sowie Geschäfte und Einrichtungen des täglichen Bedarfs befinden sich in Gehnähe. Die Ottakringer Straße sowie die Wattgasse, der nahegelegene Brunnen- und Yppenmarkt - mit dem vor einiger Zeit neu gestaltetem Yppenplatz - laden zum Verweilen und Einkaufen ein.
Erholung und Freizeitgestaltung findet man in den kleinen Parkanlagen ebenso wie im Wienerwald mit der Jubiläumswarte, dem nahe gelegenen Wilhelminenberg mit seinem Schloss Wilhelminenberg, welches inmitten von Weingärten liegt und von dem aus man einen wunderbaren Blick über Wien genießt. Das beinahe einhundertjährige Kongressbad mit seiner unverkennbaren Architektur, die Tschauner-Bühne oder kleine, alteingesessene Heurigen, wie z.B. die 10er-Marie bieten weitere Freizeitmöglichkeiten in Ottakring.
Infrastruktur
+ U-Bahn-Linien U3 und U6
+ Autobus-Linien 10A, 45A, 46A und 48A
+ Straßenbahn-Linien 2, 9, 10, 44 und 46
+ Schnellbahn S45
Sonstiges
Wir ersuchen um Verständnis, dass wir aufgrund unserer Nachweispflicht gegenüber dem Eigentümer nur Anfragen mit vollständigen Kontaktdaten (Name, Adresse, Mobilnummer, Email) bearbeiten können.
Hinweis gemäß Energieausweisvorlagegesetz: Ein Energieausweis wurde vom Eigentümer bzw. Verkäufer, nach unserer Aufklärung über die generell geltende Vorlagepflicht, sowie Aufforderung zu seiner Erstellung noch nicht vorgelegt. Daher gilt zumindest eine dem Alter und der Art des Gebäudes entsprechende Gesamtenergieeffizienz als vereinbart. Wir übernehmen keinerlei Gewähr oder Haftung für die tatsächliche Energieeffizienz der angebotenen Immobilie.
Wir weisen darauf hin, dass zwischen dem Vermittler und dem zu vermittelnden Dritten ein familiäres oder wirtschaftliches Naheverhältnis besteht.
Infrastruktur / Entfernungen
Gesundheit
Arzt <500m
Apotheke <500m
Klinik <500m
Krankenhaus <1.000m
Kinder & Schulen
Schule <500m
Kindergarten <500m
Universität <1.000m
Höhere Schule <1.000m
Nahversorgung
Supermarkt <500m
Bäckerei <500m
Einkaufszentrum <1.500m
Sonstige
Geldautomat <500m
Bank <500m
Post <500m
Polizei <500m
Verkehr
Bus <500m
U-Bahn <1.000m
Straßenbahn <500m
Bahnhof <1.000m
Autobahnanschluss <4.500m
Angaben Entfernung Luftlinie / Quelle: OpenStreetMap
Eckdaten
| Kaufpreis: | 1.295.000,00 € |
| Fläche: | 310,72 m² |
Basisdaten zur Immobilie
| Objektnr: | 3957 |
| Art: | Zinshaus Renditeobjekt |
| Land: | Österreich |
| Zustand: | Projektiert |
| Alter: | Altbau |
| Kaufpreis: | 1.295.000,00 € |
| Kaufpreis / m²: | auf Anfrage |
| Provision: | 3% des Kaufpreises zzgl. 20% USt. |
| Wohnfläche: | 310,72 m² |
| Nutzfläche: | 310,72 m² |
| Grundstücksfl.: | 271,00 m² |
Internet und TV
Information zur Internet und TV Versorgung hier
Ihre persönliche Beratung
Desirée Gottlieb
Gottlieb Properties Immobilientreuhand GmbH
desiree.gottlieb@gottliebproperties.at
+ 43 699 14702557
