Donaustadt - Am langen Felde
Wohnung
,
1220
Wien
Lage der Immobilie
Die fertiggestellten Eigentumswohnungen Am Langen Felde 24 liegen in ausgezeichneter Lage der Donaustadt – nur wenige Minuten von der U1 Kagraner Platz entfernt. Die Umgebung verbindet urbanen Komfort mit naturnaher Erholung: Alte Donau, Lobau, die Blumengärten Hirschstetten und der Badeteich Hirschstetten bieten zahlreiche Freizeitmöglichkeiten im Grünen. Sämtliche Nahversorger, Schulen, Kindergärten und Ärzte sind fußläufig erreichbar. Das nahegelegene Donauzentrum und die hervorragende öffentliche Anbindung sorgen für beste Infrastruktur. Der 22. Bezirk zählt zu den aufstrebendsten Wohngegenden Wiens – eine Wohnung hier steht für hohe Lebensqualität und eine wertbeständige Investition.Beschreibung der Immobilie
Im 22. Wiener Gemeindebezirk, nahe der U1-Station Kagraner Platz, stehen bereits fertiggestellte Eigentumswohnungen zum Einzug bereit. Die Wohnhausanlage mit vier Stiegen und Tiefgarage überzeugt durch eine erstklassige, energieeffiziente Bauweise mit Fernwärme, Photovoltaikanlage und Fußbodenheizung – ideal für alle, die nachhaltig und zukunftssicher wohnen möchten.
Jede Wohnung verfügt über eine private Freifläche – sei es Garten, Balkon, Loggia oder Terrasse – und bietet durchdachte Grundrisse sowie hochwertige Ausstattung: Echtholzparkett, moderne Fliesen, eine voll ausgestattete Einbauküche und ein stilvoll ausgestattetes Badezimmer sind bereits im Kaufpreis enthalten.
Die Lage verbindet urbanen Komfort mit naturnaher Lebensqualität: Alte Donau, Lobau, Blumengärten und Badeteich Hirschstetten sind ebenso schnell erreichbar wie das Donauzentrum, Nahversorger, Schulen und medizinische Versorgung.
Beziehen Sie jetzt Ihr neues Zuhause in der Donaustadt – bezugsfertig, modern und wertbeständig.
Für eine Besichtigung steht Ihnen Herr Martin Melcher (0677 617 324 39)
gerne zur Verfügung.
Der Vermittler ist als Doppelmakler tätig.
Infrastruktur / Entfernungen
Gesundheit
Arzt <500m
Apotheke <500m
Klinik <2.500m
Krankenhaus <3.500m
Kinder & Schulen
Schule <500m
Kindergarten <500m
Universität <1.500m
Höhere Schule <500m
Nahversorgung
Supermarkt <500m
Bäckerei <500m
Einkaufszentrum <1.500m
Sonstige
Geldautomat <500m
Bank <500m
Post <500m
Polizei <1.500m
Verkehr
Bus <500m
U-Bahn <500m
Straßenbahn <500m
Bahnhof <500m
Autobahnanschluss <2.000m
Angaben Entfernung Luftlinie / Quelle: OpenStreetMap
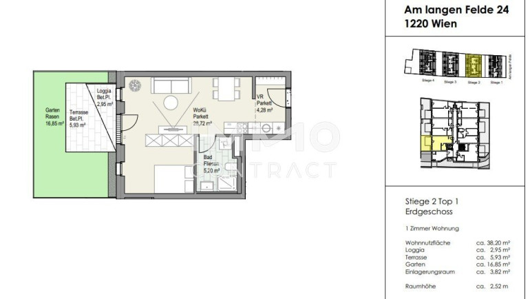
Eckdaten
| Kaufpreis: | 295.300,00 € |
| Fläche: | 38,20 m² |
| Zimmer: | 1 |
Basisdaten zur Immobilie
| Objektnr: | 1939/162480 |
| Art: | Wohnung |
| Land: | Österreich |
| Baujahr: | 2025 |
| Zustand: | Erstbezug |
| Kaufpreis: | 295.300,00 € |
| Wohnfläche: | 38,20 m² |
| Zimmer: | 1 |
| Bäder: | 1 |
| Terrassen: | 1 |
| Garten: | 16,85 m² |
| Heizwärmebedarf: | A 24,40 kWh/m²a |
| fGEE: | 0,71 |
Ausstattung
Fußbodenheizung
Internet und TV
Information zur Internet und TV Versorgung hier
Ihre persönliche Beratung
Martin Melcher
IMMOcontract Immobilien Vermittlung GmbH
M.Melcher@IMMOcontract.at
+43 677 6173 2439
+43 677 6173 2439
