Lage der Immobilie
Haymogasse, Nähe Maurer Hauptplatz (700 Meter), Maurer Wald (1,3 km)Beschreibung der Immobilie
Willkommen in Ihrem neuen Zuhause im charmanten Wien-Mauer (1230 Wien).
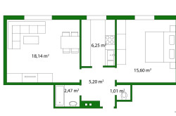
Diese gut aufgeteilte, sanierungsbedürftige Wohnung in der ersten 1. Stock (durch die Bauweise faktisch 2. Stock) bietet Ihnen die perfekte Gelegenheit, Ihre Wohnträume zu verwirklichen. Mit einer Fläche von 48,67 m² und zwei lichtdurchfluteten Zimmern (zzgl. eigener Küche) ist diese Immobilie ideal für Singles, Paare oder als Kapitalanlage.
Der Kaufpreis von nur € 175.000,- macht diese Wohnung zu einer attraktiven Option im wienerischen Immobilienmarkt. Obwohl die Wohnung renovierungsbedürftig ist, haben Sie die Möglichkeit, Ihr persönliches Wohnkonzept zu entwickeln und die Räume ganz nach Ihren Vorstellungen zu gestalten. Die Massivbauweise sorgt für eine solide Grundlage, während die Doppel- und Mehrfachverglasung für eine angenehme Wohnatmosphäre sorgt.
Ein ganz besonderes Highlight ist der Ausblick auf die grüne Umgebung. Stellen Sie sich vor, wie Sie nach einem langen Tag in Ihre Oase der Ruhe zurückkehren und den Blick ins Grüne genießen können. Der harmonische Grünblick wird Sie inspirieren und zu entspannenden Momenten einladen.
Die Lage dieser Wohnung könnte nicht besser sein. Sie sind hervorragend an das öffentliche Verkehrsnetz angebunden – Bus- und Straßenbahnhaltestellen sind nur wenige Gehminuten entfernt. So erreichen Sie schnell und bequem alle Hotspots der Stadt.
Darüber hinaus profitieren Sie von einer Vielzahl an Annehmlichkeiten in direkter Umgebung: Ärzte, Apotheken, Schulen und Kindergärten sind nur einen kurzen Spaziergang entfernt. Für den täglichen Bedarf stehen Ihnen Supermärkte und eine Bäckerei zur Verfügung, sodass Sie alles Notwendige schnell und unkompliziert erreichen können.
Nutzen Sie diese Gelegenheit, um eine Immobilie mit großem Potenzial zu erwerben. Gestalten Sie Ihre Traumwohnung in einer der lebenswertesten Städte Europas, wo urbanes Leben und naturnahe Erholung in perfekter Harmonie verschmelzen.
Zögern Sie nicht und vereinbaren Sie einen Besichtigungstermin – Ihre neue Wohnung wartet auf Sie!
Haben Sie Fragen oder Interesse an dieser Wohnung? Dann kontaktieren Sie uns, wir freuen uns auf Ihre Anfrage:
hierwohnich Immobilien GmbH
Ansprechpartner:
Wolfram Wassermann
Telefon: 0699 1965 3726
E-Mail: wassermann@hierwohnich.at
Der Vermittler ist als Doppelmakler tätig.
Infrastruktur / Entfernungen
Gesundheit
Arzt <325m
Apotheke <600m
Klinik <1.625m
Krankenhaus <1.850m
Kinder & Schulen
Schule <525m
Kindergarten <575m
Universität <4.325m
Höhere Schule <5.850m
Nahversorgung
Supermarkt <325m
Bäckerei <525m
Einkaufszentrum <1.075m
Sonstige
Geldautomat <550m
Bank <550m
Post <700m
Polizei <1.375m
Verkehr
Bus <225m
U-Bahn <3.275m
Straßenbahn <250m
Bahnhof <1.325m
Autobahnanschluss <3.625m
Angaben Entfernung Luftlinie / Quelle: OpenStreetMap
Eckdaten
| Kaufpreis: | 175.000,00 € |
| Fläche: | 48,67 m² |
| Zimmer: | 2 |
Basisdaten zur Immobilie
| Objektnr: | 18711 |
| Art: | Wohnung |
| Land: | Österreich |
| Baujahr: | 1960 |
| Zustand: | Teil_vollrenovierungsbed |
| Alter: | Neubau |
| Kaufpreis: | 175.000,00 € |
| Betriebskosten: | 106,30 € |
| MwSt Gesamt: | 10,63 € |
| Wohnfläche: | 48,67 m² |
| Zimmer: | 2 |
| Bäder: | 1 |
| WC: | 1 |
| Keller: | 4,00 m² |
| Heizwärmebedarf: | 62,40 kWh/m²a |
| fGEE: | 1,35 |
Ausstattung
Gas, Heizofen
Internet und TV
Information zur Internet und TV Versorgung hier
Ihre persönliche Beratung
Wolfram Wassermann
hierwohnich Immobilien GmbH
wassermann@hierwohnich.at
+43 699 1965 3726
