Beschreibung der Immobilie
In der Grellgasse 7 im 21. Wiener Gemeindebezirk Floridsdorf wurde ein familienfreundliches Wohnbauprojekt in nachhaltiger Niedrigenergiebauweise realisiert, das Urbanität mit dem begehrten „Wohnen im Grünen“ verbindet.
Projektdetails
Insgesamt umfasst das Projekt 4 Baukörper, die barrierefrei erschlossen sind. Jede Wohnung ist barrierefrei durch den Aufzug der jeweiligen Stiege zu erreichen.
Errichtet wurden 110 freifinanzierte Wohnungen mit zwei bis vier Zimmer, von denen jede über individuelle Freiräume (Balkon, Terrasse oder Garten) für den besonderen Wohlfühlfaktor verfügt. Naturnahe Atmosphäre wird durch die Einbindung der Wohnhausanlage in die umliegenden Grünflächen gewährleistet.
Zusätzliches Raumangebot schaffen die Einlagerungsräume, die jeder Wohnung zugeordnet sind sowie die Fahrradräume im Kellergeschoss und die Kinderwagenräume im Erdgeschoss.
Umgebung und Freizeit
In einer Entfernung von nicht einmal 5 Gehminuten befinden sich Filialen der Nahversorger Billa und Hofer. Eine Apotheke ist nur rund 300 m entfernt.
Die SCN ist nur knappe 10 Fahrminuten mit dem Auto entfernt.
Das Schul- und Kindergartenangebot ist ebenfalls sehr vielfältig. Ein Bundesreal- und Bundesrealoberstufengymnasium lässt sich in weniger als 10 Minuten Geh- oder 3 Minuten Fahrzeit mit dem Linienbus 32A erreichen. Eine Volksschule sowie ein Kindergarten und ein Hort sind in der näheren Umgebung situiert.
Der Eissalon Dolce Vita sowie einige Restaurants wie beispielsweise die Pizzeria Lignano sind fußläufig zu erreichen. Besonders erwähnenswert ist darüber hinaus die Nähe zur bekannten Heurigengegend Stammersdorf.
Das Freizeitangebot in der nahen Umgebung ist sehr variantenreich. Beispielhaft sind der Golfclub Marco Polo sowie der Josef-Grössing-Park, eine großzügige familienfreundliche Freizeitanlage und das Naherholungsgebiet Marchfeldkanal, das großartige Möglichkeiten zum Spazieren, Laufen und Fahrradfahren bietet, erwähnt.
Verkehrslage
Die Verkehrslage ist sehr ansprechend. Der Linienbus 32A hält fast direkt neben der Haustüre. Durch diesen ist die U1 Station Leopoldau, die eine direkte Anbindung zum Stadtzentrum von Wien gewährleistet, in einigen Minuten erreichbar.
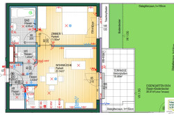
Raumaufteilung:
- offener Vorraum
- 1 praktischer Abstellraum
- 1 Badezimmer mit Badewanne, Waschbecken und WM-Anschluss
- 1 separates WC
- 1 gemütliche Wohnküche (mit einer eingerichteten Marken-Einbauküche)
- 1 heimeliges Schlafzimmer
- 1 bezaubernde Terrasse
- 1 traumhafter Garten
Ausstattungshighlights:
- moderne Architektur
- Parkettboden
- Fußbodenheizung
- Kunststoff-Alu-Fenster und Fenstertüren mit 2-Scheiben-Isolierverglasung
- elektrisch bedienbare Außenrollläden
- einbruchshemmende WK III Wohnungseingangstüren
- gasbefeuerte Brennwert-Heizzentrale
- Solaranlage (zur Unterstützung der Warmwasseraufbereitung)
- Gemeinschafts-SAT-Anlage
Optional ist die Anmietung eines Stellplatzes möglich!
Haben Sie Fragen zu dieser Wohnung? Dann kontaktieren Sie uns, wir freuen uns auf Ihre Anfrage:
hierwohnich Immobilien GmbH, Wollzeile 17/22, 1010 Wien
Ansprechpartner:
Herr Wolfram Wassermann
Telefon: +43 699 1965 3726
E-Mail: wassermann@hierwohnich.at
Der Immobilienmakler erklärt, dass er – entgegen dem in der Immobilienwirtschaft üblichen Geschäftsgebrauch des Doppelmaklers – einseitig nur für den Vermieter tätig ist.
Infrastruktur / Entfernungen
Gesundheit
Arzt <2.000m
Apotheke <1.500m
Klinik <3.000m
Krankenhaus <1.500m
Kinder & Schulen
Schule <1.000m
Kindergarten <500m
Universität <1.000m
Höhere Schule <4.500m
Nahversorgung
Supermarkt <500m
Bäckerei <1.500m
Einkaufszentrum <2.000m
Sonstige
Bank <2.000m
Geldautomat <2.000m
Post <2.000m
Polizei <2.000m
Verkehr
Bus <500m
U-Bahn <2.000m
Straßenbahn <1.500m
Bahnhof <1.500m
Autobahnanschluss <3.500m
Angaben Entfernung Luftlinie / Quelle: OpenStreetMap
Eckdaten
| Gesamtmiete: | 990,00 € |
| Fläche: | 43,22 m² |
| Zimmer: | 2 |
Basisdaten zur Immobilie
| Objektnr: | 15286 |
| Art: | Wohnung |
| Land: | Österreich |
| Baujahr: | 2018 |
| Zustand: | Gepflegt |
| Alter: | Neubau |
| Gesamtmiete: | 990,00 € |
| Kaltmiete (netto): | 900,00 € |
| Kaltmiete: | 900,00 € |
| Provision: | Gemäß Erstauftraggeberprinzip bezahlt der Abgeber die Provision. |
| MwSt Gesamt: | 90,00 € |
| Wohnfläche: | 43,22 m² |
| Zimmer: | 2 |
| Bäder: | 1 |
| WC: | 1 |
| Terrassen: | 1 |
| Garten: | 30,51 m² |
| Keller: | 4,04 m² |
| Heizwärmebedarf: | B 32,98 kWh/m²a |
| fGEE: | A 0,81 |
Ausstattung
Fliesen, Parkett, Fußbodenheizung, Wohnküche / offene Küche, Personenaufzug, Badewanne
Internet und TV
Information zur Internet und TV Versorgung hier
Ihre persönliche Beratung
Wolfram Wassermann
hierwohnich Immobilien GmbH
wassermann@hierwohnich.at
+43 699 1965 3726
