Hofseitige Altbau-Wohnung | Top Lage direkt neben U-Bahn
Wohnung
- Etage,
1030
Wien
,
Hainburger Straße 47
Lage der Immobilie
Hainburg Straße 47 | 1030 Wien | 80 m zur U3 Station Kardinal-Nagl-Platz | PraterBeschreibung der Immobilie
IMPULS Immobilien bietet nachfolgende Wohnung ab sofort zum KAUF an:
Hofseitige Altbau-Wohnung in TOP Lage, direkt neben der U-Bahn
HERZLICH WILLKOMMEN ...
... in dieser schönen 2-Zimmer Altbau-Wohnung im zentral gelegenen und sehr beliebten 3. Wiener Gemeindebezirk.
DIE ECKDATEN
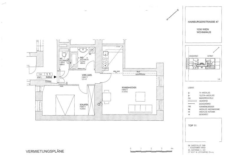
- 2-Zimmer Altbau-Wohnung im 1. Stock mit Lift
- ca. 55 m² Wohnfläche
- Vorraum
- sehr großer, gut geschnittener Wohnbereich mit offener Küche
- Bad mit Badewanne, Waschtisch und Platz für eine Waschmaschine
- separates WC mit Handwaschbecken
- gut geschnittenes Schlafzimmer
DIE WOHNUNG
Diese wunderschöne Altbau-Wohnung ist in einem guten Zustand.
Der Vorraum dieser Wohnung bietet viel Platz für eine Garderobe und zum Ankommen. Direkt bei der Eingangstüre befindet sich ein separates WC mit Handwaschbecken sowie das Badezimmer mit Waschtisch, Badewanne sowie Platz für eine Waschmaschine. Gegenüber befindet sich das Schlafzimmer mit ca. 15 m².
Die Wohnküche selbst ist mit ca. 27 m² groß, gut geschnitten und bietet einen Blick auf den wunderschönen Baumbestand.
Beheizt wird das Objekt mittels Fernwärme.
Die monatlichen Betriebskosten inkl. Umsatzsteuer betragen EUR 139,50, die Reparaturrücklage EUR 25,--; in Summe somit rd. EUR 165,--.
DAS WOHNHAUS & DIE LAGE
Die Wohnung befindet sich im 1. Lift-Stock in einem wunderschönen Wohnhaus aus der Jahrhundertwende. Das Haus ist in einem sehr gepflegten Zustand.
Die öffentliche Anbindung ist PERFEKT: Direkt neben dem Objekt befinden sich die U3-Station Kardinal-Nagl-Platz. Mit der U3 sind sie in nur 5 Minuten direkt am Stephansplatz in der Wiener Innenstadt.
Auch die Infrastruktur rund um das Objekt ist einmalig: Die Hainburger Straße selbst liegt zwischen Rochusmarkt und Kardinal-Nagl-Platz und ein besonders aufstrebendes und beliebtes Gebiet im Herzen von Wien. Zahlreiche Geschäfte, vielfältige Lokale und praktische Einkaufszentren ("Galleria" fußläufig oder 2 Stationen zu "The Mall" Wien Mitte) befinden sich in der Nähe des Objekts.
Auch Erholung an der frischen Luft und im Grünen ist in unmittelbarer Umgebung möglich: Beispielsweise lässt es sich am am Donaukanalradweg herrlich radeln und auch das große Prater Areal mit der Praterwiese oder der Praterallee sind in Windeseile erreichbar.
Mit dem Auto genießen Sie ebenfalls eine optimale Anbindung, die Tangente oder Flughafenautobahn befindet sich nur 4 Fahrminuten entfernt. Trotz der hervorragenden zentralen Lage, wird Ihre Ruhe durch keinen Durchszugsverkehr gestört, denn der Bereich rund um die Hainburger Straße ist eine verkehrsberuhigte Zone (Anrainer-Parkzone).
Alle Einrichtungen des täglichen Bedarfs (Supermarkt, Trafik, Restaurants, Ärzte...) sind in unmittelbarer Umgebung innerhalb weniger Minuten verfügbar!
INTERESSIERT?
Gerne stehen wir jederzeit für einen persönlichen Termin oder
unter office@impuls-immobilien.at bzw. 0650/8566764
für Rückfragen aller Art zur Verfügung!
WIR FREUEN UNS AUF IHRE ANFRAGE!
Wir weisen darauf hin, dass zwischen dem Vermittler und dem zu vermittelnden Dritten ein familiäres oder wirtschaftliches Naheverhältnis besteht.
Infrastruktur / Entfernungen
Gesundheit
Arzt <200m
Apotheke <200m
Klinik <75m
Krankenhaus <275m
Kinder & Schulen
Schule <175m
Kindergarten <150m
Universität <950m
Höhere Schule <425m
Nahversorgung
Supermarkt <75m
Bäckerei <75m
Einkaufszentrum <375m
Sonstige
Geldautomat <100m
Bank <100m
Post <100m
Polizei <350m
Verkehr
Bus <75m
U-Bahn <25m
Straßenbahn <600m
Bahnhof <50m
Autobahnanschluss <975m
Angaben Entfernung Luftlinie / Quelle: OpenStreetMap
Eckdaten
| Kaufpreis: | 346.000,00 € |
| Fläche: | 55,00 m² |
| Zimmer: | 2 |
Basisdaten zur Immobilie
| Objektnr: | 336 |
| Art: | Wohnung - Etage |
| Land: | Österreich |
| Baujahr: | 1900 |
| Zustand: | Gepflegt |
| Alter: | Altbau |
| Kaufpreis: | 346.000,00 € |
| Provision: | 3% des Kaufpreises zzgl. 20% USt. |
| Betriebskosten: | 126,77 € |
| MwSt Gesamt: | 12,68 € |
| Wohnfläche: | 55,00 m² |
| Zimmer: | 2 |
| Bäder: | 1 |
| WC: | 1 |
| Keller: | 3,00 m² |
| Heizwärmebedarf: | D 111,30 kWh/m²a |
| fGEE: | D 1,88 |
Ausstattung
Fliesen, Parkett, Fernwärme, Einbauküche, Personenaufzug, Badewanne
Internet und TV
Information zur Internet und TV Versorgung hier
Ihre persönliche Beratung
Mag. (FH) Markus Verner
IMPULS Immobilien
markus.verner@impuls-immobilien.at
+43 650 8566764
