MODERNES EINFAMILIENHAUS | Ziegelmassivbauweise | viel Platz, lichtdurchflutet & optimale Raumaufteilung | inkl. Stellplatz
Haus
- Einfamilienhaus,
1220
Wien
,
Telephonweg 352
Lage der Immobilie
Telephonweg 352 | 1220 Wien | Donaustadt | Katastralgemeinde Essling | Breitenleer StraßeBeschreibung der Immobilie
IMPULS Immobilien bietet nachfolgendes Objekt ab sofort zum KAUF an:
Ruhiges Einfamilien-Ziegelhaus mit herrlichem Garten und viel Platz im 22. Wiener Gemeindebezirk
HERZLICH WILLKOMMEN ...
... im beliebten 22. Wiener Gemeindebezirk und einem wunderschönen Neubau in Ziegelmassivbauweise, mit viel Liebe zum Detail geplant, modern und ruhig gelegen.
FACTBOX
- Ziegelmassivhaus
- ca. 188 m² Wohnfläche (EG, OG, KG)
- große, helle Wohnküche
- separates WC im EG
- 1 Zimmer mit Schrankraum im EG
- 3 weitere Zimmer im OG
- 2 Badezimmer im OG
- Abstellraum
- Terrasse
- attraktiver Garten
- Autoabstellplatz mit E-Anschluss
- Keller mit 2 großen Räumen
ÜBER DAS HAUS
Dieses Ziegel-Einfamilienhaus liegt in angenehmer Ruhelage am Telephonweg. Es Haus bietet viel Platz auf 3 Ebenen (EG, OG & KG) und verfügt über einen schönen, großen und gut geschnittenen Garten.
Das Haus ist mit Parkettböden ausgestattet und hat eine Fußbodenheizung (in allen 3 Etagen) mit Vaillant Luft-Wasser-Wärmepumpe. Die Balkon- und Terrassenböden sind in Lärchenholz ausgeführt.
- ERDGESCHOSS:
Durch die Eingangstüre gelangt man in einen offenen Vorraum. Rechter Hand ist eine separate Toilette mit Handwaschbecken situiert. Dahinter befindet sich ein ca. 13 m² großes Schlafzimmer mit anschließender Garderobe. Geradeaus geht es in den sehr großzügigen und hellen Wohnbereich. Dieser ist mit 38 m² optimal geschnitten. Er verfügt im hinteren Bereich über Platz für eine optisch etwas abgetrennte U-förmige Küche. Zwei Schiebetüren sorgen für viel Helligkeit, für ein lichtdurchflutetes Wohnen im Einklang mit der Natur. Sie führen auf die ca. 25 m² große Terrasse und öffnen den Wohnraum hin zum wunderschönen ca. 137 m² großen Garten. Dieser ist sehr gut geschnitten und bietet genug Platz um sich und seinen grünen Daumen auszutoben & die herrliche Ruhelage zu genießen.
Praktisch ist auch der neben dem Haus liegende private Autostellplatz mit E-Anschluss.
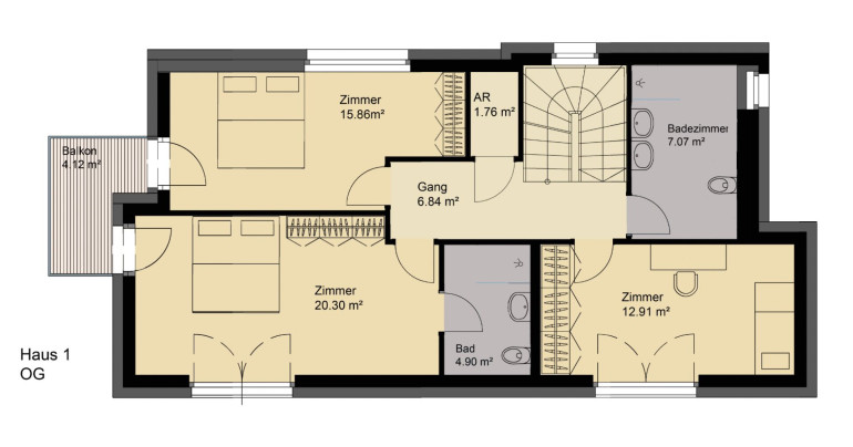
- 1. STOCK:
Neben der Eingangstüre führt eine Stiege in den 1. Stock. Dieses Geschoss bietet drei gut geschnittene Zimmer (ca. 13, 16 und 20 m²) und ein großzügiges Badezimmer mit riesiger, bodenebener Dusche, WC und Doppelwaschtisch sowie ein zum größten Zimmer zugehöriges Bath en suite mit bodenebener Dusche, WC und Waschtisch. Zwei Zimmer genießen außerdem den Zugang zu einem gemütlichen Balkon. Ein praktischer Abstellraum komplettiert das Raumangebot im oberen Stockwerk.
- KELLERGESCHOSS:
Das Kellergeschoss besteht aus zwei großen Lagerräumen inkl. Technik-/Heizraum und verfügt über 2,5 m Raumhöhe.
Ein weiteres Haus ist im hinteren Bereich des Grundstücks ebenfalls zu haben. Mit dem Kauf erwerben sie Wohnungseigentum am jeweiligen Haus und dessen Grundstücksanteil.
ZUR LAGE & ZUR INFRASTRUKTUR
Dieses schöne Objekt liegt im beliebten 22. Bezirk, in Essling, unweit der Breitenleer Straße.
Trotz der angenehmen Ruhelage genießen Sie eine gute Infrastrukur. In nur 8 Minuten erreichen Sie mit dem Auto die Auffahrt zur S2 (Wiener Nordrand Schnellstraße) die Sie in Windeseile zur Wiener Tangente und so in die Wiener City bringt. Das Einkaufszentrum "City Gate" liegt nur 15 Fahrminuten entfernt.
Radeln, Spazieren und Erholung sind abseits vom Lärm der Großstadt direkt vor der Haustüre möglich. In einem engen Radius um das Objekt befinden sich herrliche Naherholungsgebiete. Die Wiener Donauinsel erreichen Sie mit dem Auto in ca. einer Viertelstunde, und auch das Naturschutzgebiet Lobau liegt ganz in der Nähe. Vor der eigenen Haustüre lässt es sich ebenfalls herrlich die Seele baumeln lassen. Direkt an das Grundstück grenzt unbebautes Grünland. Feldwege laden zu Radausfahrten und Spaziergängen ein.
Auch öffentlich sind Sie gut angebunden. Nur eine Gehminute entfernt befindet sich die Station der Buslinie 89A, dieser bringt Sie in nur 15 Minuten zur U2-Station "Seestadt".
Alle Einrichtungen des täglichen Bedarfs sind innerhalb weniger Minuten erreichbar!
INTERESSIERT?
Gerne stehen wir jederzeit für einen persönlichen Termin oder Rückfragen aller Art
unter office@impuls-immobilien.atbzw. telefonisch unter 0650/8566764 zur Verfügung!
Wir weisen darauf hin, dass zwischen dem Vermittler und dem zu vermittelnden Dritten ein familiäres oder wirtschaftliches Naheverhältnis besteht.
Infrastruktur / Entfernungen
Gesundheit
Arzt <3.700m
Apotheke <4.225m
Klinik <4.400m
Krankenhaus <6.925m
Kinder & Schulen
Schule <2.750m
Kindergarten <3.750m
Universität <4.475m
Höhere Schule <4.575m
Nahversorgung
Supermarkt <2.725m
Bäckerei <2.975m
Einkaufszentrum <5.650m
Sonstige
Bank <4.500m
Geldautomat <4.200m
Post <4.475m
Polizei <4.625m
Verkehr
Bus <75m
U-Bahn <3.650m
Bahnhof <3.625m
Straßenbahn <3.650m
Autobahnanschluss <2.050m
Angaben Entfernung Luftlinie / Quelle: OpenStreetMap
Eckdaten
| Kaufpreis: | 765.000,00 € |
| Fläche: | 188,00 m² |
| Zimmer: | 5 |
Basisdaten zur Immobilie
| Objektnr: | 392 |
| Art: | Haus - Einfamilienhaus |
| Land: | Österreich |
| Baujahr: | 2024 |
| Zustand: | Erstbezug |
| Alter: | Neubau |
| Kaufpreis: | 765.000,00 € |
| Provision: | 3% des Kaufpreises zzgl. 20% USt. |
| Wohnfläche: | 188,00 m² |
| Zimmer: | 5 |
| Bäder: | 2 |
| WC: | 3 |
| Balkone: | 1 |
| Terrassen: | 1 |
| Stellplätze: | 1 |
| Garten: | 137,00 m² |
| Keller: | 57,00 m² |
| Heizwärmebedarf: | B 43,10 kWh/m²a |
| fGEE: | A+ 0,58 |
Ausstattung
Fliesen, Parkett, Fußbodenheizung, Einbauküche, Wohnküche / offene Küche, Westbalkon, Bad mit Fenster, Badewanne, Dusche, Parkplatz
Internet und TV
Information zur Internet und TV Versorgung hier
Ihre persönliche Beratung
Mag. (FH) Markus Verner
IMPULS Immobilien
markus.verner@impuls-immobilien.at
+43 650 8566764
