PROVISIONSFREI | Top Raumaufteilung | 3,5 Zimmer | Ruhelage in Einbahnseitenstraße | beste Infrastruktur & Anbindung
Wohnung
- Etage,
1150
Wien
,
Sperrgasse 3
Lage der Immobilie
6 Gehminuten zum Westbahnhof (U3, U6) | 1150 Wien | Rudolfsheim-Fünfhaus | äußere MariahilferstraßeBeschreibung der Immobilie
IMPULS Immobilien bietet nachfolgende Wohnung ab sofort zum KAUF an:
3,5 Zimmer-Wohnung in einem 1977 erbauten Haus, 1. Stock mit Lift, Top Lage in ruhiger Einbahnseitenstraße
HERZLICH WILLKOMMEN ...
Mit unserem 3D-Rundgang, dürfen wir Sie bereits vorab digital einladen, mit uns eine kleine Führung durch diese tolle Immobilie zu machen und sich einen ersten Eindruck von diesem ganz besonderen Objekt zu machen:
ÜBER DIE WOHNUNG
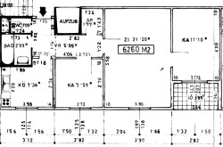
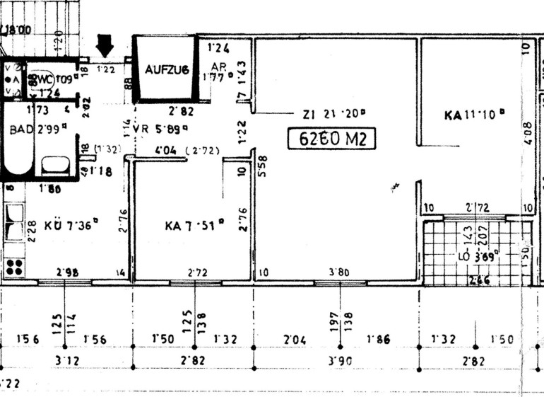
RAUMAUFTEILUNG
- zentral begehbar
- Vorraum
- Badezimmer mit Badewanne
- separates WC
- separate Küche
- großzügiges Wohnzimmer
- Schlafzimmer mit Loggia
- Kinder-/Arbeitszimmer
- Abstellraum
Diese 3,5-Zimmer-Wohnung liegt im 1. Stock eines gepflegten Neubaus aus dem Jahre 1977, ist barrierefrei per Lift erreichbar und überzeugt mit einem durchdachten Raumkonzept.
Auf 59 m² Grundfläche plus 4 m² Loggia präsentiert sich ein Zuhause, das jeden Quadratmeter optimal nutzt.
Der Eingangsbereich bietet ausreichend Platz für eine Garderobe und verbindet alle zentralen Räume der Wohnung (ausgenommen das Schlafzimmer). Rechterhand befinden sich das separate WC sowie das Badezimmer mit Badewanne. Geradeaus gelangen Sie in die separate Küche sowie in ein ca. 8 m² großes Arbeits- bzw. Kinderzimmer.
Besonders praktisch: die aktuelle Küche und das kleine Zimmer können auf Wunsch zu einem ca. 15 m² großen Schlafzimmer verbunden werden – im Wohnzimmer könnte man dann eine offene Küche realisieren. So passt sich die Wohnung flexibel Ihren Lebensgewohnheiten und -bedürfnissen an.
Vom Vorraum aus erreichen Sie außerdem den praktischen Abstellraum sowie das gut proportionierte Wohnzimmer mit großer Fensterfläche. Dieses führt weiter in das Schlafzimmer, an das die ca. 4 m² große Loggia anschließt. Sie ist derzeit in den Raum integriert, kann jedoch jederzeit wieder geöffnet werden – ideal, um einen feinen, privaten Außenbereich zu schaffen.
Das Objekt wird mittels günstiger Gas-Zentralheizung beheizt (aktuelle Vorschreibung EUR 89,-- pro Monat für Warmwasser und Heizung).
ZUM HAUS & ZUR INFRASTRUKTUR
Das 1977 erbaute Haus liegt in der Sperrgasse, einer ruhigen Einbahnstraße, und bietet eine sehr gute Infrastruktur im nahen Umkreis.
Die neu gestaltete äußere Mariahilferstraße liegt direkt vor der Haustüre. Begrünung, Verkehrsberuhigung, breitere Gehsteige und sichere Radwege laden zum Bummeln und zu einem Besuch im Schanigarten ein. Alle Einrichtungen des täglichen Bedarfs (Supermarkt, Trafik, Restaurants, Ärzte...) und die Mariahilferstraße mit vielen Geschäften sind in unmittelbarer Umgebung innerhalb weniger Minuten erreichbar!
Öffentlich sind Sie hier ebenfalls bestens angebunden, denn nur ca. 6 Gehminuten entfernt befindet sich der Wiener Westbahnhof (U3/U6, S-Bahn, Straßenbahn, Airport Bus).
Praktischerweise liegt auch ein SPAR nur 3 Gehminuten entfernt.
KLINGT INTERESSANT?
DANN SENDEN SIE UNS GERNE EINE ANFRAGE!
Wir stehen jederzeit für einen persönlichen Termin oder Rückfragen aller Art
unter office@impuls-immobilien.atbzw. telefonisch unter 0650/8566764 zur Verfügung!
Wir weisen darauf hin, dass zwischen dem Vermittler und dem zu vermittelnden Dritten ein familiäres oder wirtschaftliches Naheverhältnis besteht.
Infrastruktur / Entfernungen
Gesundheit
Arzt <25m
Apotheke <150m
Klinik <275m
Krankenhaus <975m
Kinder & Schulen
Schule <175m
Kindergarten <325m
Universität <625m
Höhere Schule <1.550m
Nahversorgung
Supermarkt <125m
Bäckerei <100m
Einkaufszentrum <1.125m
Sonstige
Geldautomat <500m
Bank <500m
Post <500m
Polizei <500m
Verkehr
Bus <175m
U-Bahn <375m
Straßenbahn <175m
Bahnhof <450m
Autobahnanschluss <4.025m
Angaben Entfernung Luftlinie / Quelle: OpenStreetMap
Eckdaten
| Kaufpreis: | 265.000,00 € |
| Fläche: | 63,00 m² |
| Zimmer: | 3,50 |
Basisdaten zur Immobilie
| Objektnr: | 470 |
| Art: | Wohnung - Etage |
| Land: | Österreich |
| Baujahr: | 1977 |
| Zustand: | Teil_vollrenovierungsbed |
| Alter: | Neubau |
| Kaufpreis: | 265.000,00 € |
| Betriebskosten: | 172,24 € |
| MwSt Gesamt: | 17,22 € |
| Wohnfläche: | 63,00 m² |
| Zimmer: | 3,50 |
| Bäder: | 1 |
| WC: | 1 |
| Heizwärmebedarf: | C 82,52 kWh/m²a |
| fGEE: | F 3,25 |
Ausstattung
Fliesen, Parkett, Gas, Zentralheizung, Einbauküche, Wohnküche / offene Küche, Personenaufzug, Badewanne, Wasch/Trockenraum
Internet und TV
Information zur Internet und TV Versorgung hier
Ihre persönliche Beratung
Mag. (FH) Markus Verner
IMPULS Immobilien
markus.verner@impuls-immobilien.at
+43 650 8566764
