Geschäftslokale und Halle | vermietet | TOP Lage
Halle / Lager / Produktion
,
1070
Wien,Neubau
,
Urban-Loritz-Platz 8
Lage der Immobilie
Urban-Loritz-Platz 8 | Westbahnstraße | 1070 Wien | NeubauBeschreibung der Immobilie
IMPULS Immobilien bietet nachfolgende, vermietete Geschäftslokale und Hallen ab sofort zum KAUF an:
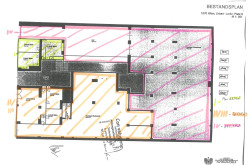
~1.080 m² Fläche, davon ~150 m² Hoffläche | Geschäftslokale | Halle/Werkstatt
ÜBER DIE IMMOBILIE
FACTBOX
- ca. ~115 m² Geschäftslokal in guter Lage
- ca. ~750 m² Garage/Werkstatt
- diverse Nebenräume
- Ein- und Ausfahrt
Das Geschäftslokal liegt an einer sehr gut erreichbaren & gut frequentierten Ecke am Urban-Loritz-Platz in einem gepflegten Wohnhaus.
Die Flächen sind unbefristet vermietet; lediglich ein gut geschnittenes Verkaufslokal mit rd. 65 m² ist bis 9/2026 vermietet.
DETAILS ZUR AKTUELLEN VERMIETUNG
- Mietbeginn des Geschäftsloka l1 08/2026 bis 30.09.2026; ca. 65 m²; Nettohauptmietzins EUR 790,--
- Mietbeginn des Geschäftslokal 2+3 12/2018 auf unbestimmte Zeit; ca. 365 m²; Nettohauptmietzins EUR 3.540,--
- Mietbeginn des Geschäftslokal 4 10/2002 auf unbestimmte Zeit; ca. 650 m²; Nettohauptmietzins EUR 1.710,--
- Gesamt 5,4% Nettorendite (Nettohauptmietzins p.a./Kaufpreis)
- Betriebskosten netto gesamt p.m. EUR 1.936,23
- Reparaturrücklage/Annuitäten gesamt p.m. EUR 1.124,22
ZUM HAUS & ZUR INFRASTRUKTUR
Das Geschäftslokal befindet sich auf dem gut frequentierten Urban-Loritz-Platz.
Öffentlich sind Sie hier sehr gut angebunden. U6 Urban-Loritz-Platz, Straßenbahnlinien 6, 9, 18 und 49 sind in unmittelbarer Umgebung.
INTERESSIERT?
Gerne stehen wir jederzeit für einen persönlichen Termin oder Rückfragen aller Art
unter office@impuls-immobilien.atbzw. telefonisch unter 0650/8566764 zur Verfügung!
Wir weisen darauf hin, dass zwischen dem Vermittler und dem zu vermittelnden Dritten ein familiäres oder wirtschaftliches Naheverhältnis besteht.
Infrastruktur / Entfernungen
Gesundheit
Arzt <200m
Apotheke <200m
Klinik <325m
Krankenhaus <1.125m
Kinder & Schulen
Schule <125m
Kindergarten <325m
Universität <350m
Höhere Schule <525m
Nahversorgung
Supermarkt <75m
Bäckerei <125m
Einkaufszentrum <375m
Sonstige
Geldautomat <175m
Bank <175m
Post <450m
Polizei <25m
Verkehr
Bus <75m
U-Bahn <125m
Straßenbahn <100m
Bahnhof <175m
Autobahnanschluss <4.600m
Angaben Entfernung Luftlinie / Quelle: OpenStreetMap
Eckdaten
| Kaufpreis: | 1.335.000,00 € |
| Fläche: | 1.080,00 m² |
Basisdaten zur Immobilie
| Objektnr: | 491 |
| Art: | Halle / Lager / Produktion |
| Land: | Österreich |
| Baujahr: | 1930 |
| Alter: | Neubau |
| Kaufpreis: | 1.335.000,00 € |
| Kaufpreis / m²: | 1.236,11 € |
| Provision: | 3% des Kaufpreises zzgl. 20% USt. |
| Betriebskosten: | 1.936,23 € |
| MwSt Gesamt: | 387,25 € |
| Wohnfläche: | 1.080,00 m² |
| Nutzfläche: | 1.080,00 m² |
| Heizwärmebedarf: | G 343,20 kWh/m²a |
| fGEE: | D 2,16 |
Internet und TV
Information zur Internet und TV Versorgung hier
Ihre persönliche Beratung
Mag. (FH) Markus Verner
IMPULS Immobilien
markus.verner@impuls-immobilien.at
+43 650 8566764
