Günstige, helle 3-Zimmer Wohnung | gute Infrastruktur | 700 m zur U3
Wohnung
- Etage,
1110
Wien
,
Geiselbergstraße 39
Lage der Immobilie
Geiselbergstraße 39 | 1110 Wien | 1 Minute zum Bahnhof Geiselbergstraße | 700 m zur U3 Station EnkplatzBeschreibung der Immobilie
IMPULS Immobilien bietet verschiedene Wohnungen in der Geiselbergstraße 39 ab sofort zum KAUF an:
Helle, günstige 3-Zimmer-Wohnung im sanierungsbedürftigen Zustand, Nord/Süd ausgerichtet, gute Infrastruktur, U-Bahn Nähe
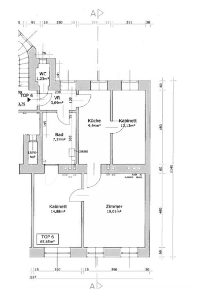
ÜBER DIE WOHNUNG
FACTBOX:
- Vorraum
- Kabinett hofseitig
- großzügiges Badezimmer
- separates WC mit Fenster
- Wohnzimmer südseitig
- geräumiges Schlafzimmer
Die Wohnung befindet sich im 1. Stock ohne Lift. Durch einen kleinen Vorraum mit Fenster in den Innenhof gelangt man in die Küche. Rechterhand befindet sich das großzügige Badezimmer mit Badewanne und gegenüber ein separates WC mit Fenster. Weiter geht es in das Kabinett, welches in den ruhigen Innenhof orientiert ist.
Gehen wir durch die Küche, betreten wir zwei südseitige Räume in Richtung Geiselbergstraße. Diese haben ca. 20 m2 und 15 m2 und eignen sich ideal als Wohn- und Schlafzimmer.
Beheizt wird die Wohnung mit einer klassischen Gastherme.
-> In diesem Objekt stehen weitere Einheiten zum Verkauf. Bei Interesse, senden wir Ihnen gerne eine Übersicht der vorhandenen Einheiten zu bzw. können auch Wohnungspakete erworben werden! Melden Sie sich diesbezüglich gerne bei uns!
ÜBER DIE LAGE & DIE INFRASTRUKTUR
Das Haus liegt zentral in einer attraktiv ausgebauten und nachgefragten Wohnlage im 11. Wiener Gemeindebezirk mit guter Infrastrukur.
Öffentlich sind Sie hier OPTIMAL angebunden: Die U3 Station Enkplatz liegt nur 700 m oder 7 Gehminuten entfernt. Auch die Straßenbahnlinien 11 und D, sowie die Buslinie 11 halten direkt vor der Haustüre. In nur einer Gehminute erreichen Sie auch den Bahnhof Geiselbergstraße mit direktem S-Bahn Anschluss.
In einem engen Radius um das Objekt genießen Sie die Vorzüge einer optimalen Infrastruktur und diverser Nahversorger: Ein BILLA sowie eine SPAR-Filiale befinden sich nur 3 Gehminuten entfernt. Weiters gibt es zahlreiche Geschäfte, Restaurants und Cafés auf der unweit liegenden Simmeringer Hauptstraße.
Und wenn es Sie einmal nach Erholung im Grünen dürstet: Nur 300 m entfernt, befindet sich der große, schöne Herderpark mit kleinen und sehr sauberem Familienschwimmbad, Kinderspielplatz und großen Wiesenflächen zum Entspannen.
Auch alle anderen Einrichtungen des täglichen Bedarfs sind fußläufig innerhalb weniger Minuten erreichbar.
KLINGT INTERESSANT?
DANN SENDEN SIE UNS GERNE EINE ANFRAGE!
Wir freuen uns darauf & stehen jederzeit für einen persönlichen Termin
oder Rückfragen aller Art unter office@impuls-immobilien.at
bzw. telefonisch unter 0650/8566764 zur Verfügung!
Wir weisen darauf hin, dass zwischen dem Vermittler und dem zu vermittelnden Dritten ein familiäres oder wirtschaftliches Naheverhältnis besteht.
Infrastruktur / Entfernungen
Gesundheit
Arzt <300m
Apotheke <275m
Klinik <300m
Krankenhaus <2.375m
Kinder & Schulen
Schule <75m
Kindergarten <375m
Universität <950m
Höhere Schule <1.550m
Nahversorgung
Supermarkt <200m
Bäckerei <50m
Einkaufszentrum <775m
Sonstige
Geldautomat <525m
Bank <525m
Post <525m
Polizei <550m
Verkehr
Bus <25m
U-Bahn <625m
Straßenbahn <25m
Bahnhof <100m
Autobahnanschluss <525m
Angaben Entfernung Luftlinie / Quelle: OpenStreetMap
Eckdaten
| Kaufpreis: | 145.000,00 € |
| Fläche: | 66,00 m² |
| Zimmer: | 3 |
Basisdaten zur Immobilie
| Objektnr: | 497 |
| Art: | Wohnung - Etage |
| Land: | Österreich |
| Baujahr: | 1900 |
| Zustand: | Sanierungsbeduerftig |
| Alter: | Altbau |
| Kaufpreis: | 145.000,00 € |
| Provision: | 3% des Kaufpreises zzgl. 20% USt. |
| Betriebskosten: | 261,73 € |
| MwSt Gesamt: | 26,17 € |
| Wohnfläche: | 66,00 m² |
| Zimmer: | 3 |
| Bäder: | 1 |
| WC: | 1 |
| Heizwärmebedarf: | E 168,90 kWh/m²a |
| fGEE: | F 3,78 |
Ausstattung
Gas, Etagenheizung, Badewanne
Internet und TV
Information zur Internet und TV Versorgung hier
Ihre persönliche Beratung
Mag. (FH) Markus Verner
IMPULS Immobilien
markus.verner@impuls-immobilien.at
+43 650 8566764
