Erstbezug | sanierte Altbauwohnung an der U1 | Top aufgeteilt
Wohnung
,
1100
Wien
Beschreibung der Immobilie
Eckdaten
| Kaufpreis: | 329.000,00 € |
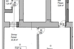
| Fläche: | 54,68 m² |
| Zimmer: | 2 |
Basisdaten zur Immobilie
| Objektnr: | 141/84234 |
| Art: | Wohnung |
| Land: | Österreich |
| Alter: | Altbau |
| Kaufpreis: | 329.000,00 € |
| Provision: | 3% |
| Wohnfläche: | 54,68 m² |
| Zimmer: | 2 |
| Bäder: | 1 |
| WC: | 1 |
| Heizwärmebedarf: | C 54,35 kWh/m²a |
| fGEE: | B 0,90 |
Ausstattung
Fernwärme, Personenaufzug
Internet und TV
Information zur Internet und TV Versorgung hier
Ihre persönliche Beratung
Timo Kohlweiss
Rustler Immobilientreuhand
kohlweiss@rustler.eu
+43 1 8949749683
+43 676 834 34 683
