PROVISIONSFREI! Sonnberg – Ein Ort, der Lebensqualität neu definiert und Generationen vereint!
Wohnung
,
2020
Hollabrunn
Lage der Immobilie
Die Bezirkshauptstadt Hollabrunn zählt zu den bedeutendsten regionalen Zentren des Weinviertels, speziell aufgrund der guten Verkehrsanbindung, des ausgeprägten Bildungsangebotes und ebenso aufgrund des ausgezeichnetem Gesundheitsnetzwerkes.
Schule und Bildung
- Kindergarten, Weislein-Straße 17 - 900m
- Polytechnische Schule, Kornhergasse 4 - 800m
- Volksschule 1, Kirchenplatz 4 - 45m
- Erzbischöfliches Realgymnasium und Aufbaugymnasium, Kirchenplatz. 2 - 400m
Restaurants
Traditionelle Wirtshäuser aber auch gemütliche Cafés und Take- Away-Restaurants prägen das Gastronomische Angebot in Hollabrunn. Besonders zur Geltung kommt die Mischung aus Weinviertler Küche und modernen Angeboten.
Gesundheitswesen
- Stadtapotheke Hollabrunn - 270m
- Allgemeinmediziner und Osteopath Praxis Dr. Istvan Salamon - 200m
- Kinderarzt Dr. Doris Leyer - 280m
- Landesklinikum Hollabrunn - 1,3km
Infrastruktur
- Bahnhof Hollabrunn - 850m
- Nächste Bushaltestelle - 300m
- S3 - 5,5km
Sport
- Salus & Forma Fitnesscenter - 1km
- Sporthalle - 750m
- Fitnessparcour - 1,1km
- Tennis Center - 1km
- Fußpallplatz - 650m
Beschreibung der Immobilie
Das Projekt Sonnberg in Hollabrunn vereint moderne Architektur, energieeffiziente Bauweise und hohe Wohnqualität über Generationen hinweg.
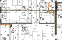
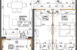
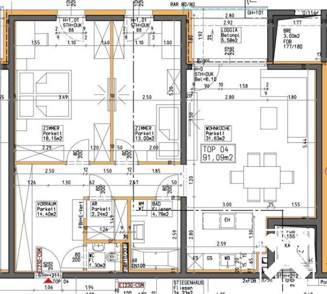
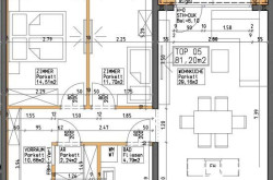
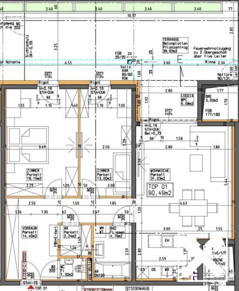
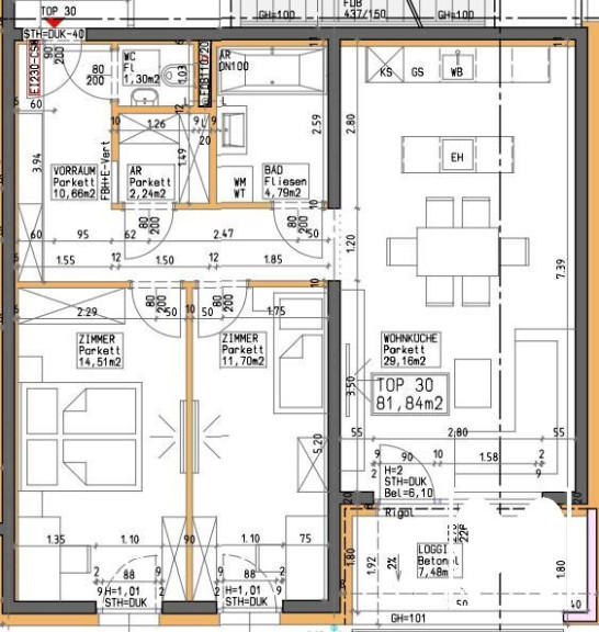
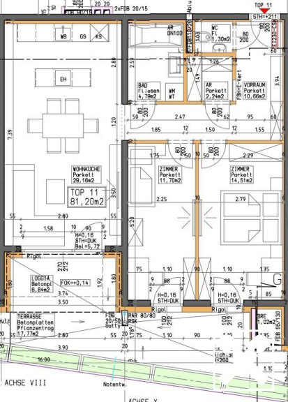
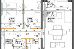
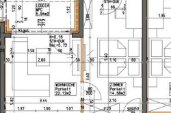
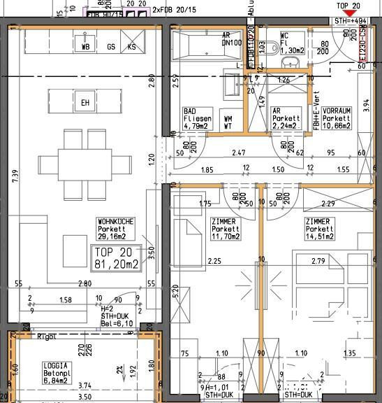
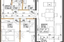
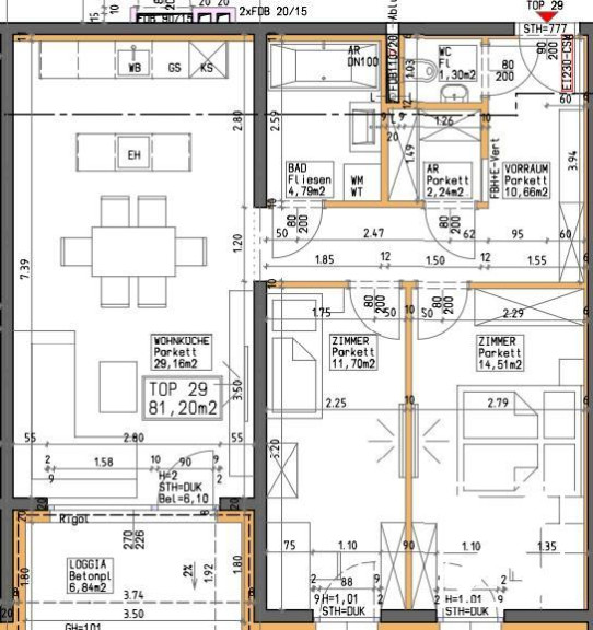
Es entstehen 32 Eigentumswohnungen mit 1-4 Zimmern. Die Wohnungen überzeugen durch lichtdurchflutete Räume, Fußbodenheizung, hochwertig verarbeitete Materialien sowie großzügige Freiflächen.
Barrierefreiheit, Tiefgarage, Kellerabteile und begrünte Außenanlagen ergänzen das komfortable Wohnkonzept. Die angenehme Lage nahe Freizeit- und Grünflächen bietet ideale Voraussetzungen für entspanntes Wohnen und verbindet urbanen Komfort mit naturnaher Lebensqualität für unterschiedliche Generationen. Zudem profitieren Bewohner von einer ausgezeichneten Infrastruktur mit unzähligen Bildungseinrichtungen, von Kindergärten und Schulen bis hin zu weiterführenden Bildungseinrichtungen, alles innerhalb der Stadtgemeinde Hollabrunn.
Es entsteht nicht nur Wohnraum sondern auch ein einzigartiges Wohngefühl.
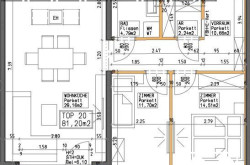
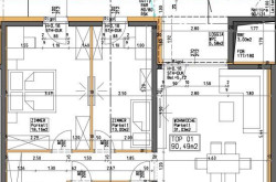
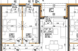
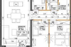
Eckdaten
| Kaufpreis: | 0,00 € |
| Fläche: | 42,00 m² |
Basisdaten zur Immobilie
| Objektnr: | 0001011359 |
| Art: | Wohnung |
| Land: | Österreich |
| Baujahr: | 2024 |
| Kaufpreis: | 0,00 € |
| Nutzfläche: | 42,00 m² |
| Heizwärmebedarf: | B 28,00 kWh/m²a |
| fGEE: | A 0,80 |
Ausstattung
Zentralheizung, Dusche
Internet und TV
Information zur Internet und TV Versorgung hier
Ihre persönliche Beratung
Sophie Kühnel
Raiffeisen Immobilien Vermittlung
teamnoesued@riv.at
+4351751771
+43 664 60 517 517 71
