Erstbezug in absoluter Ruhelage – außergewöhnliches Haus in idyllischer Grünlandlage
Haus
- Mehrfamilienhaus,
4212
Neumarkt im Mühlkreis
Beschreibung der Immobilie
Dieses neu errichtete Wohnhaus (Erstbezug, Baujahr 2022) überzeugt durch seine außergewöhnliche Lage am Waldrand sowie ein Höchstmaß an Privatsphäre und Ruhe. Diese Immobilie bietet durch die private Zufahrt eine seltene Kombination aus Naturverbundenheit und exklusivem Wohnkomfort.
Die Gesamtfläche des angebotenen Grundstücks beträgt 5.786 m² und umfasst:
-
ca. 2.713 m² Bau- und Gartenfläche
-
ca. 280 m² Zufahrt
-
ca. 2.793 m² Waldfläche
Optional kann das Haus auch ohne Waldfläche erworben werden. Zusätzlich besteht die Möglichkeit, eine angrenzende landwirtschaftliche Fläche mit 9.351 m² zu erwerben.
Flexible Nutzung – ideal für Wohnen & Arbeiten
Das Haus verfügt über zwei eigene Haupteingänge und lässt sich dadurch optimal in zwei getrennte Bereiche aufteilen – ideal beispielsweise für Wohnen und berufliche Nutzung (z. B. Massage, Praxis, Atelier oder Büro).
Über einen dritten Eingang auf der Rückseite können insgesamt bis zu drei separate Einheiten erreicht werden – ganz ohne gemeinsamen Eingangsbereich.
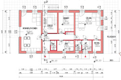
Raumaufteilung & Ausstattung
-
gesamte Wohnfläche: ca. 212 m²
-
insgesamt 7 Zimmer
-
3 Bäder
-
3 WCs
-
sichtbare Holzbalken im Dachgeschoss für ein besonders angenehmes Wohngefühl
-
bereits errichtete Photovoltaikanlage zur Reduktion der laufenden Stromkosten
-
absolut uneinsichtiger Garten in idyllischer Naturlage
-
Garage bereits bewilligt (derzeit noch nicht errichtet)
Lage & Besonderheiten
Die Liegenschaft liegt in einer außergewöhnlich ruhigen Umgebung am Rande des Waldes und bietet eine seltene Kombination aus Natur, Privatsphäre und vielseitiger Nutzungsmöglichkeit – eine echte Rarität für Menschen, die Ruhe und Freiraum schätzen.
Eine absolut seltene Gelegenheit für Eigennutzer, Mehrgenerationenwohnen oder die Kombination aus Wohnen und Arbeiten.
Der Vermittler ist als Doppelmakler tätig.
Infrastruktur / Entfernungen
Gesundheit
Arzt <2.500m
Apotheke <5.500m
Klinik <9.000m
Krankenhaus <9.000m
Kinder & Schulen
Schule <2.500m
Kindergarten <3.000m
Höhere Schule <5.000m
Universität <5.000m
Nahversorgung
Supermarkt <4.000m
Bäckerei <5.000m
Einkaufszentrum <9.000m
Sonstige
Bank <2.500m
Geldautomat <2.500m
Post <3.000m
Polizei <2.500m
Verkehr
Bus <2.000m
Autobahnanschluss <2.000m
Bahnhof <3.500m
Angaben Entfernung Luftlinie / Quelle: OpenStreetMap
Eckdaten
| Kaufpreis: | 850.000,00 € |
| Fläche: | 212,00 m² |
| Zimmer: | 7 |
Basisdaten zur Immobilie
| Objektnr: | 1508 |
| Art: | Haus - Mehrfamilienhaus |
| Land: | Österreich |
| Baujahr: | 2022 |
| Zustand: | Neuwertig |
| Alter: | Neubau |
| Kaufpreis: | 850.000,00 € |
| Kaufpreis / m²: | 4.009,43 € |
| Provision: | 3% des Kaufpreises zzgl. 20% USt. |
| Betriebskosten: | 100,00 € |
| Heizkosten: | 50,00 € |
| Wohnfläche: | 212,00 m² |
| Grundstücksfl.: | 5.786,00 m² |
| Zimmer: | 7 |
| Bäder: | 3 |
| WC: | 3 |
| Terrassen: | 2 |
| Stellplätze: | 8 |
| Garten: | 2.500,00 m² |
| Heizwärmebedarf: | C 43,00 kWh/m²a |
| fGEE: | A 0,71 |
Ausstattung
Fliesen, Parkett, Fußbodenheizung, Bad mit Fenster, Badewanne, Dusche, Parkplatz
Internet und TV
Information zur Internet und TV Versorgung hier
Ihre persönliche Beratung
Wolfgang Lichtenberger
Immolution GmbH
wol@immolution.at
0676/88680886
