Immobilie merken

Charmante 1-Zimmer Wohnung mit getrennter Küche und großem Bad - Scheupark

Wohnung , 1050 Wien

Lage der Immobilie

Das Haus befindet sich in der Bräuhausgasse 34.

Beschreibung der Immobilie

Willkommen in Ihrem neuen Zuhause im lebendigen 5. Wiener Gemeindebezirk! Diese charmante Wohnung im 3. Liftstock vereint urbanes Lebensgefühl mit durchdachtem Wohnkomfort und eignet sich ideal für Singles oder Paare.

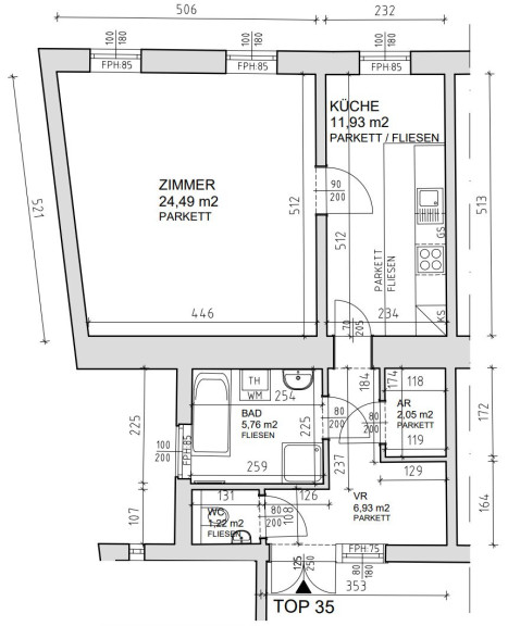
Auf rund 52,38 m² Wohnfläche erwartet Sie eine angenehm helle Atmosphäre – die Lage im oberen Stockwerk sorgt für viel Tageslicht und ein freundliches Wohngefühl.

Der großzügige Wohn- und Schlafbereich mit knapp 25 m² bietet ausreichend Platz zum Wohnen, Entspannen und Schlafen. Die separate Küche ist funktional geschnitten und verfügt über genügend Raum für einen kleinen Esstisch – perfekt für gemütliche Mahlzeiten zu Hause.

Ein besonderes Highlight ist das geräumige Badezimmer mit Badewanne und Dusche. Dank des Fensters genießen Sie auch hier natürliches Tageslicht und optimale Belüftung. Direkt neben dem Eingangsbereich befindet sich ein separates WC mit Handwaschbecken – ein praktisches Detail im Alltag.

Zusätzlichen Stauraum bietet ein eigener Abstellraum. Im Vorraum befindet sich zudem eine Nische, die sich ideal als Garderobenbereich nutzen lässt.

Raumaufteilung

  • Vorraum – 6,93 m²
  • WC mit Handwaschbecken – 1,22 m²
  • Abstellraum – 2,05 m²
  • Badezimmer mit Badewanne und Dusche – 5,76 m²
  • Küche – ca. 11 m²
  • Wohn-/Schlafzimmer – ca. 24,49 m²

Link zu einer Videobesichtigung (hier anklicken)

Ist Ihr Interesse geweckt? Dann kontaktieren Sie mich gerne und vereinbaren Sie einen unverbindlichen Besichtigungstermin:

Anfragen nur per E-Mail!

k.gazdula@domoreal.at
 

Besichtigungen sind ab sofort und jederzeit nach Terminvereinbarung möglich. Ich freue mich schon auf Sie!

Alle Angaben im Angebot basieren auf Informationen und Unterlagen des Eigentümers und erfolgen nach bestem Wissen, jedoch ohne Gewähr auf Richtigkeit.

Der Immobilienmakler erklärt, dass er – entgegen dem in der Immobilienwirtschaft üblichen Geschäftsgebrauch des Doppelmaklers – einseitig nur für den Vermieter tätig ist.

Infrastruktur / Entfernungen

Gesundheit
Arzt <500m
Apotheke <500m
Klinik <500m
Krankenhaus <1.000m

Kinder & Schulen
Schule <500m
Kindergarten <500m
Universität <1.000m
Höhere Schule <500m

Nahversorgung
Supermarkt <500m
Bäckerei <500m
Einkaufszentrum <1.000m

Sonstige
Geldautomat <500m
Bank <500m
Post <500m
Polizei <500m

Verkehr
Bus <500m
U-Bahn <500m
Straßenbahn <1.000m
Bahnhof <500m
Autobahnanschluss <4.000m

Angaben Entfernung Luftlinie / Quelle: OpenStreetMap

Eckdaten

Gesamtmiete: 870,03 €
Fläche: 52,38 m²
Zimmer: 1

Basisdaten zur Immobilie

Objektnr: 6701/2372
Art: Wohnung
Land: Österreich
Baujahr: 1900
Alter: Altbau
Gesamtmiete: 870,03
Kaltmiete (netto): 628,55 €
Kaltmiete: 790,93 €
Provision: Gemäß Erstauftraggeberprinzip bezahlt der Abgeber die Provision.
Betriebskosten: 133,05 €
MwSt Gesamt: 79,10 €
Wohnfläche: 52,38 m²
Nutzfläche: 52,38 m²
Zimmer: 1
Bäder: 1
WC: 1
Heizwärmebedarf:  D  114,70 kWh/m²a
fGEE:  D  1,89

Ausstattung

Fliesen, Parkett, Gas, Etagenheizung, Einbauküche, Personenaufzug, Badewanne, Dusche, Kabel/Satelliten-TV



Internet und TV

Information zur Internet und TV Versorgung hier




Immobilie anfragen




Ihre persönliche Beratung

Domo Gebäudeverwaltungs- und Realitätengesellschaft m.b.H.

Ing. Kamil Gazdula

Domo Gebäudeverwaltungs- und Realitätengesellschaft m.b.H.

k.gazdula@domoreal.at

+4317151662

+436763135133