Gartenwohnung in historischem Ambiente - 2 Zimmer, 50 m² Eigengarten - zu mieten in 1130 Wien
Wohnung
- Erdgeschoß,
1130
Wien
Lage der Immobilie
Der Standort der Liegenschaft in der Auhofstraße 258 besticht durch seine attraktive Lage in Hietzing. Die Villa liegt in einer ruhigen Sackgasse neben dem Naturschutzgebiet Lainzer Tiergarten und ist gleichzeitig optimal an das Verkehrsnetz angebunden. Auf einzigartige Weise vereint die Umgebung mehrere Vorzüge wie Freizeit, Natur, Nahversorgung, Parkmöglichkeiten sowie optimale Verkehrsanbindung. In unmittelbarer Nähe finden Sie das Auhofcenter mit zahlreichen Geschäften, Gastronomie und Entertainment. Das St. Josef Spital sowie diverse Schulen ergänzen das infrastrukturelle Angebot. Die öffentliche Anbindung ist durch den fußläufig erreichbaren Bahnhof Hütteldorf gegeben. Der Wiental-Radweg führt direkt an der Liegenschaft vorbei, hier gelangen Sie in ca. 12 km zum Stephansplatz.Beschreibung der Immobilie
Eckdaten
| Gesamtmiete: | 1.232,26 € |
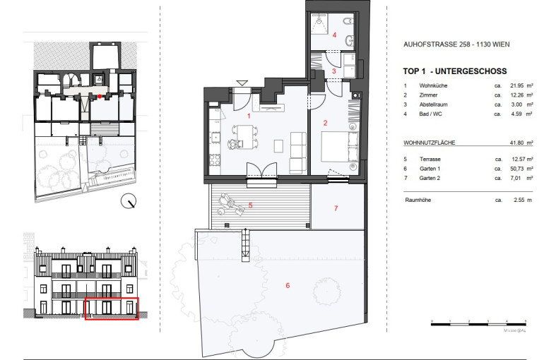
| Fläche: | 41,80 m² |
| Zimmer: | 2 |
Basisdaten zur Immobilie
| Objektnr: | 109261305_7 |
| Art: | Wohnung - Erdgeschoß |
| Land: | Österreich |
| Baujahr: | 2024 |
| Zustand: | Erstbezug |
| Gesamtmiete: | 1.232,26 € |
| Kaltmiete (netto): | 1.003,20 € |
| Kaltmiete: | 1.232,26 € |
| Provision: | provisionsfrei für den Mieter |
| Betriebskosten: | 117,04 € |
| Wohnfläche: | 41,80 m² |
| Zimmer: | 2 |
| Bäder: | 1 |
| Terrassen: | 1 |
| Garten: | 57,74 m² |
| Heizwärmebedarf: | B 42,47 kWh/m²a |
| fGEE: | A 0,82 |
Ausstattung
Parkett, Fußbodenheizung, Dusche
Internet und TV
Information zur Internet und TV Versorgung hier
Ihre persönliche Beratung
Lara Steinbacher
ÖRAG Immobilien Vermittlung GmbH
lara.steinbacher@oerag.at
0043153473261
004366488962125
