Vielseitige Geschäftsfläche
Einzelhandel
- Ladenlokal,
1100
Wien
Lage der Immobilie
Das Geschäftslokal befindet sich in der Rotenhofgasse im 10. Wiener Gemeindebezirk Favoriten, einem dynamischen und stark wachsenden Stadtteil in unmittelbarer Nähe zum Reumannplatz. Die Umgebung ist geprägt von einer ausgewogenen Mischung aus Wohn- und Geschäftsgebieten, was für eine hohe Kundenfrequenz und gute Standortqualität sorgt. Direkt gegenüber befindet sich der bekannte Eissalon Tichy. Die Anbindung an den öffentlichen Verkehr ist ausgezeichnet und ermöglicht eine schnelle Verbindung in alle Wiener Stadtteile. Zudem ist der Standort auch mit dem Auto sehr gut erreichbar und bietet damit optimale Voraussetzungen für Kunden- und Mitarbeiterverkehr. Öffentliche Verkehrsanbindung: U-Bahn: U1 – Station Reumannplatz Straßenbahn: 6, 11, O Bus: 7A, 14A, 65A, 66A, 68BBeschreibung der Immobilie
Eckdaten
| Gesamtmiete: | 7.513,81 € |
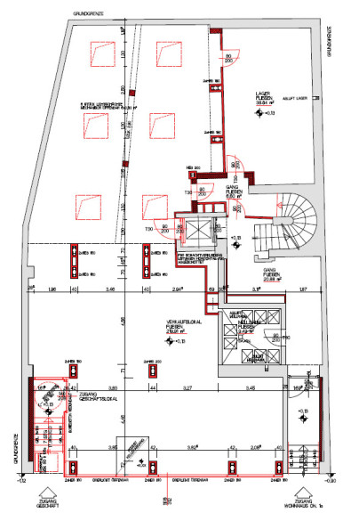
| Fläche: | 387,71 m² |
Basisdaten zur Immobilie
| Objektnr: | IVG-R-13124 |
| Art: | Einzelhandel - Ladenlokal |
| Land: | Österreich |
| Gesamtmiete: | 7.513,81 € |
| Kaltmiete (netto): | 5.040,23 € |
| Kaltmiete: | 6.048,28 € |
| Miete / m²: | 13,00 € |
| Provision: | 3 BMM zzgl. 20% USt. |
| Betriebskosten: | 1.097,22 € |
| Nutzfläche: | 387,71 m² |
| Heizwärmebedarf: | C 84,20 kWh/m²a |
| fGEE: | C 1,41 |
Ausstattung
Personenaufzug
Internet und TV
Information zur Internet und TV Versorgung hier
Ihre persönliche Beratung
Nicole Ivancich, MA
OTTO Immobilien GmbH
n.ivancich@otto.at
00436649643476
00436649643476
F 004315137778
