360° TOUR // NEUBAUBÜRO nahe SCHOTTENTOR
Büro / Praxis
,
1090
Wien
Beschreibung der Immobilie
Diese im 2.Stock eines Neubaugebäudes (BJ 1995) mit Glas-Steinfassade gelegene Büroflächen sind nur 50 Meter von der Ringstrasse entfernt und prompt beziehbar.
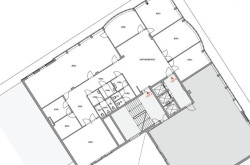
Raumaufteilung:
großer Empfangsbereich, 4 getrennte Büroräume, 1 Großraumbüro, 1 Teeküche, durch einen weiteren Vorraum gelangt man in einen weiteren Büroraum, 1 Serverraum, 1 Archivraum, 2 Damen-WC + Waschraum, 2 Herren-WC + Waschraum.
Ausstattung:
- in den Büroräumlichkeiten durchgehend Teppichboden
- Kabelkanäle mit Fußbodenauslässen
- Fan-Coil-Klimatisierung
- Hauszentralheizung
Für die Beheizung/ Klimatisierung werden € 0,86/m² netto als monatliches Akonto gesondertt verrechnet.
Garagenplätze sind in dem Gebäude extra anmietbar.
Angeboten wird ein auf 10 Jahre befristetes Mietverhältnis mit Verlängerungsoption und dreijährigem, mieterseitigen Kündigungsverzicht.
360° Tour:
https://360.kalandra.at/view/portal/id/VVCXX
Infrastruktur / Entfernungen
Gesundheit
Arzt <500m
Apotheke <500m
Klinik <500m
Krankenhaus <1.500m
Kinder & Schulen
Schule <500m
Kindergarten <1.000m
Universität <500m
Höhere Schule <1.000m
Nahversorgung
Supermarkt <500m
Bäckerei <500m
Einkaufszentrum <2.000m
Sonstige
Geldautomat <500m
Bank <500m
Post <500m
Polizei <500m
Verkehr
Bus <500m
U-Bahn <500m
Straßenbahn <500m
Bahnhof <500m
Autobahnanschluss <3.000m
Angaben Entfernung Luftlinie / Quelle: OpenStreetMap
Eckdaten
| Kaltmiete (netto): | 5.284,11 € |
| Fläche: | 310,83 m² |
| Zimmer: | 6 |
Basisdaten zur Immobilie
| Objektnr: | 17596 |
| Art: | Büro / Praxis |
| Land: | Österreich |
| Baujahr: | 1995 |
| Zustand: | Neuwertig |
| Kaltmiete (netto): | 5.284,11 € |
| Kaltmiete: | 5.753,46 € |
| Provision: | 3 Bruttomonatsmieten zzgl. 20% USt. |
| Betriebskosten: | 469,35 € |
| MwSt Gesamt: | 1.150,69 € |
| Nutzfläche: | 310,83 m² |
| Zimmer: | 6 |
| WC: | 4 |
| Heizwärmebedarf: | C 49,00 kWh/m²a |
Ausstattung
Zentralheizung, Personenaufzug
Internet und TV
Information zur Internet und TV Versorgung hier
Ihre persönliche Beratung
Mag. Robin Kalandra
robin@kalandra.at
+43-1533326913
+43-69911804004
F +43-1-533-32-69-20

